Lataa pohjapiirros [PDF]
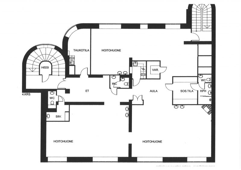
Pohjapiirros
Myydään toimistotilat, liiketilat, näyttelytilat, työtilat - Oulu
Kirkkokatu 10 A4, 90100 Oulu #10766932
Myydään Rotuaarin aukiolta, paraatipaikalta, upeasta ja perinteikkäästä arvotalosta 4. kerroksen toimistohuoneisto, joka soveltuu hyvin myös asunnoksi.
Tähän kannattaa tutustua!
Huom! Tee tarjous molemmista huoneistoista!
Osoite
Kirkkokatu 10 A4, 90100 Oulu
Tilatyyppi
Toimistotilaa
247 m2
Liiketilaa
247 m2
Näyttelytilaa
247 m2
Työtilaa
247 m2
Yhteensä
247 m2
Tilajako
3 isoa avotilaa, taukotila, aula, 3 wc:tä, pikkukeittiö ja varastohuone
Pohjapiirros
Myyntihinta
Velaton hinta 455.000€
Kiinteistö
Oma tontti
Pysäköinti
Myydään sisäpihalta 1 autopaikka 25.000€
Palvelut
Ydinkeskustan
Kulkuyhteydet
Bussit Torikatua pitkin
Muuta
Huoneistossa on toiminut pitkään kauneushoitola ja huoneiston nykyinen varustetaso on niitä peruja. Uusi omistaja saa tästä remontoimalla hienot ja arvokkaan oloiset tilat monenmoiseen käyttötarkoitukseen. Taloyhtiö on ollut myös pitkään hyvällä hoidolla.
Rakennuksen on suunnitellut vuonna 1911 arkkitehti Wivi Lönn.
Rakennuksen on suunnitellut vuonna 1911 arkkitehti Wivi Lönn.
Vapautuu
Heti
Rakennusvuosi
1911
Kerros
4 / 5
Huoneiden lukumäärä
4
Energiatehokkuusluokka
E2018
E-luku
174 kWhE/m²/vuosi
Näkyvällä paikalla
Liitetiedostot
Ota yhteyttä
Pohjois-Suomen Toimitilat Oy
Sepänkatu 20, 90100 Oulu
Pekka Valkola
Näytä puhelinnumero
044 311 0555
Pyydä lisätietoa
