Vuokrataan liiketilat - Helsinki
John Stenbergin Ranta 2, Hakaniemi, 00530 Helsinki #10766891
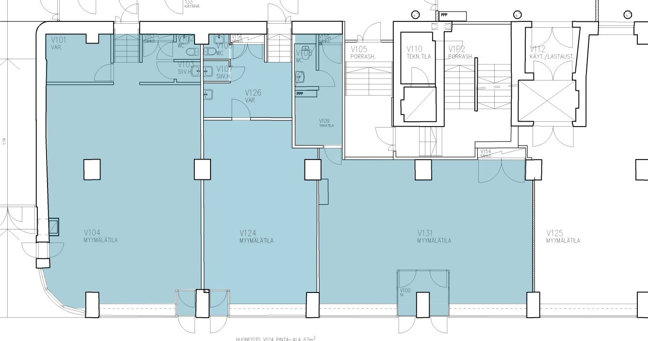
Tarjolla kiinteistön kivijalassa liiketilaa näkyvällä paikalla. Tila voidaa tarvittaessa jakaa kahdeksi itsenäiseksi tilakseen (67 m2 ja 86 m2). Upea sijainti Hakaniemen palveluiden ja Pitkänsillan kupeessa, lähellä metroa ja Kaisaniemen puistoa. Tässä tavoitat asiakkaasi sillä runsaasti ohikulkuliikennettä ja jalankulkijoita. Ei kahvilaksi tai ravintolaksi. Toimii hyvin myös toimistona.
John S. eli John Stenbergin ranta 2 on upea punatiilinen rakennus Pitkänsillan kupeessa, Helsingin Hakaniemessä. Tämä talo toimi pitkän aikaa Wärtsilän pääkonttorina, jonka jälkeen siitä on rakentunut upea, monen käyttäjän toimistotalo. Kiinteistö koostuu kahdesta osasta, joista vanhempi, vuonna 1938 rakennettu puoli on Museoviraston suojelema. Kiinteistön yleiset tilat on remontoitu vuonna 2019, jolloin talon ilmettä ja henkeä uudistettiin.
Vuokralaisten käytössä ovat aulapalvelu, ravintola sekä kuntosali sosiaalitiloineen. Työskentelyä täydentämään löytyy kokoustiloja, ja liikkumista sujuvoittavat parkkihalli, auton latauspistokkeet sekä sisäpaikat polkupyörille.
Croisette on uusi ja innovatiivinen toimitilojen välitysyritys Suomessa. Meillä on vahva halu auttaa teitä löytämään paras toimitilaratkaisu mahdollisimman vaivattomasti.
Huomaathan, että kaikki vapaat ja vapautuvat tilat ovat kauttamme saatavilla. Osa tiloista on hiljaisessa markkinoinnissa, mutta ottamalla meihin yhteyttä saat nekin tietoosi.
Palvelumme on tilanhakijoille täysin maksutonta.
Croisette Real Estate Partner
Erottajankatu 5 A 6, 00130 Helsinki
Näytä puhelinnumero
+358 400 585 857
Croisette Vuokraus
Näytä puhelinnumero
+358400585857
