Myydään toimistotilat, liiketilat, näyttelytilat - Paimio
Vistantie 6, 21530 Paimio #10766870
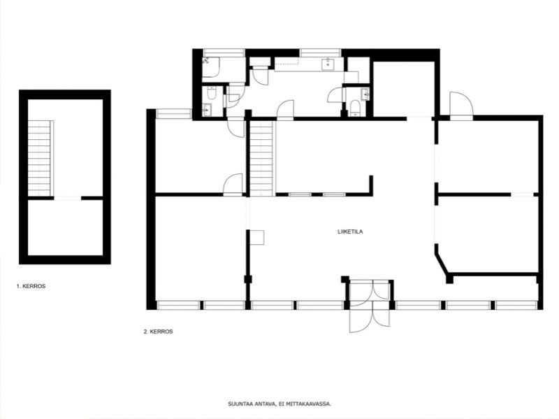
Liiketila 195m2 Paimion keskusta *Katutaso *Näkyvä paikka *Parkkipaikkoja
Osoite
Vistantie 6, 21530 Paimio
Tilatyyppi
Toimistotilaa
195 m2
Liiketilaa
195 m2
Näyttelytilaa
195 m2
Yhteensä
195 m2
Myyntihinta
49 000€
Kiinteistö
Myytävänä monien mahdollisuuksien liiketila/toimisto/myymälä.
TIlan koko on 145m2 katutasossa (huoneisto 6) & 50m2 varasto kellarikerroksessa (huoneisto 1).
Liiketilan on katutasossa, jossa käyntiovi ja näyteikkunat kadun suuntaan.
Liiketilan edessä on hyvin pysäköintipaikkoja kadunvarressa.
Esittelyt sopimuksen mukaan. Ole yhteydessä, mikäli olet kiinnostunut.
Kysy rohkeasti lisätietoja, niin kerron lisää.
Toimitila terveisin
Stefan Virtanen
Kiinteistönvälittäjä | LKV | LVV | KTM | Yrittäjä
stefan@stevilkv.com | 0400 999 900
www.stevilkv.com
TIlan koko on 145m2 katutasossa (huoneisto 6) & 50m2 varasto kellarikerroksessa (huoneisto 1).
Liiketilan on katutasossa, jossa käyntiovi ja näyteikkunat kadun suuntaan.
Liiketilan edessä on hyvin pysäköintipaikkoja kadunvarressa.
Esittelyt sopimuksen mukaan. Ole yhteydessä, mikäli olet kiinnostunut.
Kysy rohkeasti lisätietoja, niin kerron lisää.
Toimitila terveisin
Stefan Virtanen
Kiinteistönvälittäjä | LKV | LVV | KTM | Yrittäjä
stefan@stevilkv.com | 0400 999 900
www.stevilkv.com
Sijainti
Paimion Keskusta
Ympäristö
Asutusta ja liiketoimintaa
Pysäköinti
Kadun varressa
Palvelut
Keskustan ja alueen palvelut
Kulkuyhteydet
Hyvät. www.foli.fi
Muuta
Kysy lisää Stevi puh. 0400 999 900
Vapautuu
Heti
Rakennusvuosi
1988
Kerros
1
Katutasossa
Näkyvällä paikalla
Ota yhteyttä
Stevi LKV | Kiinteistönvälitys & Vuokravälitys
Stefan Virtanen
LKV, KTM, Yrittäjä
Näytä puhelinnumero
0400 999 900
stefan@stevilkv.com
Reipasta palvelua ja hyvää konsultointia.
Soita tai laita spostia ja kerro tila tarpeesi; tämä on ilmainen palvelu tilaa etsivälle (vuokranantaja maksaa palkkion).
Toimitilojen myynti & vuokraus.
Pyydä lisätietoa
