Vuokrataan toimistotilat - Jyväskylä
Yliopistonkatu 28, Keskusta, 40100 Jyväskylä #10766842
Siistiä toimistotilaa rauhalliselta sijainnilta Jyväskylän ytimestä
Osoite
Yliopistonkatu 28, 40100 Jyväskylä
Tilatyyppi
Toimistotilaa
182 m2
Muuta
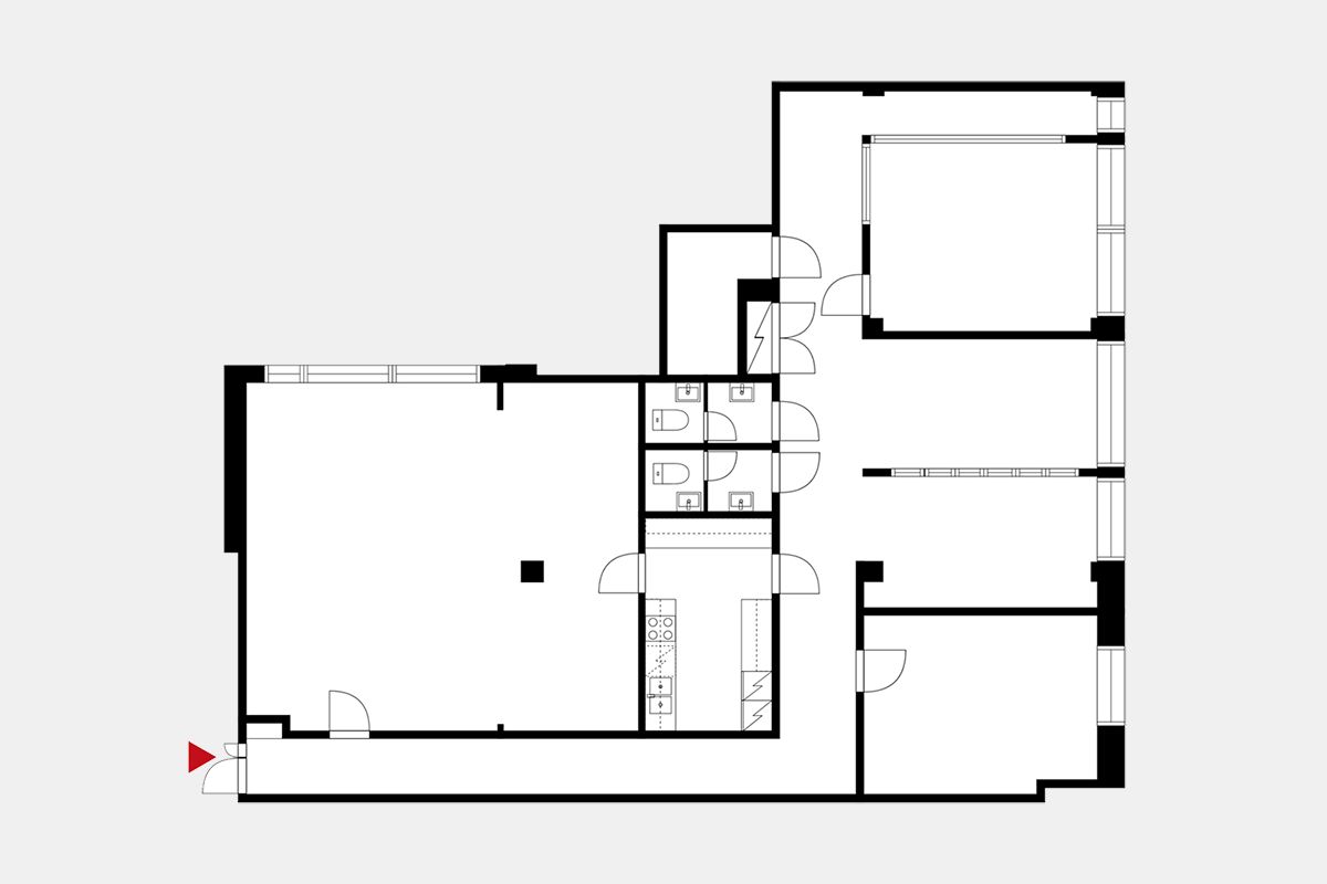
Vuokrataan 2. kerroksen toimistotila 182m2 Jyväskylän keskustan palveluiden ääreltä.
Tilaan kulku on rakennuksen sisäpihalta, ikkunat sekä sisäpihalle että Telefonikujalle. Erinomainen tiimi-/avotoimistokäyttäjälle sekä myös koulutuskäyttöön tiloja etsiville.
Nykyaikainen talotekniikka ja hyvät autopaikkamahdollisuudet lähellä sekä yhtiön omilla paikoilla.
Keskeisen sijainnin vuoksi tilat ovat helposti saavutettavissa myös julkisen liikenteen avulla ja läheltä löytyy runsaasti lounaspaikkoja sekä muita palveluita.
Kiinteistössä yhteiskäyttöinen sauna- ja kokoustila vuokralaisille.
Ota yhteyttä ja sovi näyttö!
Tilaan kulku on rakennuksen sisäpihalta, ikkunat sekä sisäpihalle että Telefonikujalle. Erinomainen tiimi-/avotoimistokäyttäjälle sekä myös koulutuskäyttöön tiloja etsiville.
Nykyaikainen talotekniikka ja hyvät autopaikkamahdollisuudet lähellä sekä yhtiön omilla paikoilla.
Keskeisen sijainnin vuoksi tilat ovat helposti saavutettavissa myös julkisen liikenteen avulla ja läheltä löytyy runsaasti lounaspaikkoja sekä muita palveluita.
Kiinteistössä yhteiskäyttöinen sauna- ja kokoustila vuokralaisille.
Ota yhteyttä ja sovi näyttö!
Vapautuu
01.08.2025
Kerros
1
Ota yhteyttä
Infonia Oy
Kauppakatu 18 A, 40100 Jyväskylä
Näytä puhelinnumero
+358503523143
Katja Shemeikka
Pyydä lisätietoa
