Vuokrataan toimistotilat - Espoo
Aallonhuippu 4, Kivenlahti, 02320 Espoo #10766839
Osoite
Aallonhuippu 4, 02320 Espoo
Tilatyyppi
Toimistotilaa
902 m2
Kiinteistö
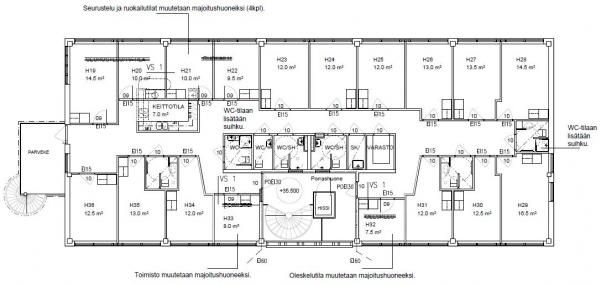
Toimistotalo, joka on tällä hetkellä poikkeusluvalla majoituskäytössä. Rakennuksessa on kolme kerrosta, kellari 110m2,1.krs 395m2, ja 2.krs 397m2. Kiinteistön pihalla on 12 kpl. autopaikkoja. 1. ja 2. krs. nyt huoneisiin jaettua tilaa yhteiskäyttöisine wc, ja suihkutiloineen, sekä keittiöineen.
Pysäköinti
Kiinteistön pihalla 12.kpl
Palvelut
Kivenlahden palvelut, ja lähellä Lippulaivan Kauppakeskus
Kulkuyhteydet
Kivenlahden Metroasema
Vapautuu
20.05.2025
Kerros
1-2
Ota yhteyttä
TopReal
Hietalahdenranta 17 B, 00180 Helsinki
Näytä puhelinnumero
09 6227 7852
Soita ja kysy lisää, tai tutustu www-sivuihimme!
http://www.topreal.fiPyydä lisätietoa
