Vuokrataan toimistotilat, varastotilat - Helsinki
Hankasuontie 3, Konala, 00390 Helsinki #10766820
Tehokasta varasto- ja tuotantotilaa Konalassa
Osoite
Hankasuontie 3, 00390 Helsinki
Tilatyyppi
Toimistotilaa
730 m2
Varastotilaa
1778 m2
Yhteensä
2508 m2
Kiinteistö
Hyvät kulkuyhteydet autolla, julkisilla kulkuneuvoilla ja polkupyörällä.
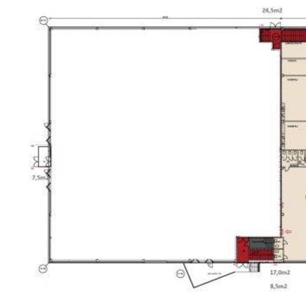
Selkeä neliön muotoinen varasto- / tuotantotila.
Varaston pinta-ala 1778 m2
Vapaa korkeus 5 m
Tilaan on lastauslaituri ja kaksi maantason nosto-ovea.
Varaston yhteydessä on sosiaalitilat ja toimisto- / taukohuone.
Samassa rakennuksessa, omalla sisäänkäynnillä, siistiä toimistotilaa 730 m2.
Toimistotilaa voidaan muokata tarpeen mukaan.
Toimistotila sopii myös kevyttuotantoon.
Pihassa runsaasti pysäköintitilaa.
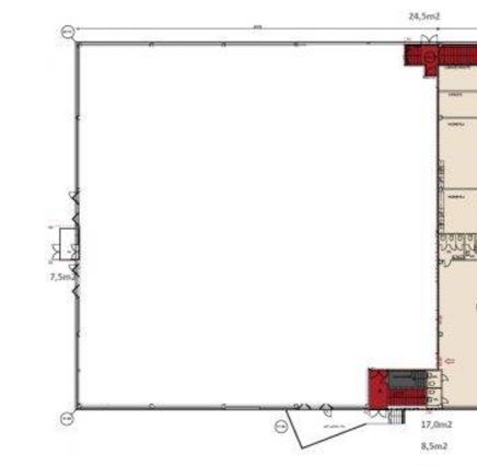
Selkeä neliön muotoinen varasto- / tuotantotila.
Varaston pinta-ala 1778 m2
Vapaa korkeus 5 m
Tilaan on lastauslaituri ja kaksi maantason nosto-ovea.
Varaston yhteydessä on sosiaalitilat ja toimisto- / taukohuone.
Samassa rakennuksessa, omalla sisäänkäynnillä, siistiä toimistotilaa 730 m2.
Toimistotilaa voidaan muokata tarpeen mukaan.
Toimistotila sopii myös kevyttuotantoon.
Pihassa runsaasti pysäköintitilaa.
Vapautuu
Kysy
Kerros
katutaso
Lastauslaituri
Ota yhteyttä
Logistila Oy
Kylätie 11-13, 00320 HELSINKI
Rauno Nurmi
Näytä puhelinnumero
050 5522 683
Pyydä lisätietoa
