Vuokrataan toimistotilat - Espoo
Hevosenkenkä 3, Leppävaara, 02600 Espoo #10766819
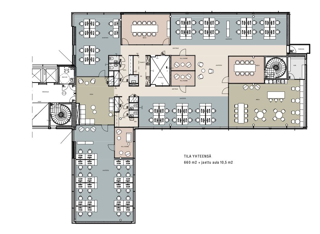
Vuokrataan valoisa 6. kerroksen toimistotila aitiopaikalta Leppävaarasta Junaradan ja Sellon vierestä Kehä I varrelta. Tämä koko kerroksen toimistotila koostuu työhuoneista, tiimihuoneista, neuvotteluhuoneista sekä keittiöstä ja sosiaalitiloista. Tila muokataan seuraavan käyttäjän toiveiden mukaan.
Panorama Tower tarjoaa vuokralaisilleen aulapalvelut, neuvottelutilat ja edustussaunan. Lähialueella on kattavat palvelut, sillä kauppakeskus Sello sijaitsee lähellä.
Kiinteistölle on erinomaiset julkiset kulkuyhteydet junalla ja linja-autolla sekä helppo saavutettavuus myös autolla. Autoilijoille vuokrattavissa parkkitilaa pysäköintihallista.
Lisätietoja soita 020 730 4530 tai info@repoint.fi. Palvelumme on tilanhakijalle ilmainen.
Hissi
Repoint Toimitilat Oy
Itälahdenkatu 22 B, 00210 Helsinki
Näytä puhelinnumero
020 730 4530
Lisätietoja soita Näytä puhelinnumero 020 730 4530 tai info@repoint.fi
https://repoint.fi/