Vuokrataan - Helsinki
Ruoholahdenkatu 14, Kamppi, 00180 Helsinki #10766792
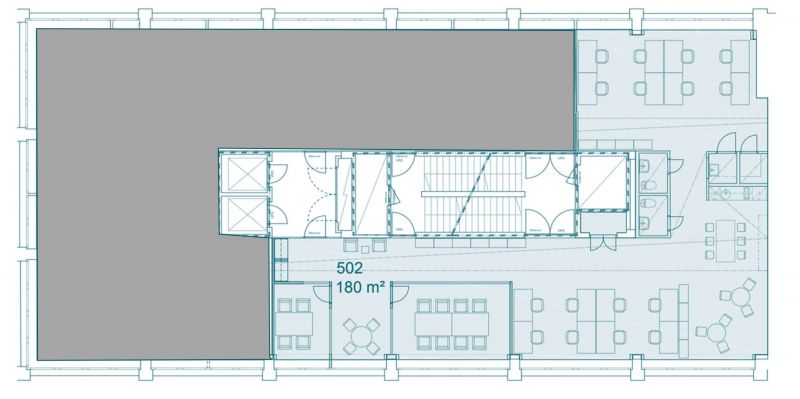
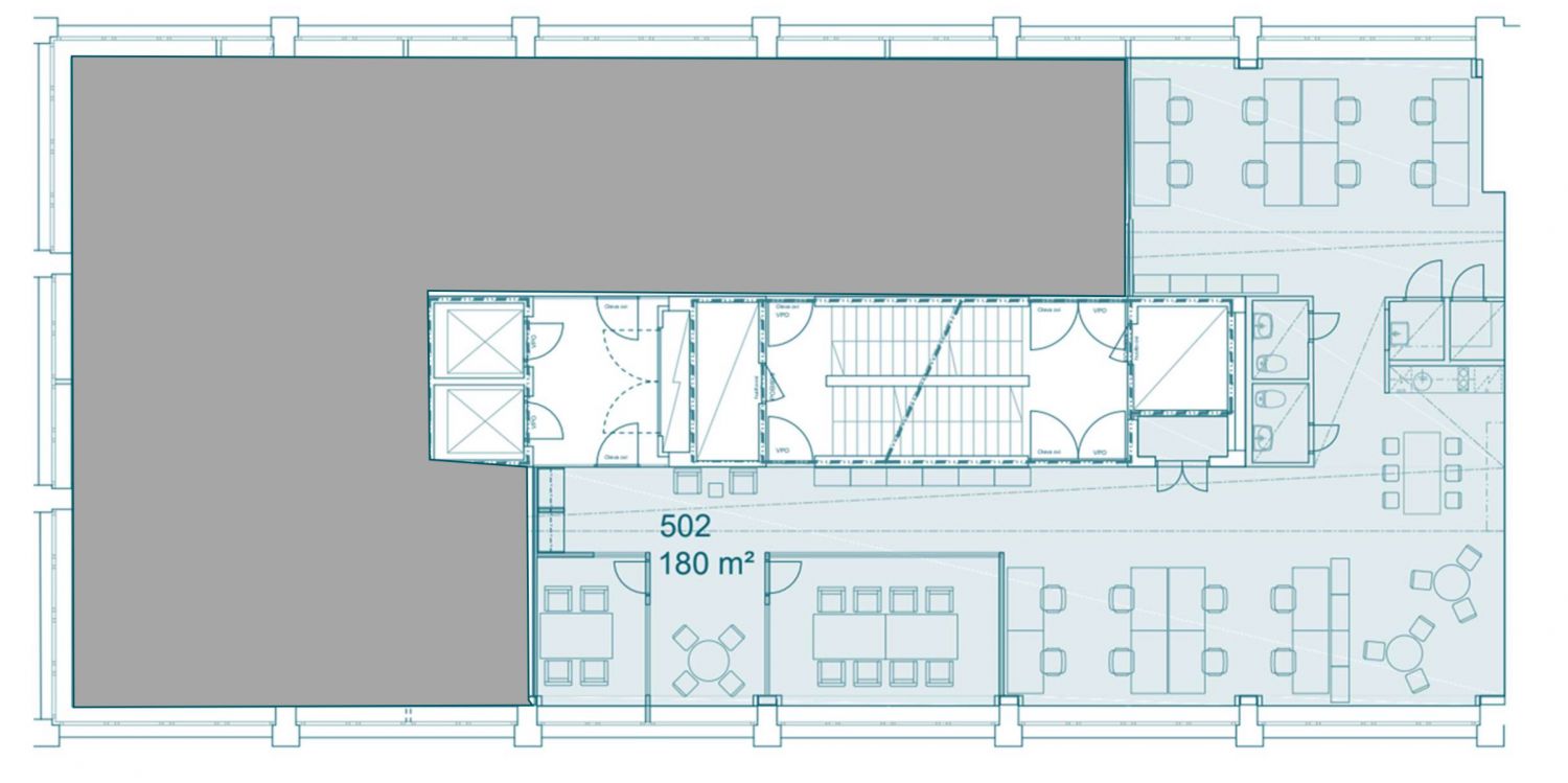
Vuokrataan viidennen kerroksen vapautumassa oleva 180m2 toimisto. Kiinteistö sijaitsee Kampissa, hyvien liikenneyhteyksien päässä niin metrolla, raitiovaunulla, bussilla, autolla kuin pyörälläkin kulkeville. Mm. Hietalahden kauppahalli herkullisine ravintoloineen on vain lyhyen kävelymatkan päässä.
Kysy lisää Jouko Raitanen Helsinki puh. 0504695444
Osoite
Ruoholahdenkatu 14, 00180 Helsinki
Vapautuu
Kysy
Huoneiden lukumäärä
1
Energiatehokkuusluokka
Ei lain edellyttämää energiatodistusta
Ota yhteyttä
RHG Real Estate
Hämeenkatu 2 B20, 20500 Turku
Näytä puhelinnumero
020 734 4020
Jouko Raitanen
Näytä puhelinnumero
050 469 5444
Pyydä lisätietoa
