Vuokrataan toimistotilat - Oulu
Isokatu 32, Keskusta Oulu, 90100 Oulu #10766592
Toimistotilaa hyvällä sijainnilla Oulun keskustassa.
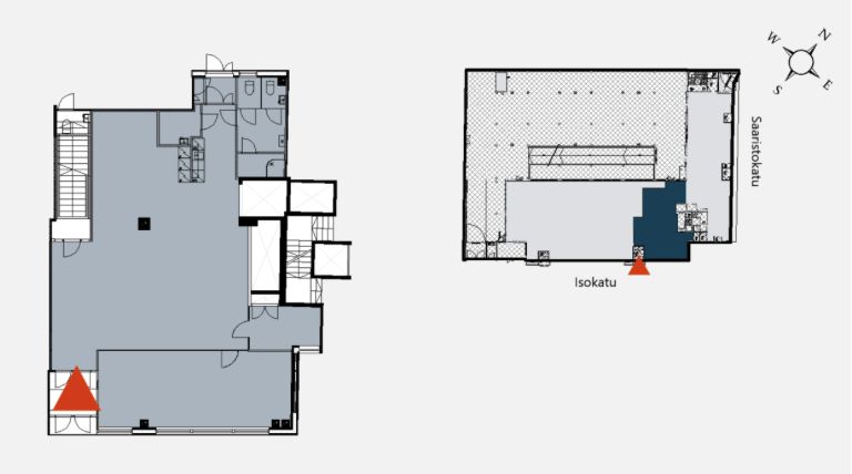
Kyseinen 172 m² toimisto sijaitsee kiinteistön 2. kerroksessa. Tila on avonainen, ja siihen kuuluvat omat sosiaalitilat.
Isokatu 32 on Oulun keskustassa sijaitseva toimisto- ja liikekiinteistö. Kiinteistön katutasossa on liiketiloja ja ylemmissä kerroksissa toimistotiloja. Kiinteistöllä on runsaasti parkkipaikkoja.
Kysy lisää numerosta 044 723 4700 tai info@bref.fi. Palvelumme on tilanhakijoille ilmainen.
Osoite
Isokatu 32, 90100 Oulu
Tilatyyppi
Toimistotilaa
172 m2
Palvelut
Oulun keskustan palvelut ympärillä.
Vapautuu
Kysy
Rakennusvuosi
1984
Kerros
2
Energiatehokkuusluokka
D
Ota yhteyttä
Bureau Real Estate Finland Oy
Lars Sonckin kaari 16, 02600 Espoo
Näytä puhelinnumero
0447234700
Bureau Real Estate Finland Oy
https://www.bref.fiPyydä lisätietoa
