Vuokrataan toimistotilat, varastotilat, muut tilat - Espoo
Koskelontie 13, Koskelo, 02920 Espoo #10766463
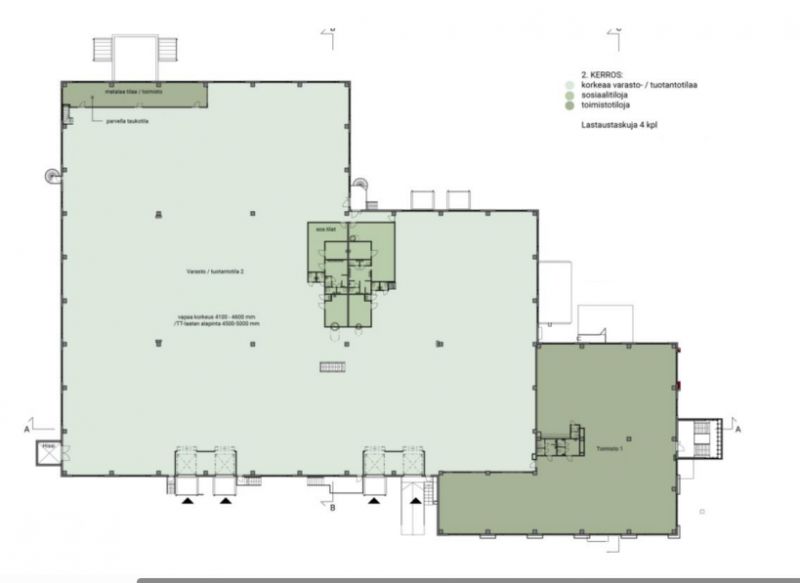
Vuokrattavana yhden- tai kolmenkin- käyttäjän tuotanto-/logistiikkakiinteistö.
Osoite
Koskelontie 13, 02920 Espoo
Tilatyyppi
Toimistotilaa
790 m2
Varastotilaa
7100 m2
Muuta tilaa
1149 m2
Yhteensä
9039 m2
Tilajako
Jaettavissa
Kiinteistö
Vuokrattavana yhden- tai kolmenkin- käyttäjän tuotanto-/logistiikkakiinteistö. Varaston vapaa korkeus 4,5 metriä, lattiakantavuus 2000 kg/m2, 3 maantason nosto-ovea, lastausramppi nosto-ovella, 7 lastaustaskua. Sosiaali- ja ravintolatiat on 1170 m2, josta ravintola on 304,5 m2.
Sijainti
Koskelo, Espoo
Pysäköinti
Kiinteistön pihalla.
Palvelut
Alueella lounasravintoloita.
Kulkuyhteydet
-Bussi
-Oma auto
-Oma auto
Vapautuu
Heti
Kerros
1-2
Energiatehokkuusluokka
Ei lain edellyttämää energiatodistusta
Näkyvällä paikalla
Jaettavissa
Lastauslaituri
Ota yhteyttä
REALIUM OY LKV
Tammasaarenkatu 1, 00180 Helsinki
Vaihde:
Näytä puhelinnumero
010 326 346
Tuomo Mäkelä
tuomo.makela@realium.fi
p.
Näytä puhelinnumero
044 050 1158
Joel Keto
joel.keto@realium.fi
p.
Näytä puhelinnumero
045 317 0330
KAIKKI TILAVAIHTOEHDOT KERRALLA!
SOITA - MEILAA JA TILAA NÄYTTÖ!
Ilmainen palvelu tilanhakijoille.
Kartoitamme parhaat tilavaihtoehdot.
Kaikki kohteet eivät ole netissä.
Pyydä lisätietoa
