Vuokrataan liiketilat, tuotantotilat, varastotilat - Espoo
Kartanonherrantie 7, Juvanmalmi, 02920 Espoo #10766378
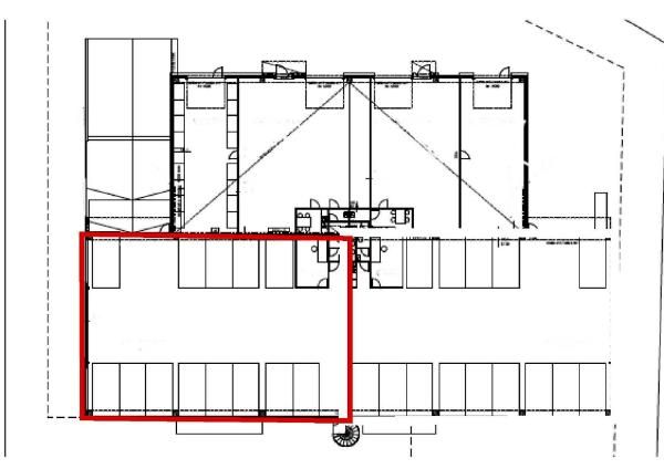
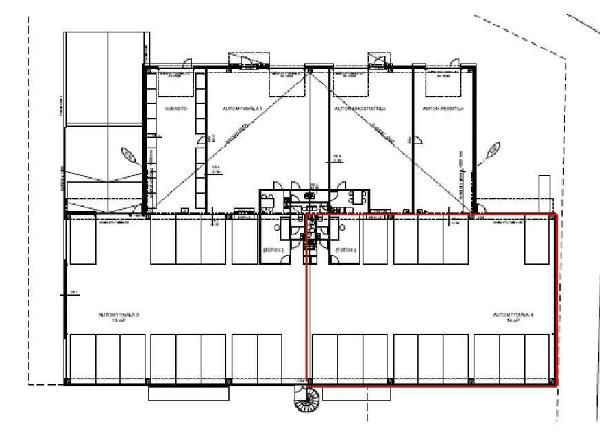
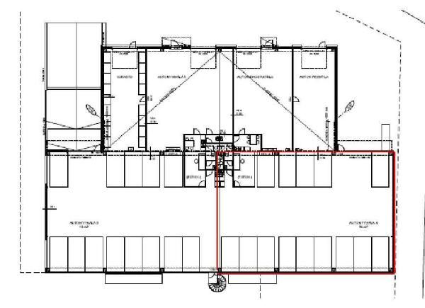
Hallitila varustettu nosto-ovella, tila jaettu väliseinällä kahteen osaan: esim. mahdollistaa myymälä tilan ja \"takavaraston\". Lattiakaivot. Kerroskorkeus pääosin n. 4,2m. Tila on mahdollista yhdistää 412m2 tilan kanssa.
Lisätietoja 020 7290 710.
Kohteella ei ole lain edellyttämää energiatodistusta.Kerros: katu
Osoite
Kartanonherrantie 7, 02920 Espoo
Tilatyyppi
Liiketilaa
412 m2
Tuotantotilaa
412 m2
Varastotilaa
412 m2
Yhteensä
412 m2
Ota yhteyttä
CRE PREMISES
Puh. Näytä puhelinnumero 020 7290 710
Vantaankoskentie 14
01670 VANTAA
Pyydä lisätietoa
