Vuokrataan toimistotilat - Järvenpää
Minkkikatu 1-3, 04430 Järvenpää #10766344
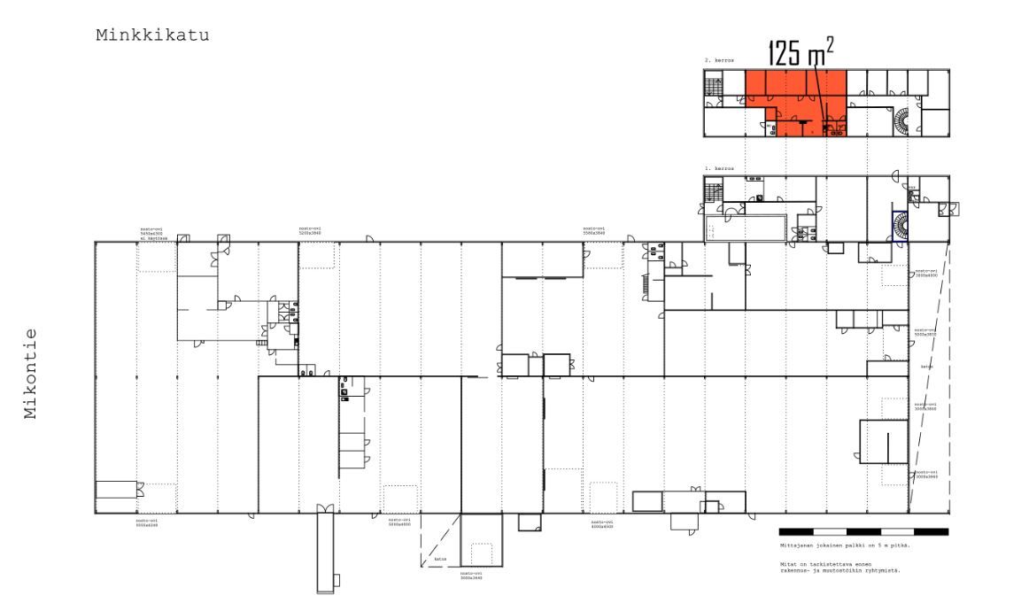
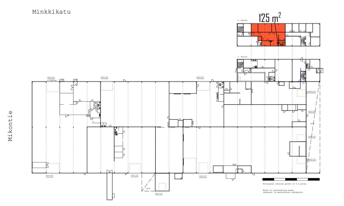
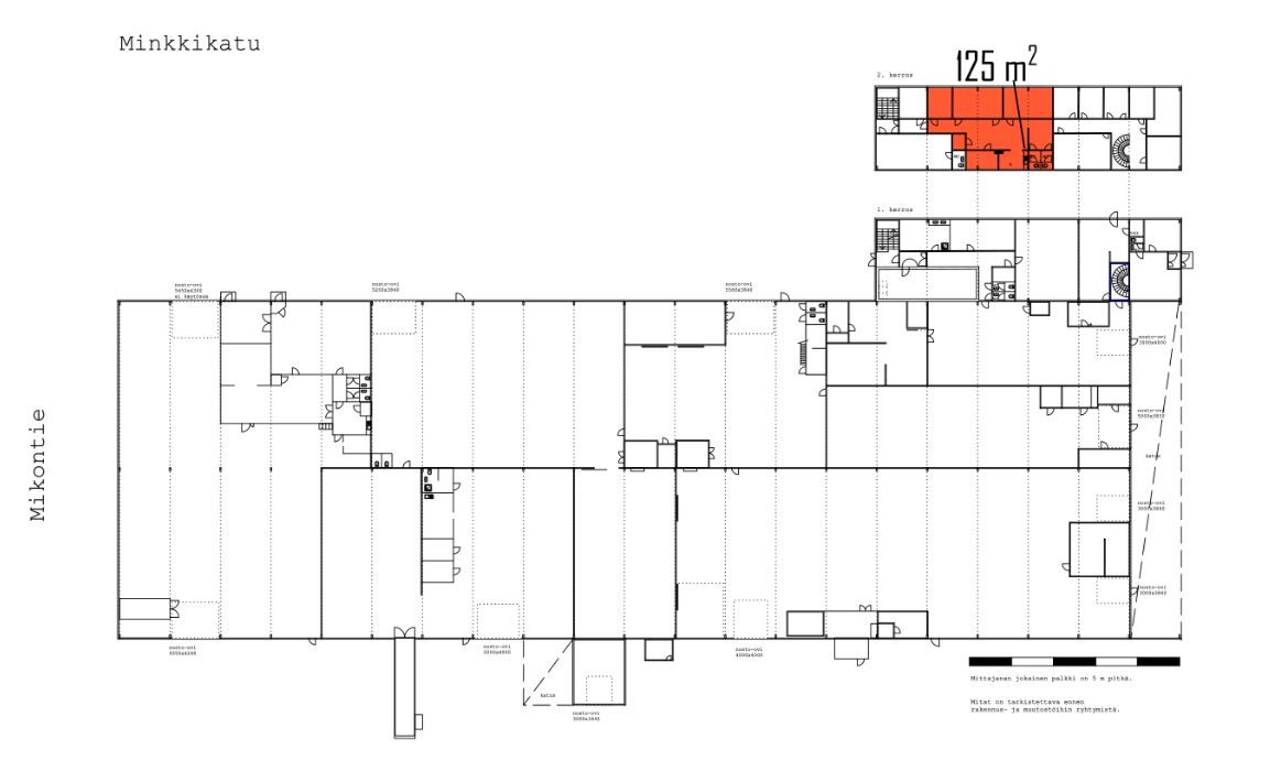
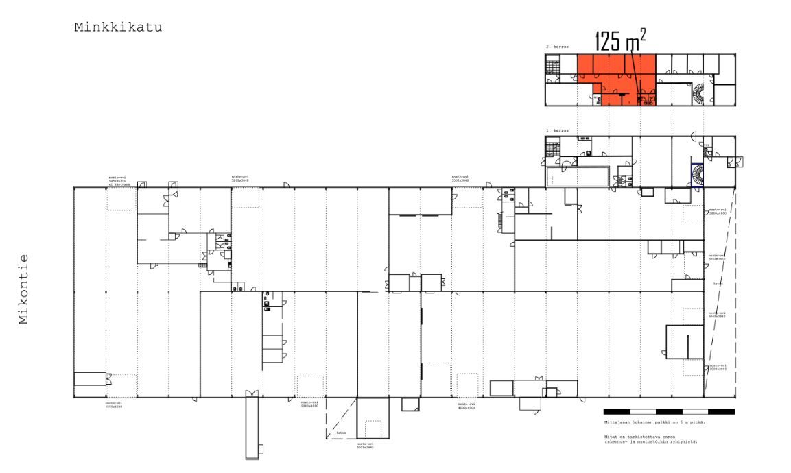
Neljä toimistohuonetta, aulatila, keittiö ja wc:t rakennuksen toisessa kerroksessa. Koneellinen ilmanvaihto.
Matkaajan Hallina tunnettu kiinteistö on valmistunut 1980-luvulla Järvenpäähän. Se sijaitsee sujuvasti Lahdenväylän ja Vanhan Lahdentien välissä. Kokonaispinta-alaltaan 5000 m2:n kokoisessa rakennuksessa on öljylämmitys. Asfaltoidulla piha-alueella riittää tilaa pysäköintiin ja vaikka yksittäisten konttien säilyttämiseen.
Lisätietoja 020 7290 710, lisää kohteita www.premises.fi
Kohteella ei ole lain edellyttämää energiatodistusta tai energialuokka ei tiedossa.Kerros: 2
CRE PREMISES
Puh. Näytä puhelinnumero 020 7290 710
Vantaankoskentie 14
01670 VANTAA
