Vuokrataan toimistotilat - Jyväskylä
Gummeruksenkatu 6, Keskusta, 40100 Jyväskylä #10766336
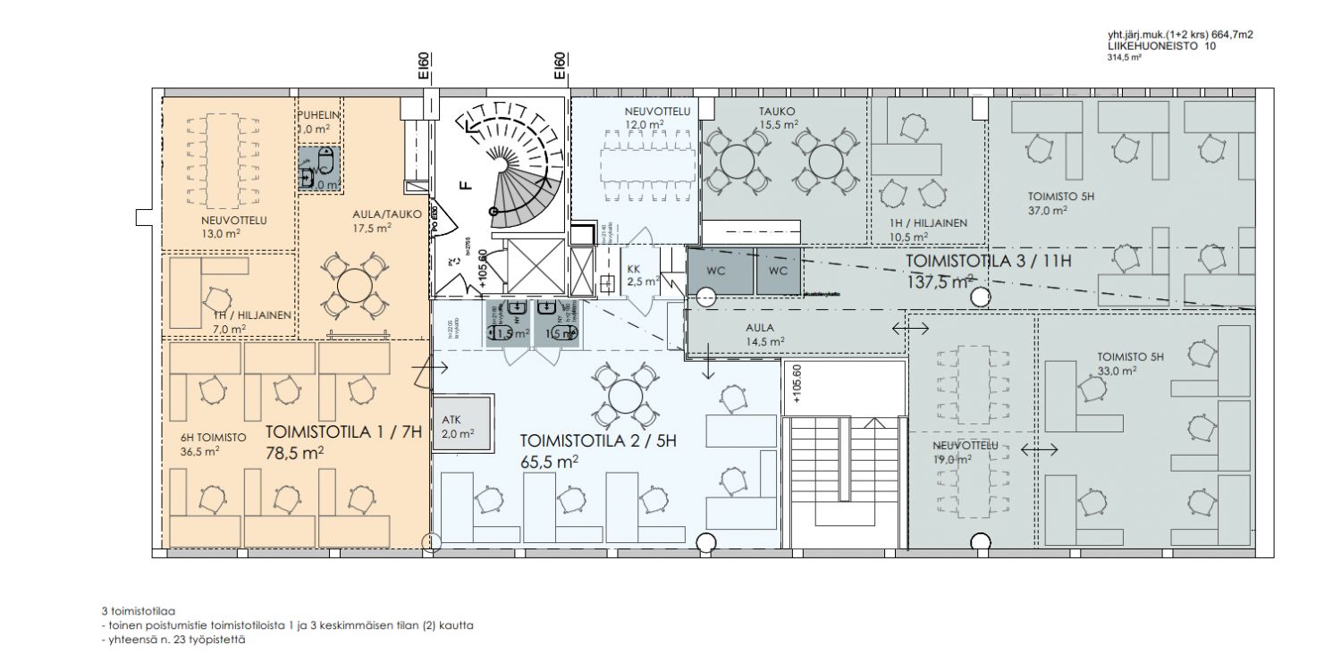
Fiksua toimistotilaa Kirkkopuiston kupeesta toisesta kerroksesta
Osoite
Gummeruksenkatu 6, 40100 Jyväskylä
Tilatyyppi
Toimistotilaa
202,5 m2
Muuta
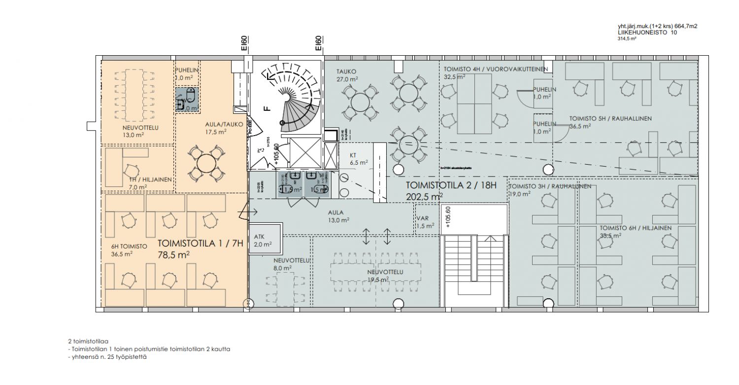
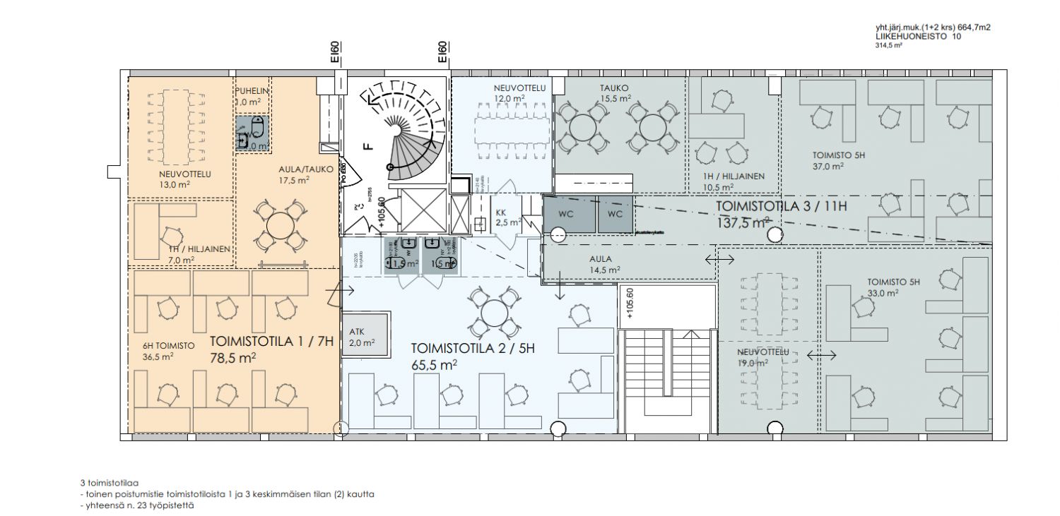
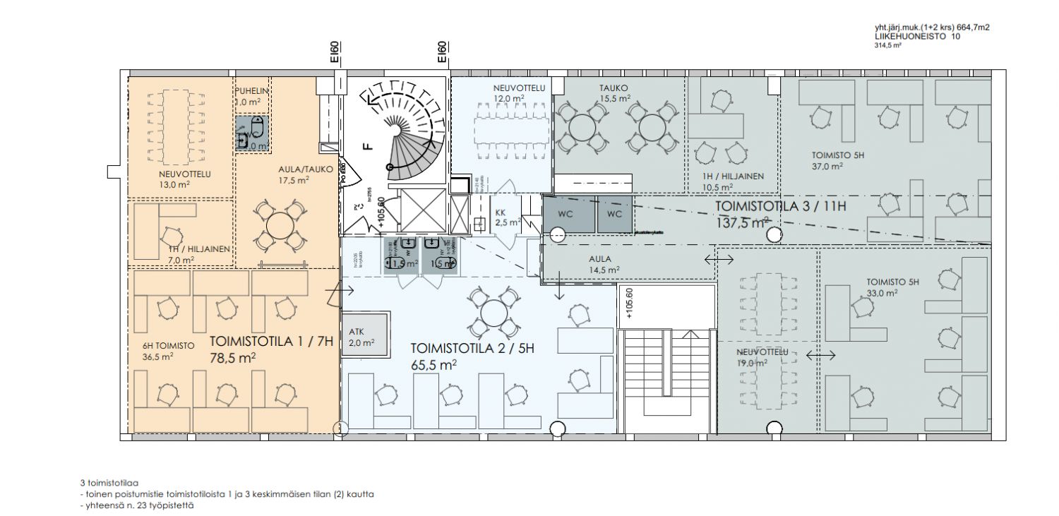
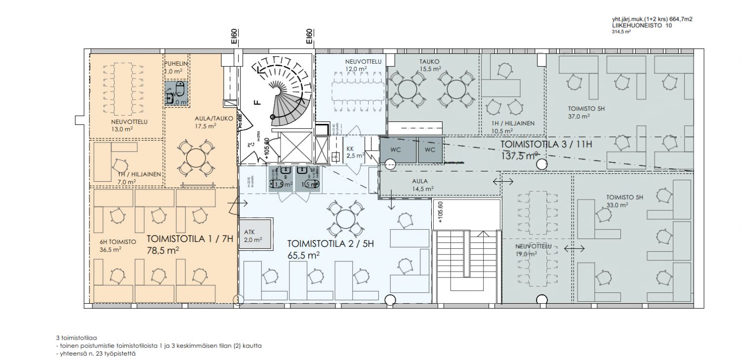
Toimiva toimistotila jota voidaan tarvittaessa pintaremontoida ja muokata seinäjärjestystä tuleva vuokralaisen toiveiden mukaisesti. Vapaa tila pohjakuvissa vihreällä, vaihtoehtoinen tilajako kahdelle toimijalle sekä yhden toimijan layout.
Toisen kerroksen toimisto, esteetön käynti takapihalta jossa myös mahdollisuus varastotilan vuokraamiseen.
Tiloissa on ollut aiemmin Jyväskylän kaupungin toimintaa ja nyt niihin etsitään uutta vuokralaista. Koneellinen ilmanvaihto.
Lämmin autohalli josta hissiyhteys suoraan tilaan
Ota yhteyttä näyttöä varten!
Toisen kerroksen toimisto, esteetön käynti takapihalta jossa myös mahdollisuus varastotilan vuokraamiseen.
Tiloissa on ollut aiemmin Jyväskylän kaupungin toimintaa ja nyt niihin etsitään uutta vuokralaista. Koneellinen ilmanvaihto.
Lämmin autohalli josta hissiyhteys suoraan tilaan
Ota yhteyttä näyttöä varten!
Vapautuu
01.01.2024
Kerros
2
Ota yhteyttä
Infonia Oy
Kauppakatu 18 A, 40100 Jyväskylä
Näytä puhelinnumero
+358 407579731
Mikko Hirvi
Näytä puhelinnumero
+358 407579731
Pyydä lisätietoa
