Vuokrataan toimistotilat - Helsinki
Vanha Helsingintie 18, Malmi, 00700 Helsinki #10766318
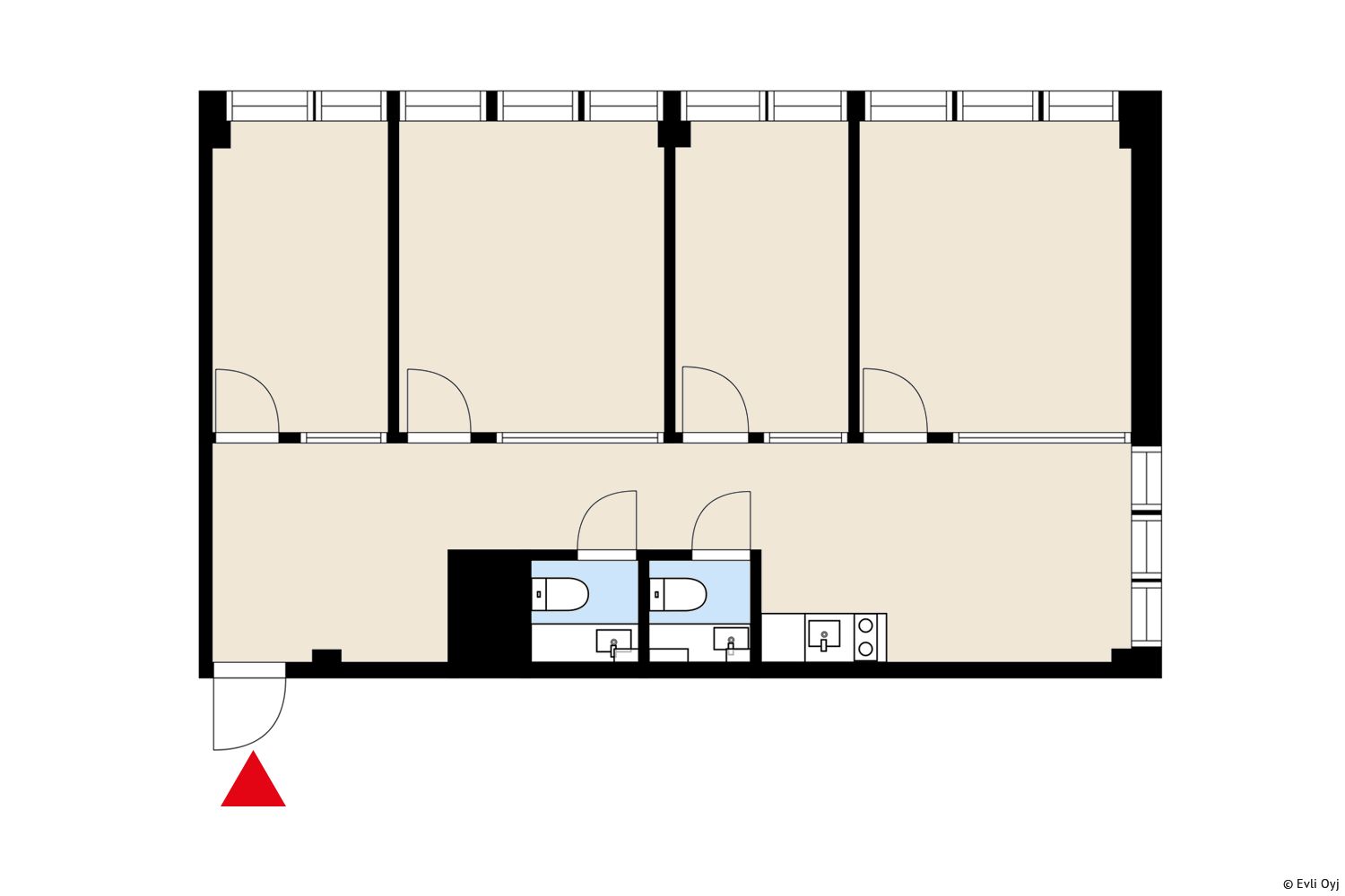
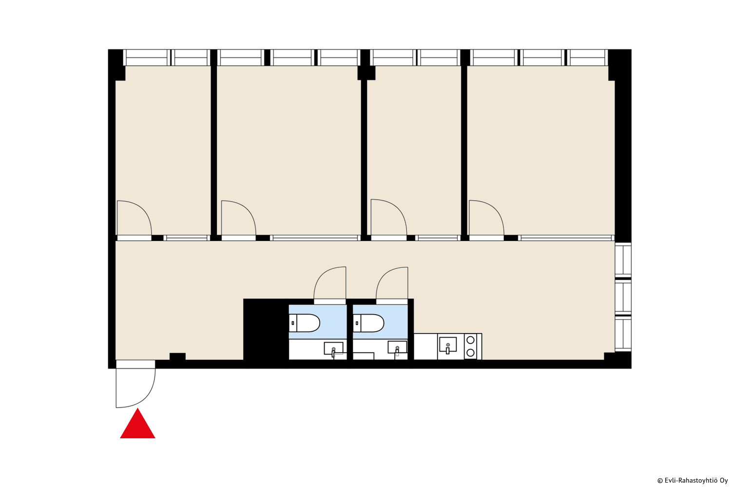
Vuokrattavana siisti ja valoisa toisen kerroksen toimistotila. Toimistohuoneista koostuvassa toimitilassa on keittonurkkaus ja omat vessat. Kiinteistö sijaitsee Helsingin Malmilla, jonne on erinomaiset kulkuyhteydet niin julkisilla kulkuneuvoilla kuin omalla autolla. Alueen monipuoliset julkiset ja kaupalliset palvelut ovat kävelyetäisyydellä.
Osoite
Vanha Helsingintie 18, 00700 Helsinki
Tilatyyppi
Toimistotilaa
74 m2
Kiinteistö
Vanha Helsingintie 18
Pysäköinti
Kiinteistössä vuokrattavissa pysäköintipaikkoja.
Muuta
Tilan ominaisuudet: tilassa on ilmastointi
Vapautuu
Heti vapaa
Kerros
2.
Energiatehokkuusluokka
D
Ota yhteyttä
Evli
Aleksanterinkatu 19, 00100 Helsinki
Näytä puhelinnumero
020 155 8610
Kukka Floor
Näytä puhelinnumero
09 4766 9480
Pyydä lisätietoa
