Vuokrataan toimistotilat, varastotilat - Espoo
Koskelontie 21-25, Koskelo, 02920 Espoo #10766164
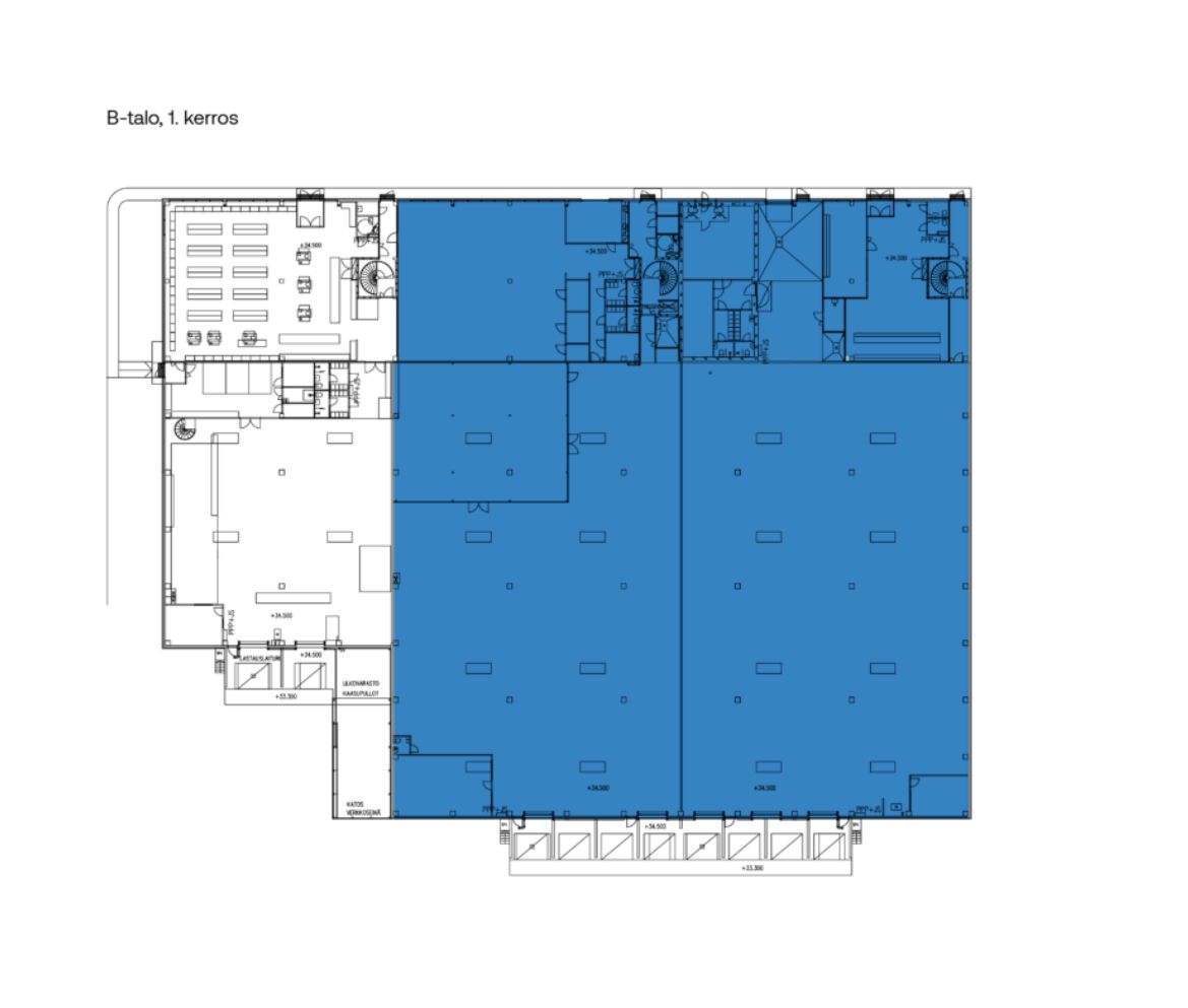
Vuokrataan B-talon tila, jossa 2. kerroksessa 424 m2 edustavaa toimistotilaa ja 1. krs varasto 1 391 m2 sekä sosiaalitilat, tilaan myös maantason nosto-ovi sekä toisella puolella lastauslaituri. Voidaan yhdistää alla olevaan tilaan. Ohessa havainnollista kuvia tiloista.
Koskelo Trade Parkon noin 26 000 m2 toimitilakokonaisuus, jonka tilat on suunniteltu joustamaan asiakkaan tarpeiden mukaan. Kaava mahdollistaa erilaisten toimintojen sijoittumisen ja yhdistämisen tontilla. Kokonaisuus käsittää varasto-, toimisto-, myymälä-ja näyttelytilaa. Toimitiloja pihatasossa nosto-ovin tai lastauslaituritasolla.
Lisätiedot 020 7290 710 ja lisää kohteita premises.fi
Kohteella ei ole lain edellyttämää energiatodistusta.Kerros: 1-2
CRE PREMISES
Puh. Näytä puhelinnumero 020 7290 710
Vantaankoskentie 14
01670 VANTAA
