Vuokrataan toimistotilat, tuotantotilat, varastotilat - Espoo
Koskelontie 21-25, Koskelo, 02920 Espoo #10766164
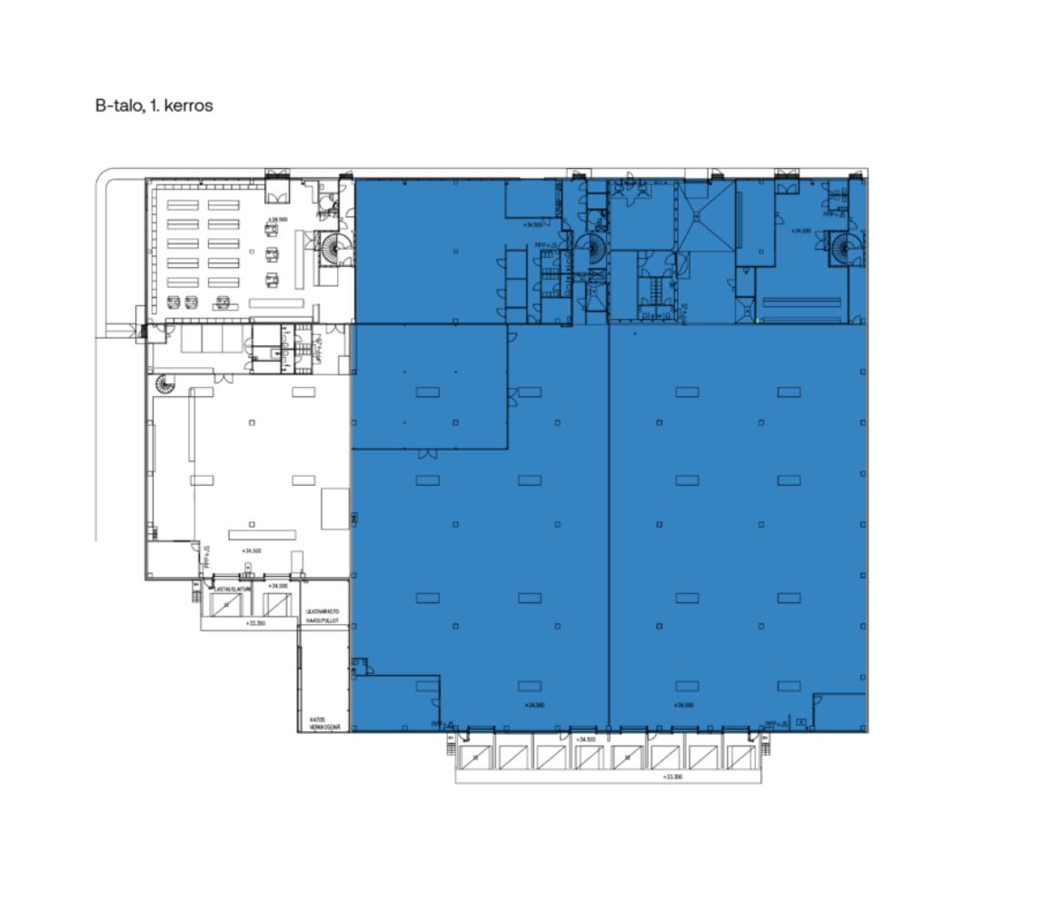
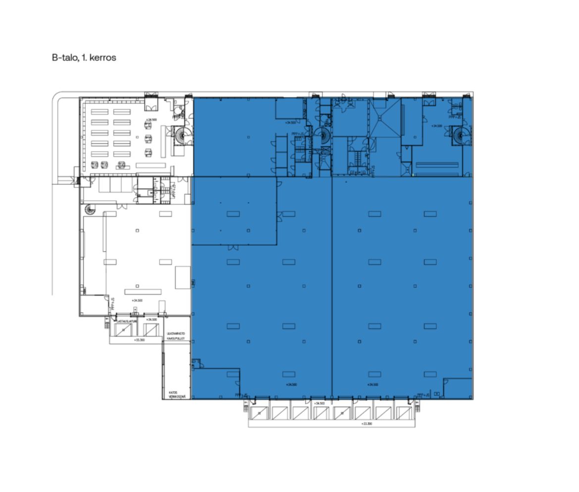
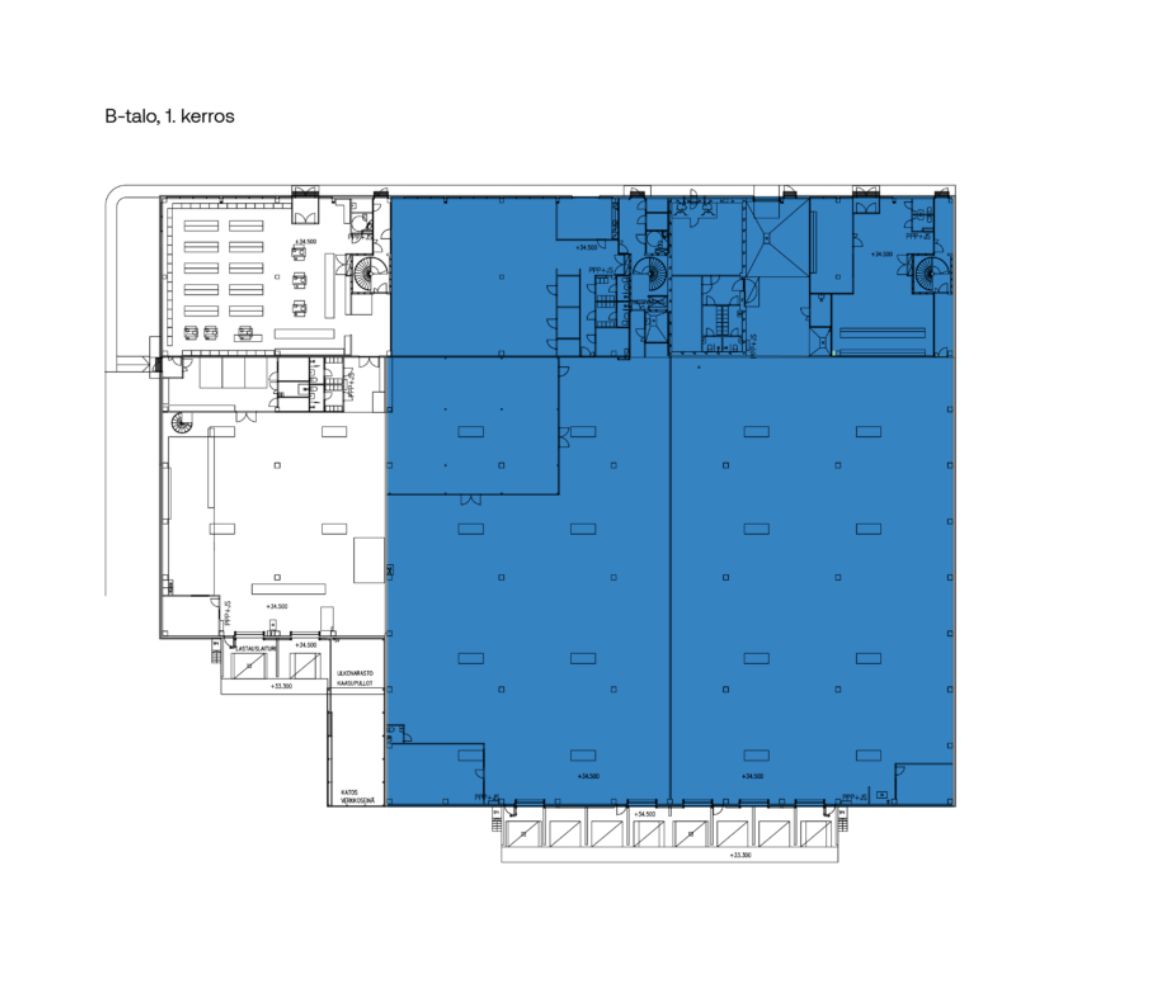
Vuokrattavana korkeaa varasto- ja tuotantotilaa. Ensimmäisessä kerroksessa sijaitsevat varastotilat 1321,5 m2, liiketila 175,5 m2 sekä sosiaalitilat 93,5 m2. Toisessa kerroksessa on toimistotilaa yhteensä 411,5 m2.
Varastossa on yksi maantason nosto-ovi (leveys noin 2,40 m, korkeus noin 2,90 m) sekä kolme nosto-ovea lastauslaiturille. Lastauslaiturin ovien leveys on noin 2,65 m ja korkeus noin 3,10 m. Varaston sisäkorkeus on noin 8 metriä. Ohessa havainnollista kuvia tiloista.
Koskelo Trade Parkon noin 26 000 m2 toimitilakokonaisuus, jonka tilat on suunniteltu joustamaan asiakkaan tarpeiden mukaan. Kaava mahdollistaa erilaisten toimintojen sijoittumisen ja yhdistämisen tontilla. Kokonaisuus käsittää varasto-, toimisto-, myymälä-ja näyttelytilaa. Toimitiloja pihatasossa nosto-ovin tai lastauslaituritasolla.
Lisätiedot 020 7290 710 ja lisää kohteita premises.fi
Kohteella ei ole lain edellyttämää energiatodistusta.Kerros: 1-2
CRE PREMISES
Puh. Näytä puhelinnumero 020 7290 710
Vantaankoskentie 14
01670 VANTAA
