Vuokrataan toimistotilat - Helsinki
Kuortaneenkatu 2, Vallila, 00510 Helsinki #10766152
Toimistotilaa Vallila Cornerista.
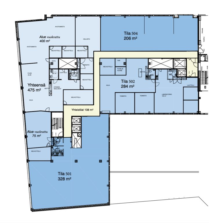
Tämä 284m2 toimistotila sijaitsee kiinteistön 5. kerroksessa. Toimisto koostuu muutamasta työhuoneesta, neuvotteluhuoneesta sekä laboratoriotilasta ja siihen kuuluu omat keittiö- ja wc-tilat. Tilaa on mahdollista remontoida vuokralaisen tarpeiden mukaan.
Kuortaneenkatu 2 eli Vallila Corner sijaitsee Helsingin Vallilassa, muutaman kilometrin päässä Helsingin keskustasta. Kiinteistö sijaitsee hyvien julkisten liikenneyhteyksien varrella, noin kilometrin päässä Triplasta ja Pasilan juna-asemasta. Kiinteistössä on monipuoliset palvelut, kuten aivan uusi lounasravintola, viihtyisä kahvila, 85-paikkainen auditorio, kokoustiloja, aulapalvelu ja yli 200 autopaikkaa. Vallila Cornerin aula ja sisäänkäynti on vasta uusittu.
Kysy lisää numerosta 044 723 4700 tai info@bref.fi. Palvelumme on tilanhakijoille ilmainen.
Bureau Real Estate Finland Oy
Lars Sonckin kaari 16, 02600 Espoo
Näytä puhelinnumero
0447234700
Bureau Real Estate Finland Oy
https://www.bref.fi