Vuokrataan liiketilat - Jyväskylä
Kauppakatu 31 Jyväskeskus, Kauppakatu 31, Keskusta, 40100 Jyväskylä #10766110
Vuokrataan liiketila Jyväskeskuksesta
Osoite
Kauppakatu 31, 40100 Jyväskylä
Tilatyyppi
Liiketilaa
46 m2
Muuta
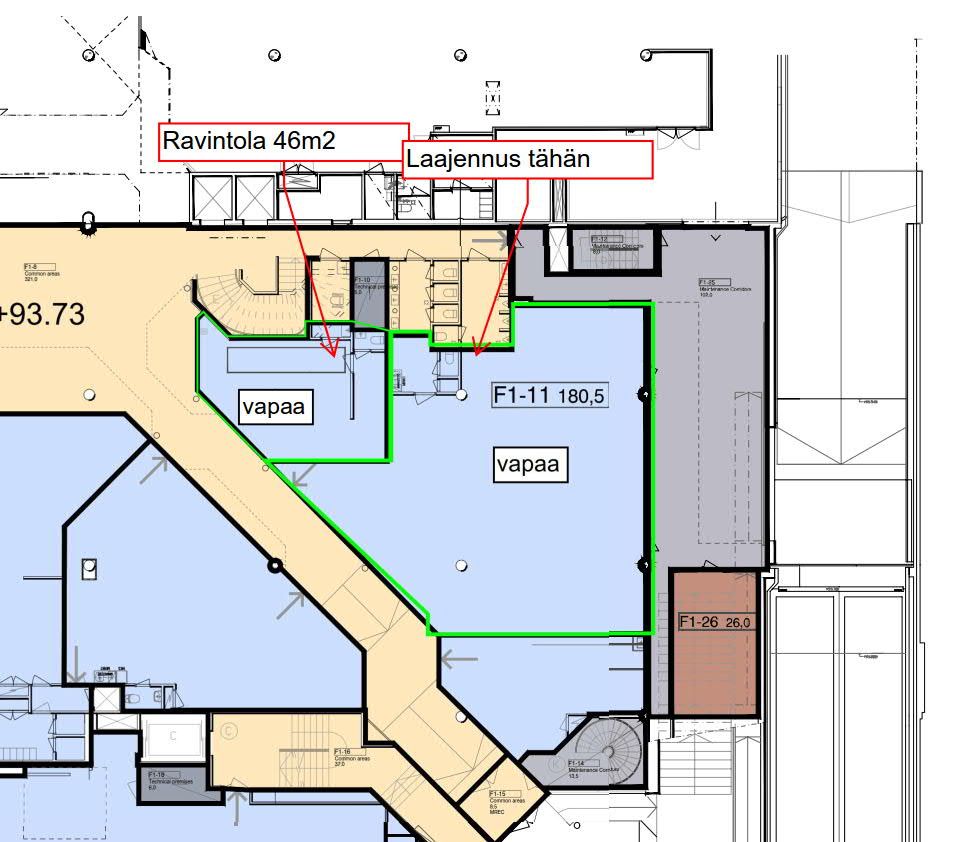
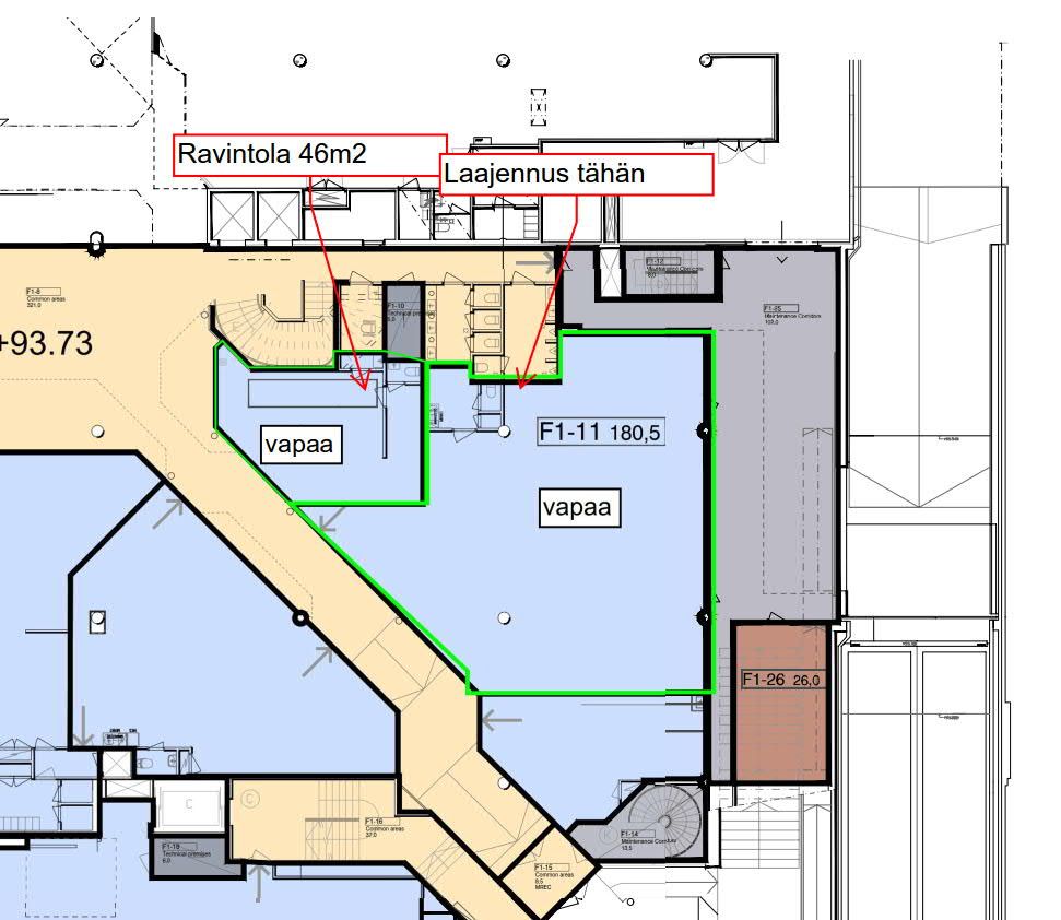
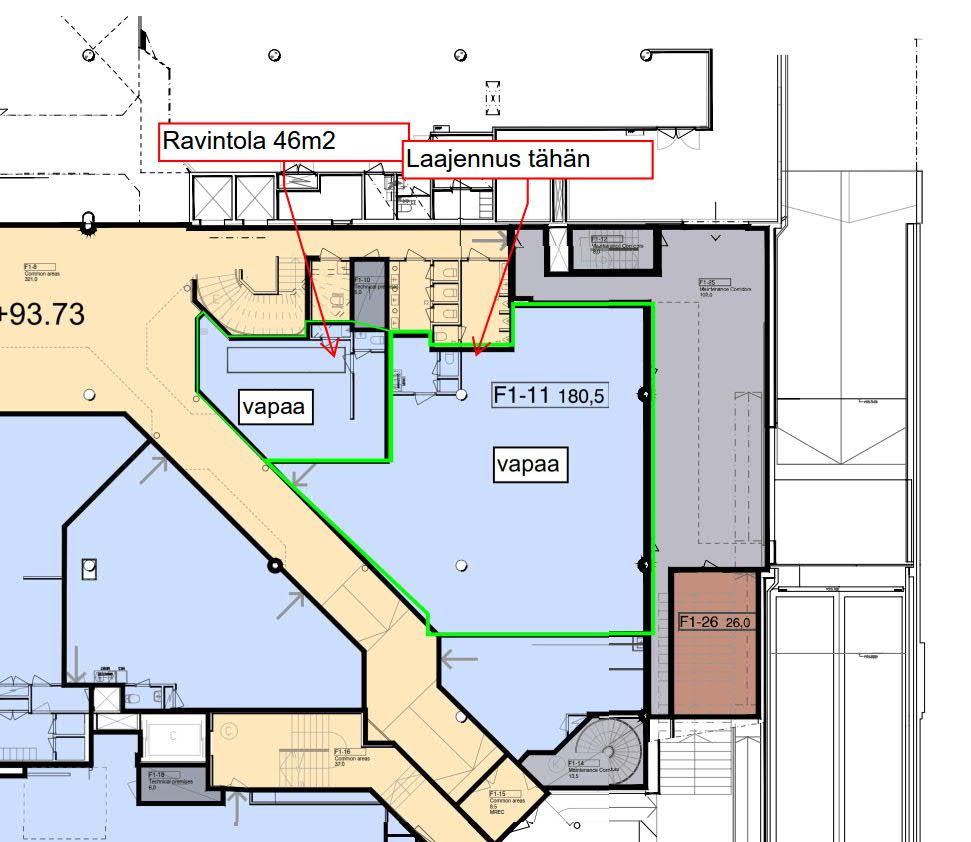
Vuokrataan noin 46 m2 liiketila Jyväskylän ydinkeskustasta. Voitaisiin yhdistää viereiseen 180,5m2 liiketilaan ja saada isompi ravintola kokonaisuus. Liiketila sijaitsee kauppakeskus Jyväskeskuksessa vilkkaalla liikepaikalla. Tilassa on kahvila/ravintolatason ilmanvaihto, kevyempään ruuanlaittoon.
Ota yhteyttä näyttöä ja lisätietoja varten!
Ota yhteyttä näyttöä ja lisätietoja varten!
Vapautuu
Kysy
Kerros
1
Ota yhteyttä
Infonia Oy
Kauppakatu 18 A, 40100 Jyväskylä
Näytä puhelinnumero
+358 407579731
Mikko Hirvi
Näytä puhelinnumero
+358 407579731
Pyydä lisätietoa
