Vuokrataan liiketilat - Jyväskylä
Yliopistonkatu 36 Torikeskus, Yliopistonkatu 36, Keskusta, 40100 Jyväskylä #10766084
Valmis ravintolatila Jyväskylän ydinkeskustasta
Osoite
Yliopistonkatu 36, 40100 Jyväskylä
Tilatyyppi
Liiketilaa
200 m2
Muuta
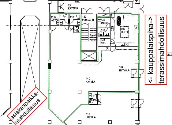
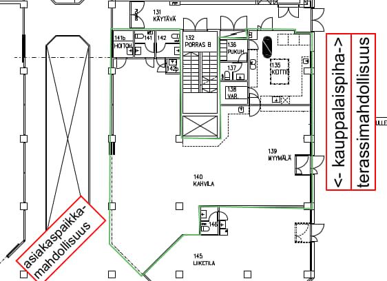
Vuokrataan näkyvällä paikalla oleva ravintolatila Kauppalaispihalta, Torikeskuksesta omalla ulkosisäänkäynnillä. Tila on toiminut ravintolana pitkään ja on tunnettu sijainti. Vieressä yökerho ja kauppalaispihalla myös muita ravintoloita lähietäisyydellä.
- Tilassa täysi ravintolavalmius, vuokrataan ilman salikalusteita, ravintolalaitteita tai kalusteita.
- Tilan edessä mahdollisuus terassiin kiinteistön puolelle.
- Pohjakuvassa vuokrattava ravintolatila korostettu vihreällä, pohjakuva sisäpuolisten seinien osalta ohjeellinen.
Ota yhteyttä näyttöä varten!
- Tilassa täysi ravintolavalmius, vuokrataan ilman salikalusteita, ravintolalaitteita tai kalusteita.
- Tilan edessä mahdollisuus terassiin kiinteistön puolelle.
- Pohjakuvassa vuokrattava ravintolatila korostettu vihreällä, pohjakuva sisäpuolisten seinien osalta ohjeellinen.
Ota yhteyttä näyttöä varten!
Vapautuu
Kysy
Kerros
1
Ota yhteyttä
Infonia Oy
Kauppakatu 18 A, 40100 Jyväskylä
Näytä puhelinnumero
+358 407579731
Mikko Hirvi
Näytä puhelinnumero
+358 407579731
Pyydä lisätietoa
