Vuokrataan tuotantotilat - Raisio
Tuotekatu 13, 21200 Raisio #10766025
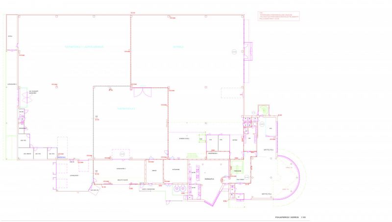
Vuokrattavana n. 1007m2 tuotanto-logistiikkatilat vilkkaalta Tuotekadulta Raisiosta, osoitteessa Tuotekatu 13, Raisio.
Tilakokonaisuus, jossa 5 metriä korkea n. 930m2 varastotilan lisäksi erillinen kahdella lastaustaskulla varustettu alue. Pääosin avotilaa, lisäksi tilassa pari toimistohuonetta, sosiaalitilat sekä kahdet wc-tilat.
Tarvittaessa on kiinteistön alakerrasta vuokrattavissa n. 388m2 keittiö- ja sosiaalitilat.
Tuotantotilan takaosassa on pitkä lastauslaituri, jossa osaa korotettu pakettiauto korkeuteen sopivaksi. Lisäksi tuotantotilan yhteydessä löytyy kaksi erillistä lastaustaskua.
Vuokrapyyntö: 9 300e /kk (10,00 euroa /m2) + alv. Lämpö sisältyy vuokraan. Sähkö ja vesi kulutuksen mukaan.
Vapautuu sopimuksen mukaan.
Ei lain edellyttämää e-todistusta.
Lisää toimitiloja www.rhg.fi
RHG Real Estate
Hämeenkatu 2 B20, 20500 Turku
Näytä puhelinnumero
020 734 4020
Tony Rosenblad
Hallituksen puheenjohtaja
Näytä puhelinnumero
+358 50 551 5375
