Vuokrataan toimistotilat, liiketilat, hoivatilat - Savonlinna
Kirkkokatu 7, Keskusta, 57100 Savonlinna #10765990
Liikehuoneisto
Osoite
Kirkkokatu 7, 57100 Savonlinna
Tilatyyppi
Toimistotilaa
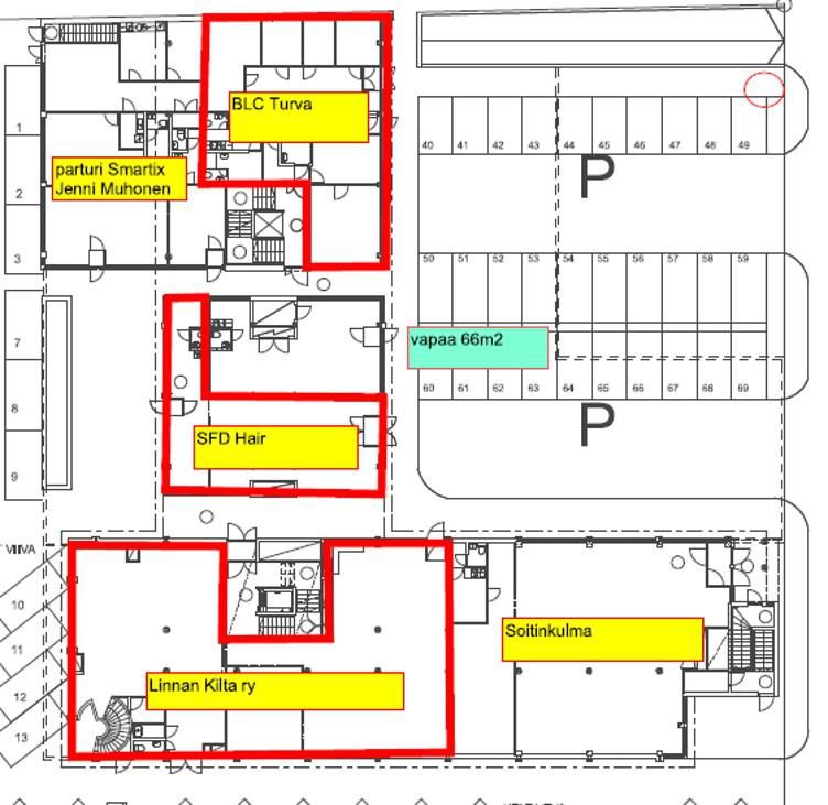
66 m2
Liiketilaa
66 m2
Hoivatilaa
66 m2
Yhteensä
66 m2
Kiinteistö
Liikehuoneisto 66 m² Savonlinnan ydinkeskustassa
Savonlinnan keskusta-alueella on vuokrattavana tasokas liikehuoneisto.
Liikehuoneisto on keskellä rakennusta ja näkyvästi katutasossa.
Kohde on vapaa, erittäin siisti ja muuttovalmiina.
Vapaana oleva tila sopii hyvin liiketilaksi, erikoistavaramyymäläksi tai toimistokäyttöön.
Fysioterapia - Kauneushoitola - Parturi - Kampaamo - Ompelimo - Myymälä - Asiakaspalvelu - Pienyrittäjä
Varustelutaso on lähtökohtaisesti korkea ja voit omalla sisustustyylillä stailata pintamateriaalit mieleiseksi.
Kiinteistö ja sijainti
Kiinteistö sijaitsee hyvällä paikalla osoitteessa Kirkkokatu 7. Samassa osoitteessa on mm. Terveystalo ja useita muita yrityksiä.
Autolla sekä julkisilla pääsee kiinteistölle sujuvasti. Piha-alueella on pysäköintipaikkoja ja katutason alapuolella on vuokralaisille parkkihalli.
Kaikki keskusta-alueen palvelut ja lounaspaikat ovat lähellä.
Soita ja sovitaan käynti paikan päälle!
Savonlinnan keskusta-alueella on vuokrattavana tasokas liikehuoneisto.
Liikehuoneisto on keskellä rakennusta ja näkyvästi katutasossa.
Kohde on vapaa, erittäin siisti ja muuttovalmiina.
Vapaana oleva tila sopii hyvin liiketilaksi, erikoistavaramyymäläksi tai toimistokäyttöön.
Fysioterapia - Kauneushoitola - Parturi - Kampaamo - Ompelimo - Myymälä - Asiakaspalvelu - Pienyrittäjä
Varustelutaso on lähtökohtaisesti korkea ja voit omalla sisustustyylillä stailata pintamateriaalit mieleiseksi.
Kiinteistö ja sijainti
Kiinteistö sijaitsee hyvällä paikalla osoitteessa Kirkkokatu 7. Samassa osoitteessa on mm. Terveystalo ja useita muita yrityksiä.
Autolla sekä julkisilla pääsee kiinteistölle sujuvasti. Piha-alueella on pysäköintipaikkoja ja katutason alapuolella on vuokralaisille parkkihalli.
Kaikki keskusta-alueen palvelut ja lounaspaikat ovat lähellä.
Soita ja sovitaan käynti paikan päälle!
Vapautuu
Kysy
Kerros
Katutaso
Ota yhteyttä
Logistila Oy
Ankkuritie 1, 70460 KUOPIO
Timo Puustinen
Näytä puhelinnumero
0400 33 00 30
Pyydä lisätietoa
