Vuokrataan toimistotilat, tuotantotilat, varastotilat - Espoo
Koskelontie 13, Koskelo, 02920 Espoo #10765878
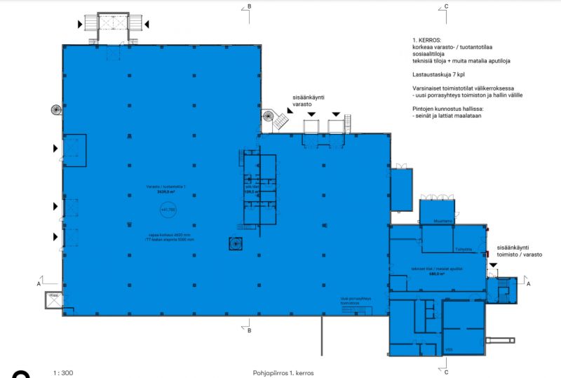
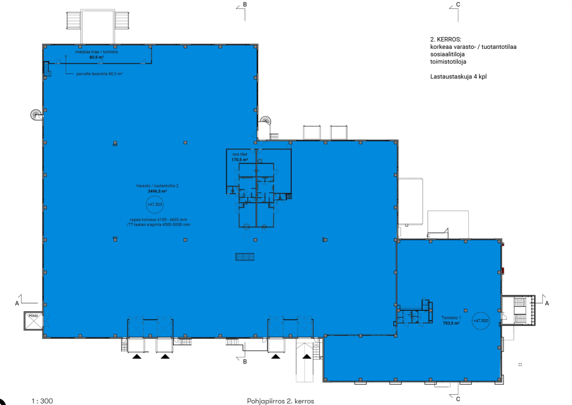
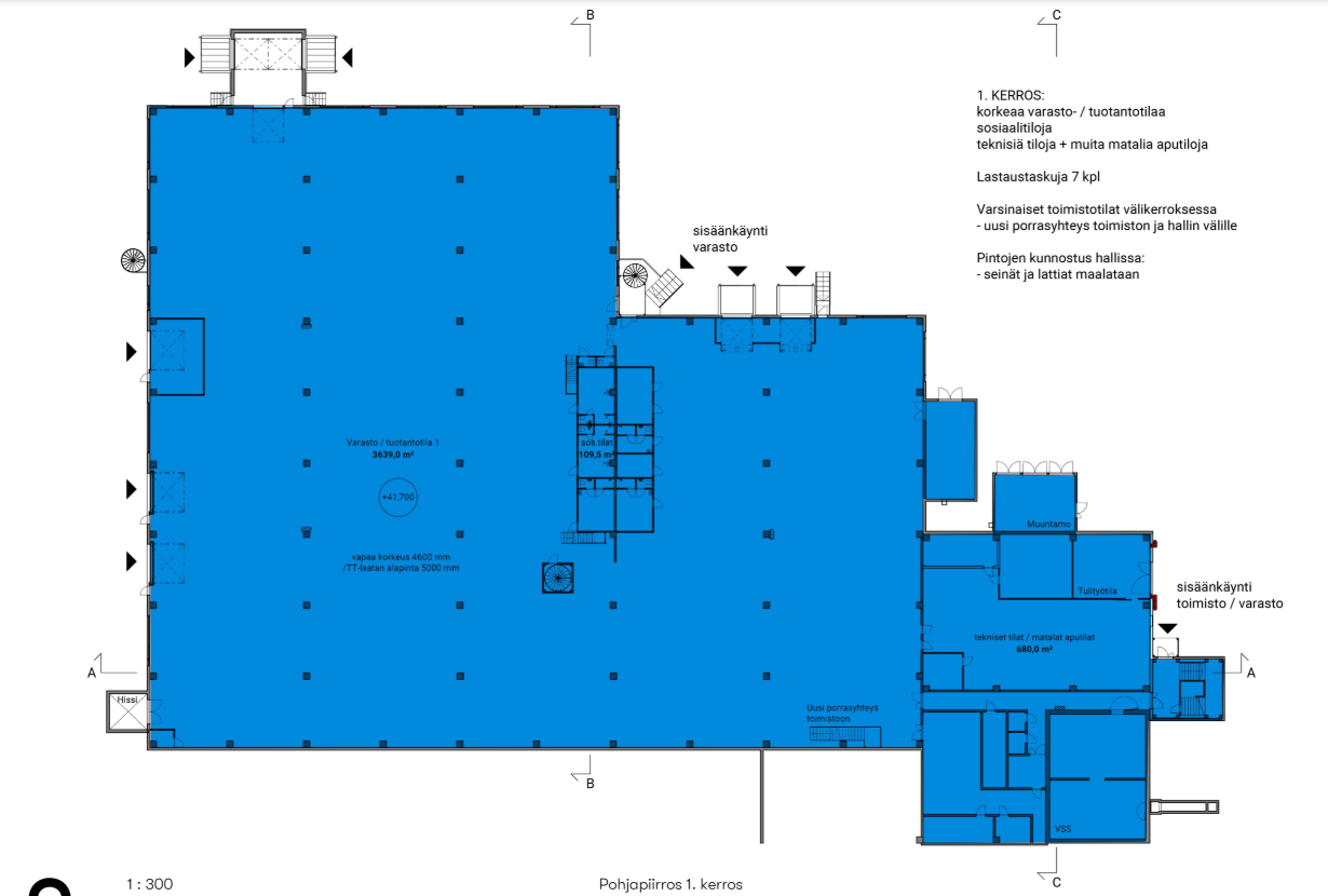
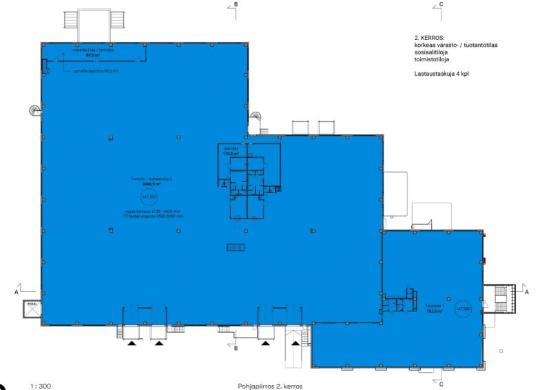
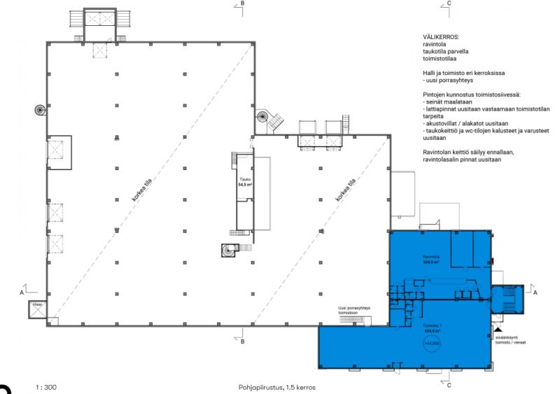
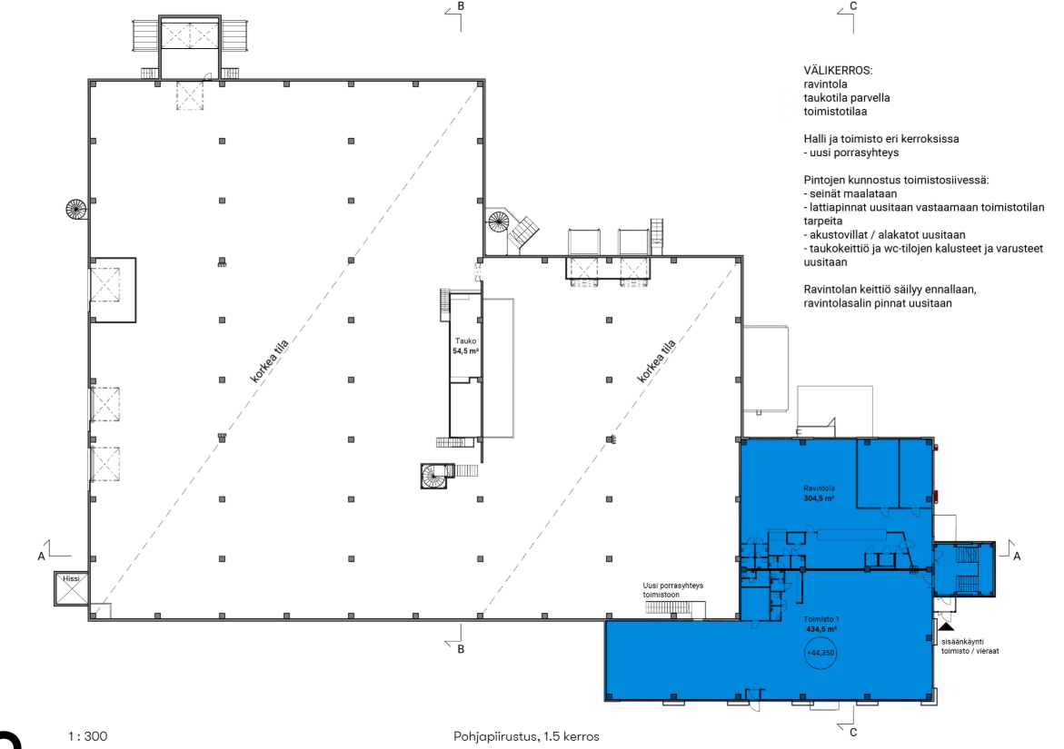
Kehä III:n varrella Espoon Koskelossa sijaitseva siistikuntoinen kiinteistökokonaisuus jossa tuotanto,- varasto- ja toimistotilaa isollekin yritykselle. Vuokrattavat tilat koostuvat tuotanto-/varastotilasta n. 7100 m2, toimistosta n. 790 m2 ja lisäksi sosiaali- ja muuta tilaa, joista ravintolatilat n. 304 m2. Tiloissa on lastauramppi sekä useita lastaustaskuja nosto-ovilla, lattiakantavuus 2000 kg/m2.Tilat ovat räätälöitävissä uuden käyttäjän tarpeisiin sopiviksi. Ota yhteyttä ja sovi esittely, vuokrauspalvelumme on tilanhakijoille maksuton.
Näkyvällä paikalla
Senaatin Notariaatti Oy LKV
Lämmittäjänkatu 4 A
FIN-00880 Helsinki
Tel:
Näytä puhelinnumero
+358 9 7745 100
