Vuokrataan toimistotilat, tuotantotilat, varastotilat - Espoo
Koskelontie 13, Koskelo, 02920 Espoo #10765870
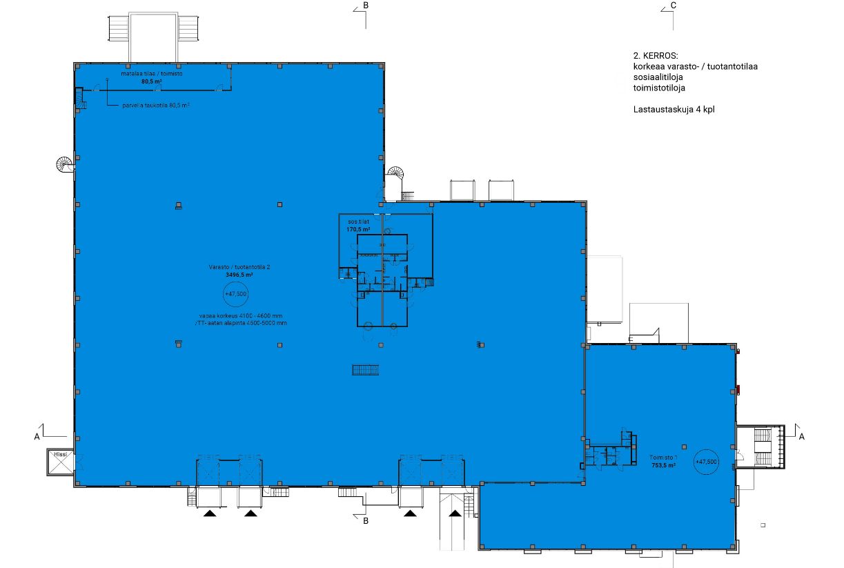
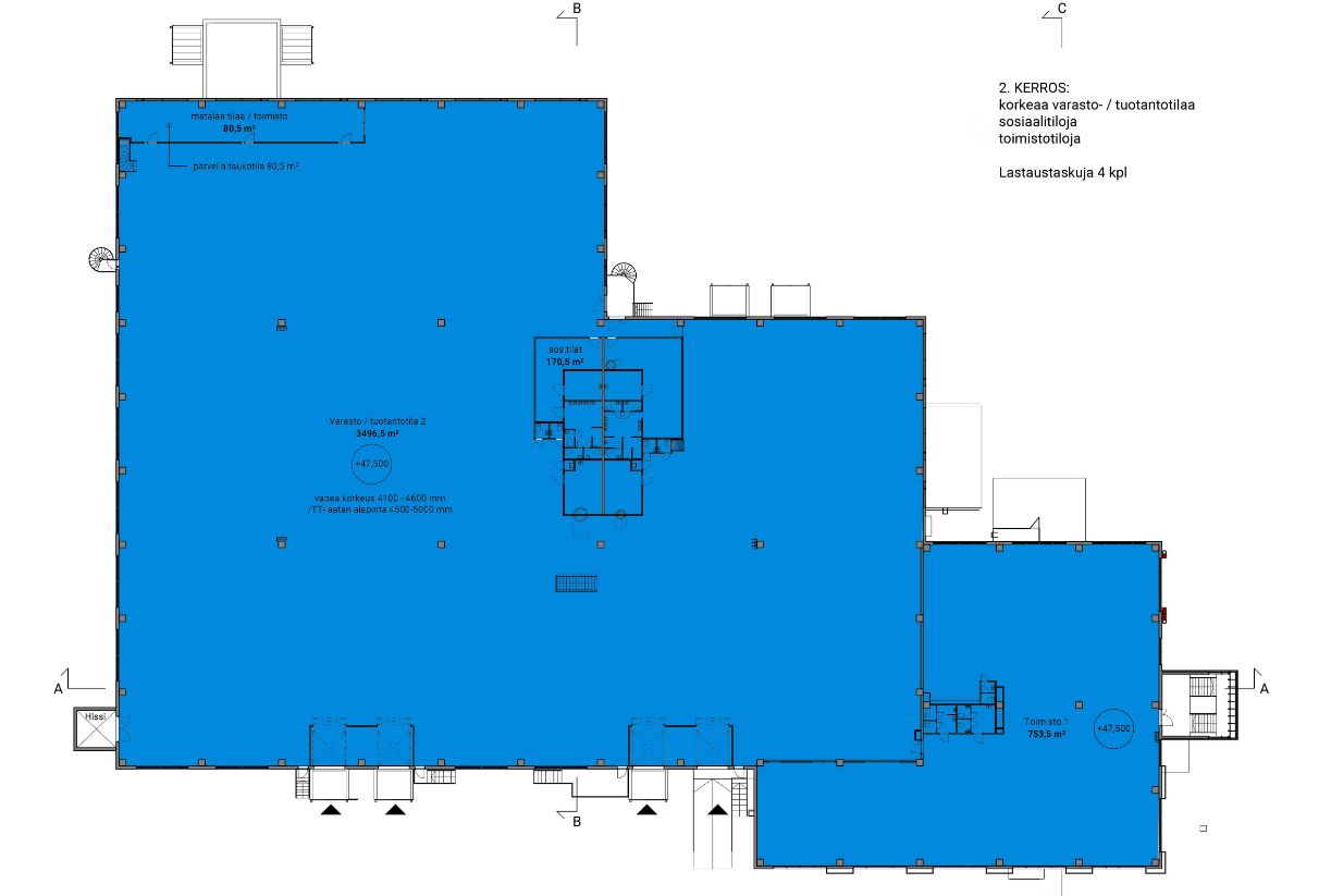
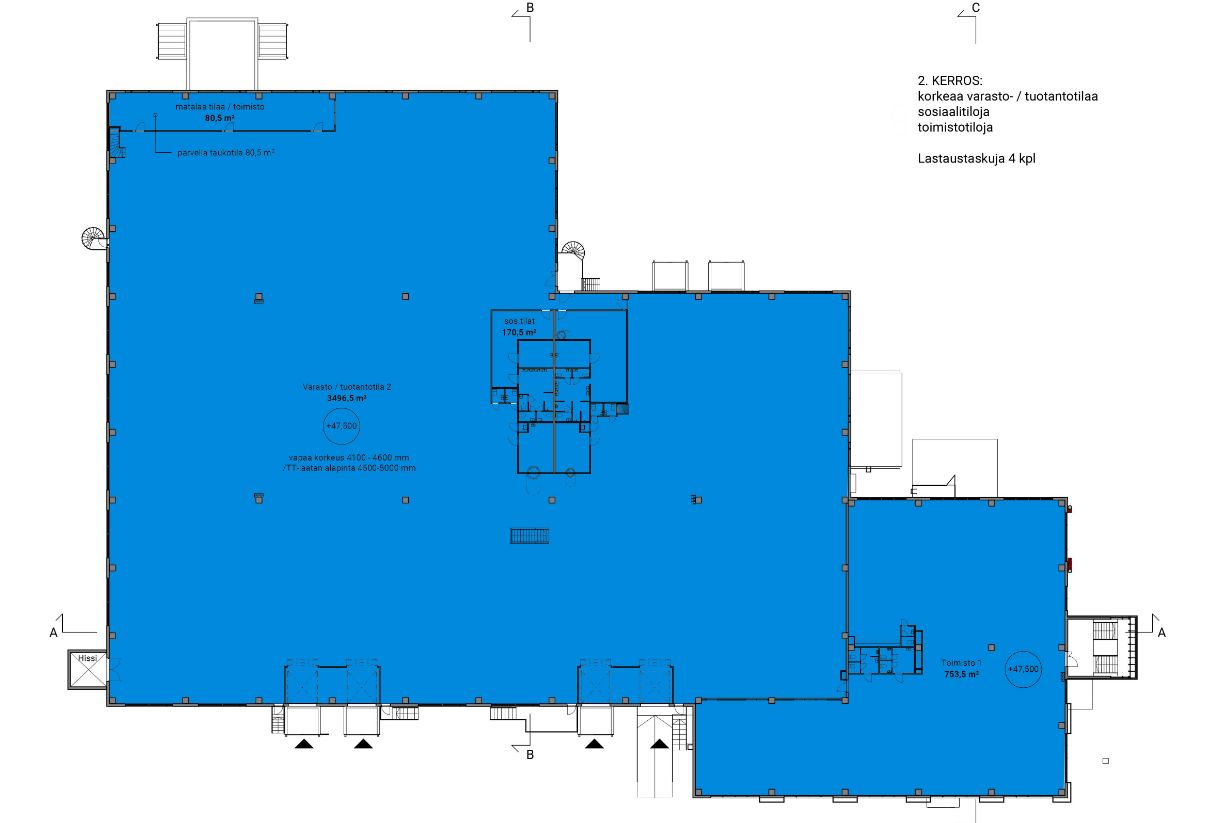
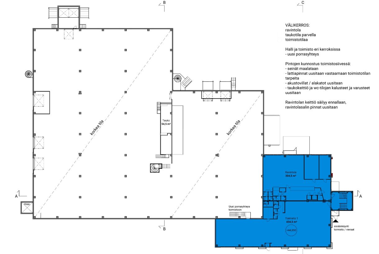
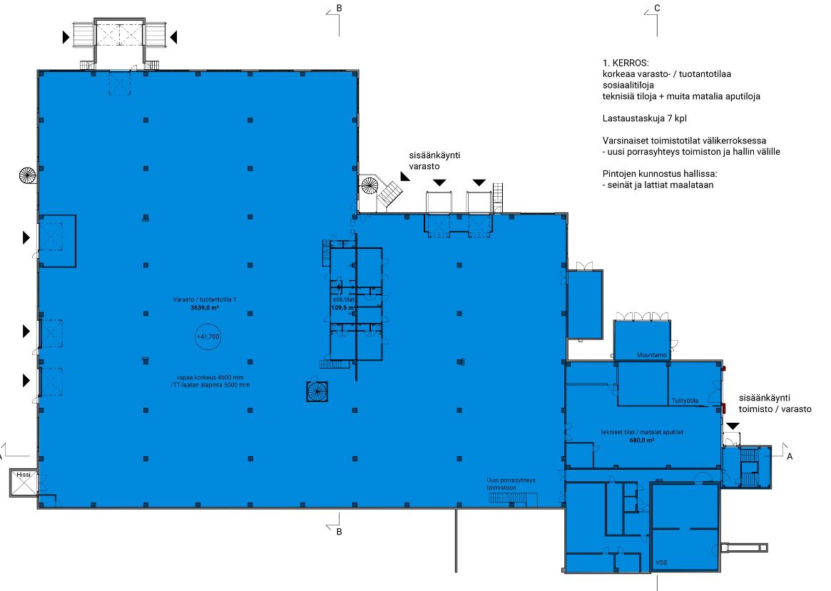
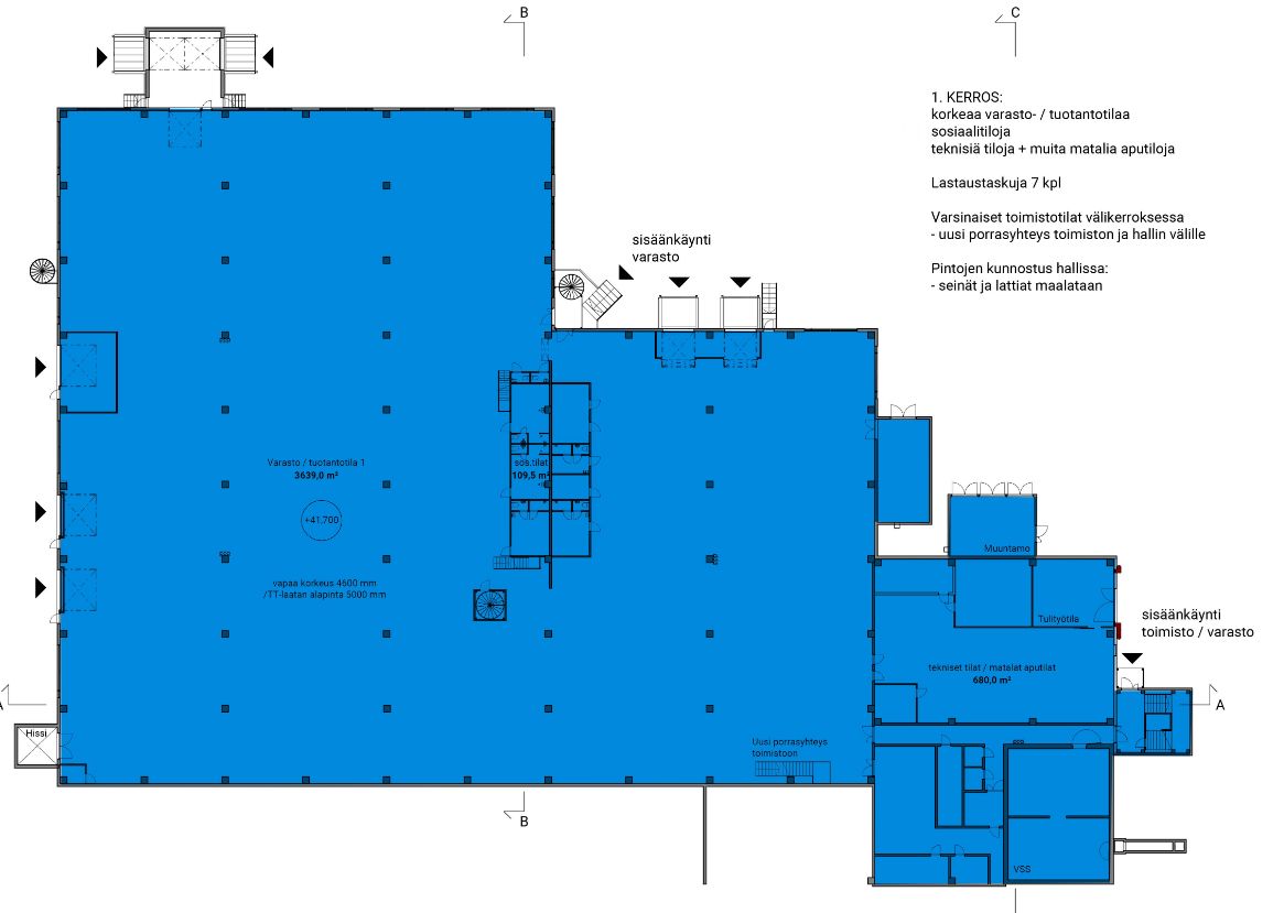
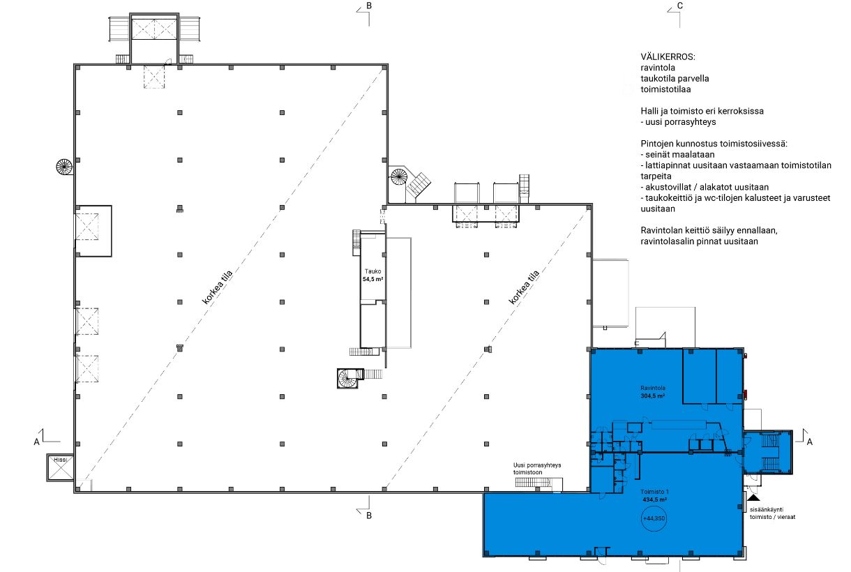
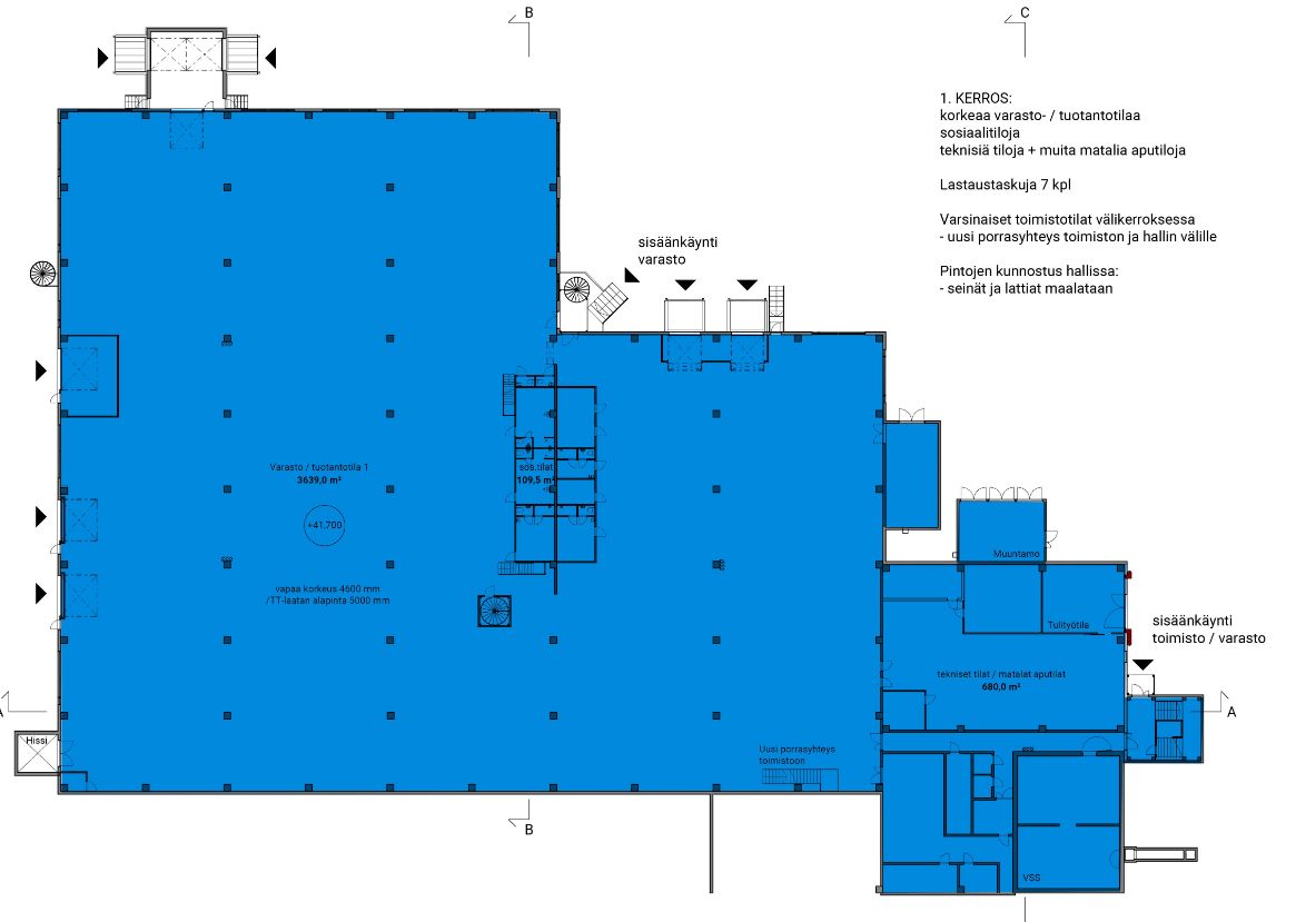
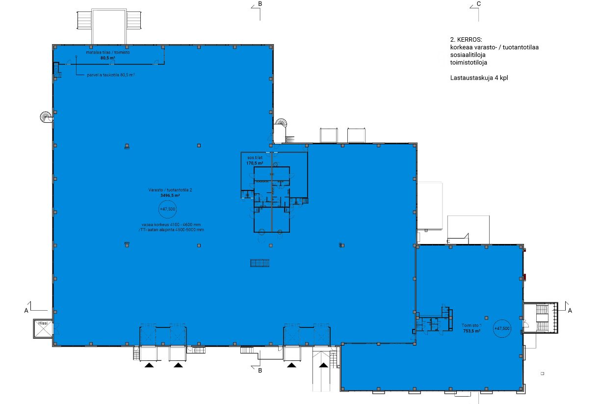
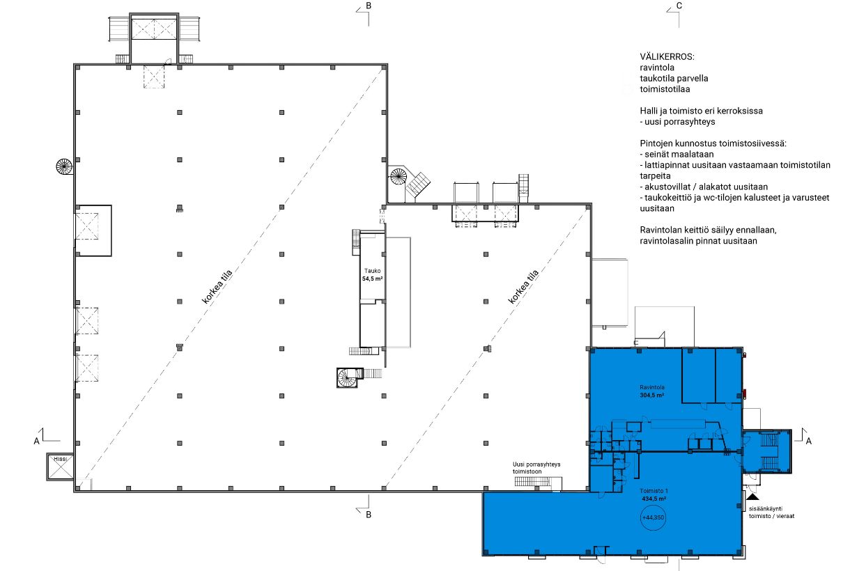
Vuokrattavissa koko kiinteistö varasto/tuotantotilaa, jossa lastausramppi, lastaustasku/nosto-ovi 11, lattiakantavuus 2 000 kg/m2. Varasto- /tuotantotilaa 7 100 m2, toimisto 790 m2 sekä sosiaali- ja muuta tilaa, joista ravintolatilat 304,5 m2. Tiloja voidaan myös jakaa 2 - 3 käyttäjälle.
Varastossa sisäänajomahdollisuus pääsisäänkäynnillä ja suuremman tavaraliikenteen tarpeelle katettu lastauslaituri.
Koskelo Trade Park on noin 26 000 m2 toimitilakokonaisuus, jonka tilat on suunniteltu joustamaan asiakkaan tarpeiden mukaan. Kaava mahdollistaa erilaisten toimintojen sijoittumisen ja yhdistämisen tontilla. Kokonaisuus käsittää varasto-, toimisto-, myymälä-ja näyttelytilaa. Toimitiloja pihatasossa nosto-ovin tai lastauslaituritasolla. Varaston korkeus on noin 8 metriä.
Lisätietoja 020 7290 710 ja lisää kohteita premises.fi
Kohteella ei ole lain edellyttämää energiatodistusta tai energialuokka ei tiedossa.Kerros: 1-2
CRE PREMISES
Puh. Näytä puhelinnumero 020 7290 710
Vantaankoskentie 14
01670 VANTAA
