Vuokrataan toimistotilat - Helsinki
Kalevankatu 20, Keskusta, 00100 Helsinki #10765821
Toimistotilaa Helsingin keskustasta
Osoite
Kalevankatu 20, 00100 Helsinki
Tilatyyppi
Toimistotilaa
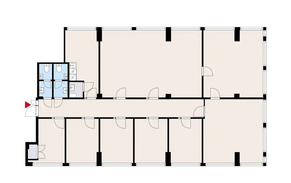
227 m2
Muuta
Vuokrattavana 227,5 m² toimistotila erinomaisella sijainnilla keskustassa.
Tilasta 216m2 on toimistotilaa ja 11,5m2 aulatilaa.
Kiinteistö sijaitsee keskeisellä paikalla, aivan Kampin monipuolisten palveluiden sekä julkisen liikenteen yhteyksien äärellä.
Kampin alueen bussiterminaali ja metroasemat mahdollistavat erinomaiset yhteydet, mikä lisää tilan saavutettavuutta sekä henkilöstölle että asiakkaille.
Lisäksi tilaan on mahdollisuus vuokrata autopaikkoja joko kiinteistön pihalta tai hallista, mikä helpottaa saapumista omalla autolla.
Tervetuloa tutustumaan, varaathan välittäjältä oman esittelyaikasi. Voit kysyä meiltä myös muita sopivia vaihtoehtoja, kauttamme löydät juuri Teidän tarpeisiinne sopivat tilat.
Palvelumme on tilanhakijalle veloitukseton!
Tilasta 216m2 on toimistotilaa ja 11,5m2 aulatilaa.
Kiinteistö sijaitsee keskeisellä paikalla, aivan Kampin monipuolisten palveluiden sekä julkisen liikenteen yhteyksien äärellä.
Kampin alueen bussiterminaali ja metroasemat mahdollistavat erinomaiset yhteydet, mikä lisää tilan saavutettavuutta sekä henkilöstölle että asiakkaille.
Lisäksi tilaan on mahdollisuus vuokrata autopaikkoja joko kiinteistön pihalta tai hallista, mikä helpottaa saapumista omalla autolla.
Tervetuloa tutustumaan, varaathan välittäjältä oman esittelyaikasi. Voit kysyä meiltä myös muita sopivia vaihtoehtoja, kauttamme löydät juuri Teidän tarpeisiinne sopivat tilat.
Palvelumme on tilanhakijalle veloitukseton!
Vapautuu
Kysy
Kerros
4
Ota yhteyttä
Tuloskiinteistöt Oy
Rikhardinkatu 2 B 5, 00130 Helsinki
Näytä puhelinnumero
(09) 6841 620
Otto Ahtola
Commercial Real Estate Advisor
Näytä puhelinnumero
+358 40 042 2830
Jorma Ryynänen
Commercial Real Estate Advisor LKV, LVV
Näytä puhelinnumero
+358 40 708 4064
Pyydä lisätietoa
