Vuokrataan toimistotilat - Tampere
Hatanpään valtatie 18, 33100 Tampere #10765731
Valoisa ja hyväkuntoinen 2074 m² toimisto Tampereen Ratinasta.
Osoite
Hatanpään valtatie 18, 33100 Tampere
Tilatyyppi
Toimistotilaa
2074 m2
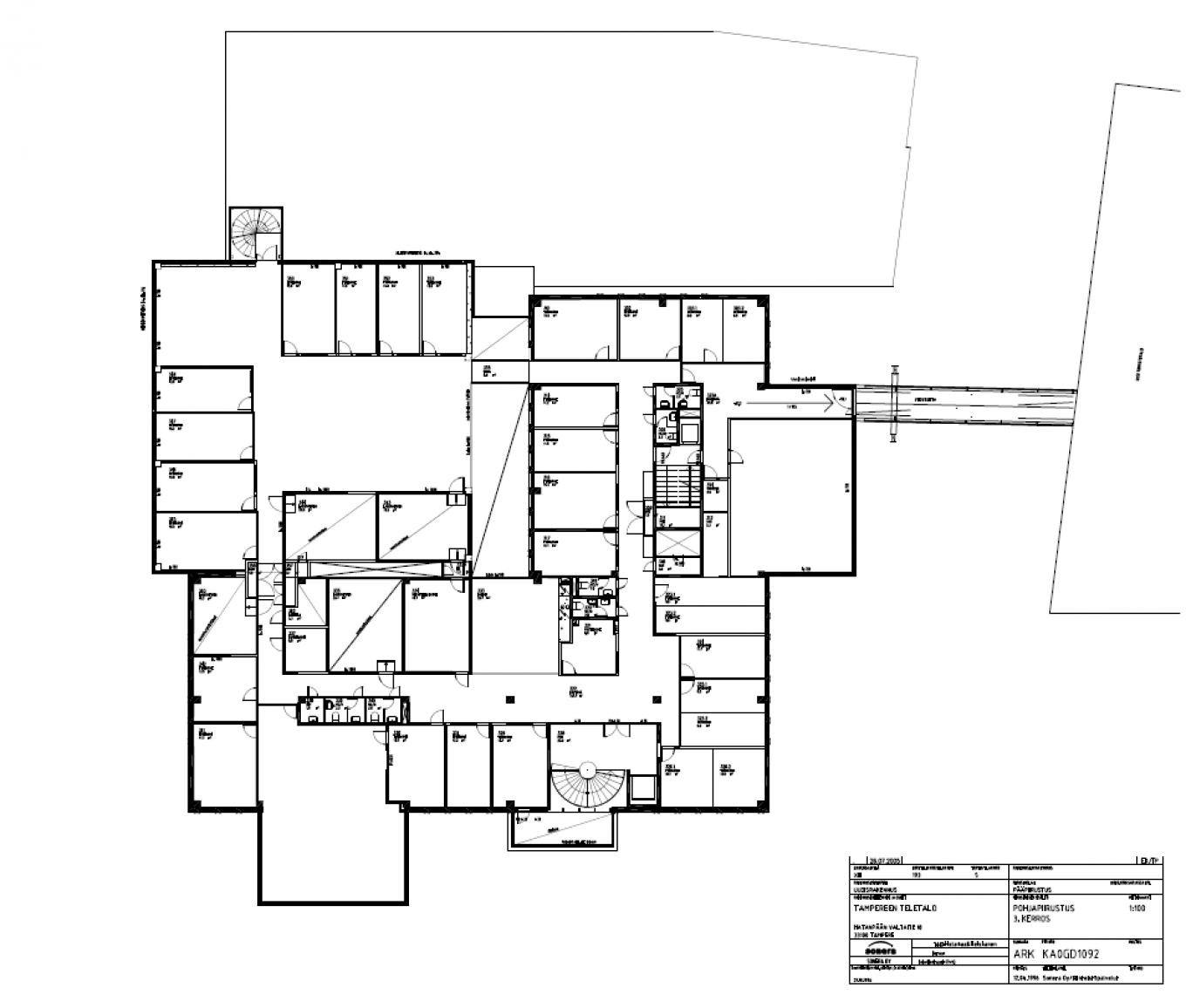
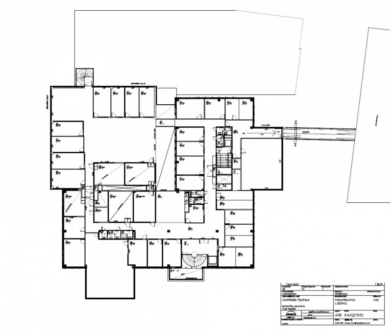
Pohjapiirros
Kiinteistö
Kahden kerroksen loistotasoinen toimisto, jonka suuret ikkunat tekevät tilasta elävän ja valoisan
Hatanpään valtatie 18 on aktiivisesti kunnossa pidetty toimistokiinteistö, jonka vuokrataso on Tampereen keskustaa selvästi maltillisempi.
Rakennuksen läpi kulkee valoisa atrium, joka luo taloon viihtyisän ja avaran yleistunnelman. Toimistotilat sijoittuvat kerroksiin atriumin ympärille.
Vuokrattavat toimitilat ovat avaria ja siistejä, ja kaikissa tiloissa on jäähdytys. Muutostyöt tulevan käyttäjän yksilöllisten tarpeiden täyttämiseksi ovat mahdollisia.
Vastuullisuus on tärkeä osa jokapäiväistä toimintaa. Hatanpäässä halutaan tarjota vuokralaisille toimitiloja, jotka tukevat heidän vastuullisuustavoitteitaan ja vastuullisia toimintatapojaan. Kiinteistöllä on tuulisähkösopimus, jolla halutaan edistää uusiutuvan energian tuotantoa.
Hatanpään valtatie 18 -toimistokiinteistö sijaitsee vireällä business-alueella, hyvin näkyvällä paikalla Tampereen keskustan tuntumassa. Etelästä Tampereen keskustaan suuntaava liikenne kulkee talon edestä.
Kauppakeskus Ratinaa vastapäätä sijaitseva kiinteistö on hyväkuntoinen toimistokohde, josta kuljet kävellen linja-autoasemalle ja ratikkapysäkille 4 minuutissa, sekä rautatieasemalle alle 10 minuutissa. Koskikeskuksenkin monipuoliset palvelut sijaitsevat alle viiden minuutin kävelymatkan päässä.
Hatanpään valtatie 18 on aktiivisesti kunnossa pidetty toimistokiinteistö, jonka vuokrataso on Tampereen keskustaa selvästi maltillisempi.
Rakennuksen läpi kulkee valoisa atrium, joka luo taloon viihtyisän ja avaran yleistunnelman. Toimistotilat sijoittuvat kerroksiin atriumin ympärille.
Vuokrattavat toimitilat ovat avaria ja siistejä, ja kaikissa tiloissa on jäähdytys. Muutostyöt tulevan käyttäjän yksilöllisten tarpeiden täyttämiseksi ovat mahdollisia.
Vastuullisuus on tärkeä osa jokapäiväistä toimintaa. Hatanpäässä halutaan tarjota vuokralaisille toimitiloja, jotka tukevat heidän vastuullisuustavoitteitaan ja vastuullisia toimintatapojaan. Kiinteistöllä on tuulisähkösopimus, jolla halutaan edistää uusiutuvan energian tuotantoa.
Hatanpään valtatie 18 -toimistokiinteistö sijaitsee vireällä business-alueella, hyvin näkyvällä paikalla Tampereen keskustan tuntumassa. Etelästä Tampereen keskustaan suuntaava liikenne kulkee talon edestä.
Kauppakeskus Ratinaa vastapäätä sijaitseva kiinteistö on hyväkuntoinen toimistokohde, josta kuljet kävellen linja-autoasemalle ja ratikkapysäkille 4 minuutissa, sekä rautatieasemalle alle 10 minuutissa. Koskikeskuksenkin monipuoliset palvelut sijaitsevat alle viiden minuutin kävelymatkan päässä.
Vapautuu
Heti
Kerros
2
Energiatehokkuusluokka
Ei lain edellyttämää energiatodistusta
Näkyvällä paikalla
Ota yhteyttä
ScanReal Oy LKV
Opus Business Park
Hitsaajankatu 24
00810 Helsinki
info@scanreal.fi
Puh:
Näytä puhelinnumero
020 730 8830
Sopivat toimitilat yhdellä otolla!
Kartoitamme toimitilatarpeesi ja etsimme yrityksellesi parhaiten sopivat vapaat toimitilat. Koska vuokranantajat maksavat palvelumme, on tämä yrityksellesi veloituksetonta.
OTA YHTEYTTÄ - SOVI NÄYTTÖ!
Kaikki kohteemme eivät ole netissä, kerro tilatarpeesi niin kartoitamme vaihtoehdot.
Palvelumme on tilanhakijalle ilmainen
Pyydä lisätietoa
