Vuokrataan liiketilat - Tampere
Tampereen stadionin liiketila, Kalevan Puistotie 24, Tammela, 33500 Tampere #10765728
Liiketila vuokrattavana Tampereen stadionkorttelissa!
Osoite
Kalevan Puistotie 24, 33500 Tampere
Tilatyyppi
Liiketilaa
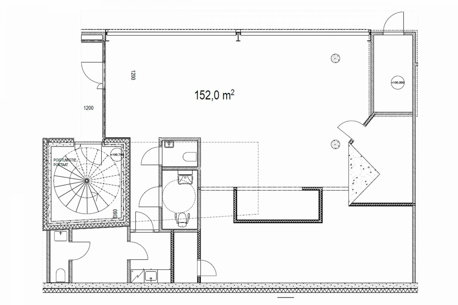
150 m2
Kiinteistö
Tammelan stadionin yhteyteen loppuvuonna 2023 valmistuneessa kauppakeskuksessa vuokrattavana n. 150 neliön liiketila. Liikekeskuksessa kaksi ravintolaa, Alko ja K-Supermarket. Stadionille kaavaillaan n. 200 tapahtumaa vuosittain, ota osasi asiakasvirroista. Vuokrattava liiketila sopii esimerkiksi pizzeriaksi, parturi-kampaamoksi tai kauneushoitolaksi. Vuokra 16 €/m2 + 5,16 €/m2 (ylläpitovuokra). Ota yhteyttä ja kysy lisää YIT Asuntomyynnistä!
Sijainti
Stadionkortteli sijoittuu suositun Tammelan ja historiallisesti arvokkaan Kalevan rajalle: Kalevan puistotien, Tammelankadun, Salhojankadun ja Ilmarinkadun rajaamaan kortteliin.
Kulkuyhteydet
Hyvät liikenneyhteydet, mm. ratikkapysäkki vieressä ja rautatieasemalle n. kilometrin matka.
Vapautuu
11/2023
Ota yhteyttä
YIT Rakennus Oy
Hatanpään valtatie 11, 1. krs, 33100 Tampere
Näytä puhelinnumero
020 433
4635 *)
Puhelusta veloitetaan liittymäsopimuksessa määritellyn paikallisverkko- tai matkapuhelinmaksun mukainen hinta.
https://www.yit.fi/toimitilahakuPyydä lisätietoa
