Vuokrataan toimistotilat - Espoo
Sinikalliontie 7, Sinimäki, 02630 Espoo #10765033
Vuokrataan siistiä toimistotilaa.
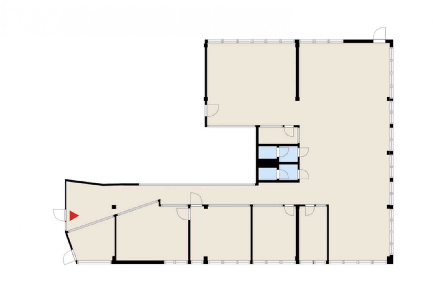
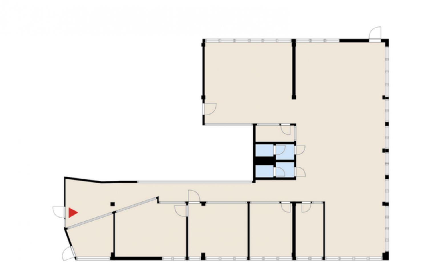
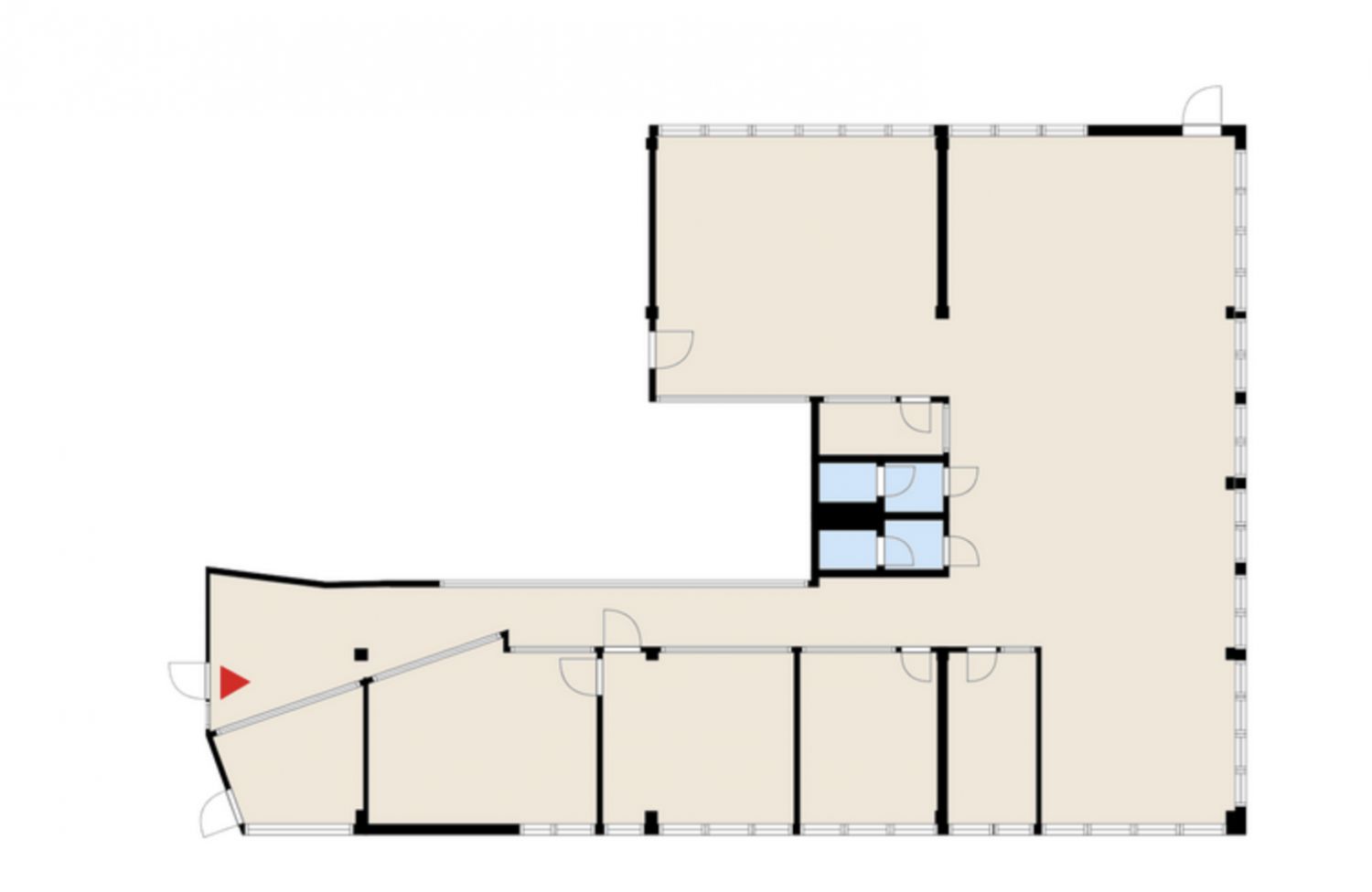
Siistit huoneistot ovat yhdistelmä huoneita ja avotilaa. Ensimmäisestä kerroksesta löytyy aula, neuvottelu- ja kokoustilat sekä keittiötilat.
Kiinteistö sijaitsee hyvällä sijainnilla Turunväylän varrella, Nihtisillan solmukohdassa ja vain noin 10 minuutin ajomatkan päässä kauppakeskus Sellosta.
Lisätietoja 020 7290 710, lisää kohteita www.premises.fi
Kohteella ei ole lain edellyttämää energiatodistusta tai energialuokka ei tiedossa.Kerros: 5
Osoite
Sinikalliontie 7, 02630 Espoo
Tilatyyppi
Toimistotilaa
295 m2
Ota yhteyttä
CRE PREMISES
Puh. Näytä puhelinnumero 020 7290 710
Vantaankoskentie 14
01670 VANTAA
Pyydä lisätietoa
