Vuokrataan toimistotilat - Espoo
Vänrikinkuja 2, Leppävaara, 02600 Espoo #10764803
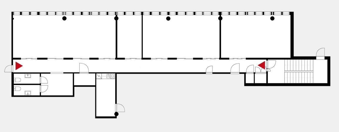
Vuokrataan toisen kerroksen avara, siisti ja moderni toimistotila Apollo Business Centerissä. Kiinteistössä palvelee aula sekä remontoitu kahvila. Kiinteistö sijaitsee Espoon Perkkaalla, vain noin viiden minuutin ajomatkan päässä kauppakeskus Sellosta.
Business Centerissä useita av-laittein varustettuja neuvottelu-, koulutus ja kokoustiloja, jotka ovat maksuttomasti vuokralaisten käytettävissä. Tilojen varaus tapahtuu intranetin tai aulapalvelun välityksellä.
Ystävällinen aulapalvelu vastaanottaa vieraat ja lisäpalvelusta hoitaa myös yrityksen postipalvelut. Suositussa lounasravintolassa onnistuu ruokailut ja ylellinen edustussauna tarjoaa puitteet asiakastilaisuuksiin. Pysäköintipaikkoja on runsaasti.
Lisätietoja 020 7290 710 ja lisää kohteita premises.fi
Energialuokka C 2018Kerros: 2
CRE PREMISES
Puh. Näytä puhelinnumero 020 7290 710
Vantaankoskentie 14
01670 VANTAA
