Vuokrataan liiketilat - Helsinki
Kotisaarenkatu 3, Arabianranta, 00560 Helsinki #10764516
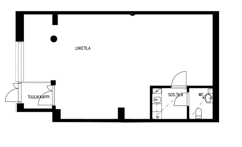
Maaliskuun alussa 2026 vapautuvaa liiketilaa Arabianranta 76,5 m2 asuintalon kivijalassa. Ei sovellu kahvila/ravintolatoimintaan.
kysy lisää mika.tilli@rhg.fi
Osoite
Kotisaarenkatu 3, 00560 Helsinki
Tilatyyppi
Liiketilaa
76,5 m2
Vapautuu
Kysy
Huoneiden lukumäärä
1
Energiatehokkuusluokka
Ei lain edellyttämää energiatodistusta
Ota yhteyttä
RHG Real Estate
Hämeenkatu 2 B20, 20500 Turku
Mika Tilli
Välittäjä, LKV
Näytä puhelinnumero
0407013005
Pyydä lisätietoa
