Myydään tuotantotilat, varastotilat - Lieto
Luumäentie 6, Tuulissuo, 21420 Lieto #10764291
Juuri valmistunut TUOTANTO- ja varastotila hyvällä sijainnilla Tuulissuon yritysalueella. Turun keskustaan on matkaa noin 10 kilometriä. Turun keskustaan ajat Luumäentieltä vain 15 minuutissa. Liikkuminen on helppoa Helsingin moottoritien läheisyyden ansiosta.
Avannin alue on Turun ympäristön vetovoimaisempia yritysalueita, jonne on viime vuosina rakennettu valtakunnallisille toimijoille isoja toimitilakokonaisuuksia. Alue kehittyy nopeiten Turun alueen yritysalueista, joka näkyy runsaana toimitilarakentamisena.
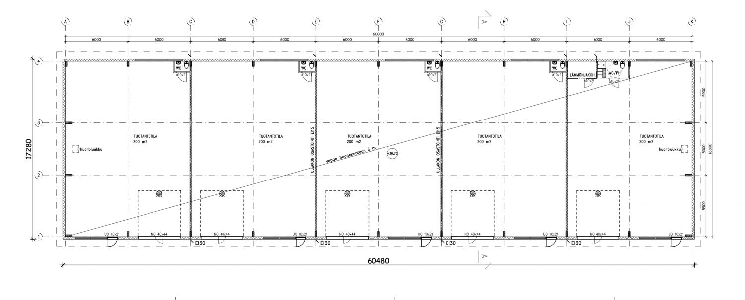
Laadukkaasti rakennettu toimitilakiinteistö on pinta-alaltaan 1 000 m2. Halli on mahdollista jakaa 200 m2 huoneistoihin. Jäljellä on vielä neljä huoneistoa. Kahteen huoneistoista on rakennettu valmiiksi toimisto keittiöllä.
Jokaisessa tilassa oma ilmanvaihtokone lämmön talteenotolla. Nämä tilat ovat siis suunniteltu myös tuotanto- ja liikekäyttöön. Rakennuksen energialuokka on paras mahdollinen A. Hallin seinien eristevahvuus on 240 mm ja halli on suunniteltu täyslämpimäksi.
Rakennuksessa on maalämpö ja oma tontti. Tilan vapaa korkeus on 5 metriä ja oven korkeus on 4,4 metriä. Tiloissa on lattiakaivot öljyn- ja hiekan erottimella. Lattiat pinnoitetaan epox-maalilla.
Huoneistoihin on mahdollista jättää noin 50 % taloyhtiölaina, jonka maksuaika on 9 vuotta ja 5 kuukautta.
Pyydä kohteen esite.
Toimitilavälitys RHG Oy
Juho Viljanen
040 741 7522
juho.viljanen@rhg.fi
Uudiskohde
RHG Real Estate
Hämeenkatu 2 B20, 20500 Turku
Näytä puhelinnumero
020 734 4020
Juho Viljanen
LKV
Näytä puhelinnumero
040 741 7522
