Vuokrataan - Helsinki
Kasarmikatu 44, Kaartinkaupunki, 00130 Helsinki #10763998
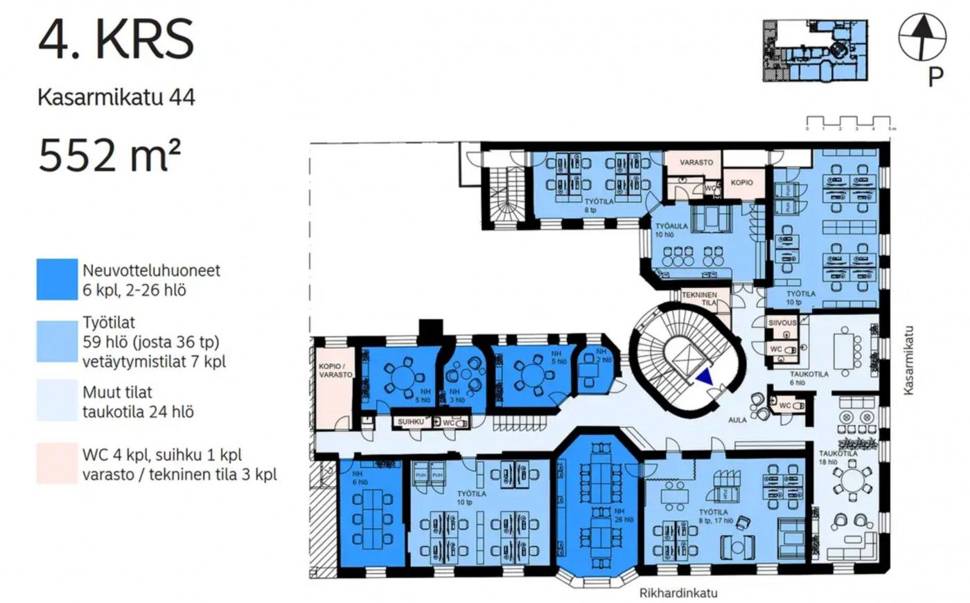
Esplanadin puiston viereltä löytyy nyt vuokrattavaksi todellinen helmi – neljännen kerroksen avara ja monipuolinen 552 m² toimisto, jossa vain mielikuvitus asettaa rajat. Tilaa voidaan räätälöidä tarpeiden mukaan joko perinteiseksi huonetoimistoksi tai moderniksi monitoimitilaksi, joka inspiroi luovuuteen ja yhteistyöhön.
Toimiston tiloista löytyy omat suihku- ja wc-tilat, joten vaikka työpäivä venyisi pitkään, pääset silti freesaantumaan ilman ulkoilmaa tai mutkia. Sijainti on yksinkertaisesti kadehdittava – Helsingin ydinkeskustassa, vain viiden minuutin leppoisan kävelyn päässä Kauppatorilta ja meren tuulahduksista.
Tämä toimisto on paitsi tila, myös osa tunnelmallista Esplanadin kulttuurihistoriaa ja sykkivää kaupunkielämää. Nappaa tämä ainutlaatuinen mahdollisuus ja tuo tiimisi sinne, missä kaikki tapahtuu!
jouko.raitanen@rhg.fi / 0504695444
RHG Real Estate
Hämeenkatu 2 B20, 20500 Turku
Näytä puhelinnumero
020 734 4020
Jouko Raitanen
Näytä puhelinnumero
050 469 5444
