Vuokrataan liiketilat - Helsinki
Paahtajanaukio 4, Vuosaari, 00980 Helsinki #10763991
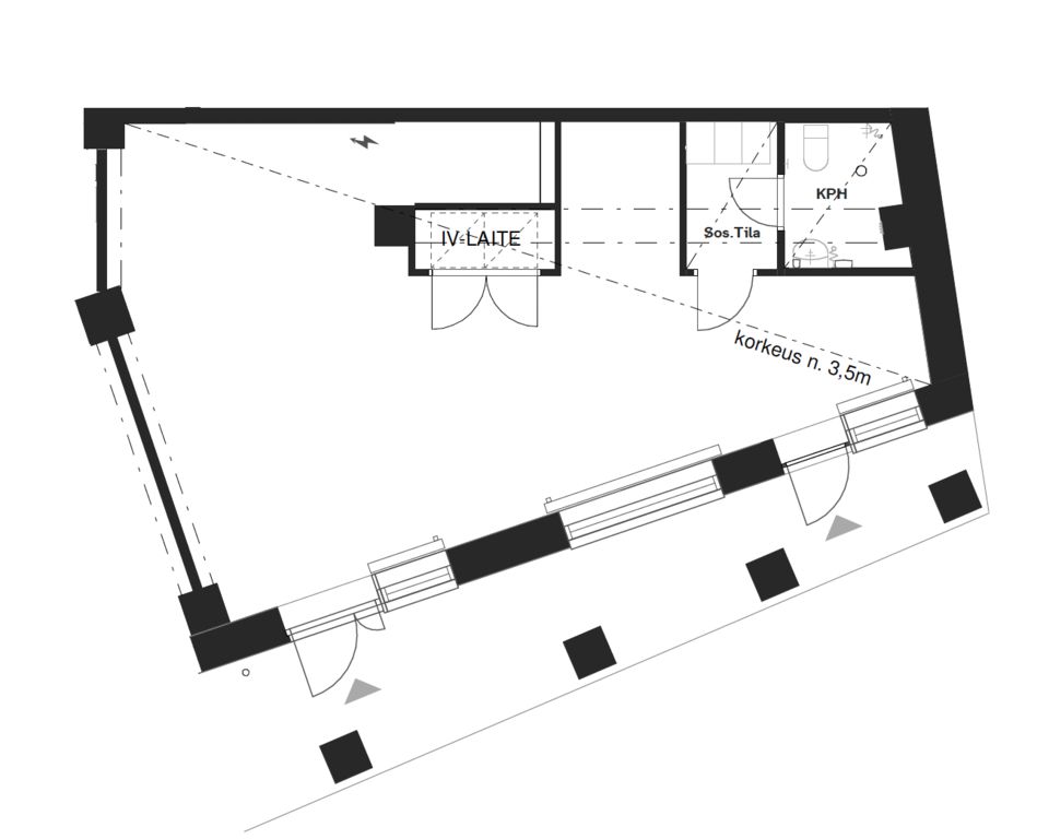
Uutta liiketilaa Vuosaaren Aurinkolahdessa.
Tämä 61,5 m² liiketila sijaitsee kiinteistön katutasossa. Tilaan kuuluu oma wc. Ei sovellu ravintolatoimintaan.
Paahtajanaukio 4 eli Sitadelli 5 on uusi asuintalo, joka sijaitsee Helsingin Vuosaaressa, Aurinkolahdessa. Talon kivijalassa on erikokoisia liiketiloja. Kiinteistö valmistui kesällä 2025. Kiinteistöllä on hyvä sijainti lähellä Vuosaaren metroasemaa ja kauppakeskus Columbusta.
Kysy lisää numerosta 044 723 4700 tai info@bref.fi. Palvelumme on tilanhakijoille ilmainen.
Bureau Real Estate Finland Oy
Lars Sonckin kaari 16, 02600 Espoo
Näytä puhelinnumero
0447234700
Bureau Real Estate Finland Oy
https://www.bref.fi