Vuokrataan liiketilat - Helsinki
Siltasaarenkatu 16, Hakaniemi, 00530 Helsinki #10763938
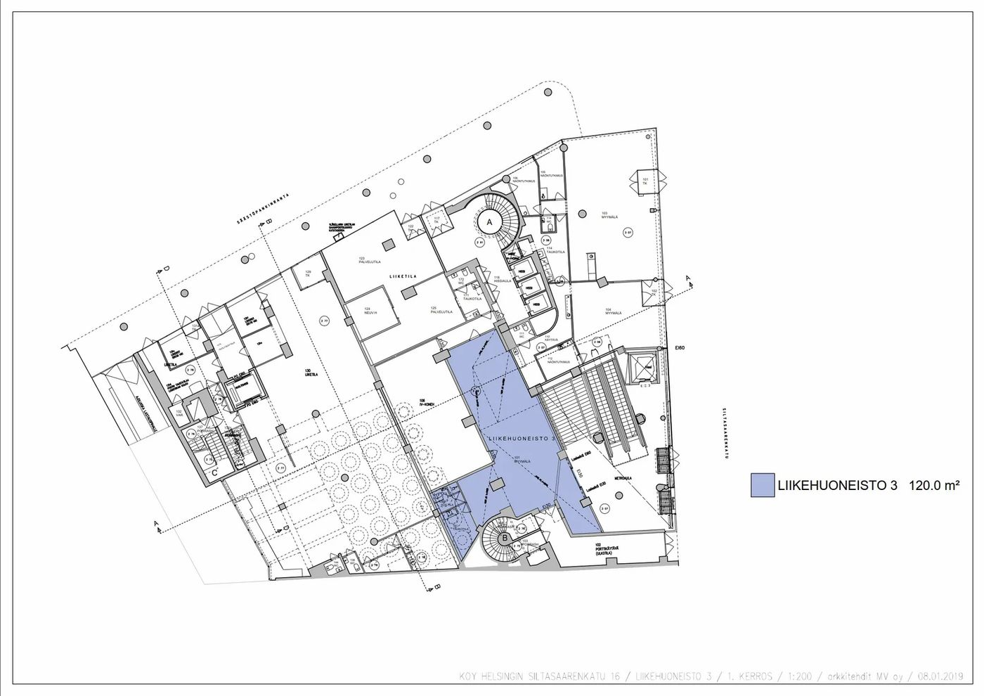
Erinomaisen sijainnin liiketila metrosisäänkäynnin katutasossa tarjoaa mahdollisuuden näkyvälle toiminnalle. Tänne on erittäin helppo saapua niin asiakkaiden kuin työntekijöiden. Tila ei sovellu ravintolaksi eikä kahvilaksi.
Helsingin Siltasaarenkatu 16 on siisti toimistokohde keskeisellä paikalla Hakaniemessä, torin laidalla. Kiinteistön modernisoidut tilat ovat muokattavissa vuokralaisen yksilöllisten tarpeiden mukaan. Kivijalasta löytyy liiketiloja, ja loput tilat ovat toimistoja. Hakaniemeen on loistavat kulkuyhteydet, ja metrollekin pääsee suoraan sisäkautta.
Croisette on uusi ja innovatiivinen toimitilojen välitysyritys Suomessa. Meillä on vahva halu auttaa teitä löytämään paras toimitilaratkaisu mahdollisimman vaivattomasti.
Huomaathan, että kaikki vapaat ja vapautuvat tilat ovat kauttamme saatavilla. Osa tiloista on hiljaisessa markkinoinnissa, mutta ottamalla meihin yhteyttä saat nekin tietoosi.
Palvelumme on tilanhakijoille täysin maksutonta.
Hissi
Croisette Real Estate Partner
Erottajankatu 5 A 6, 00130 Helsinki
Näytä puhelinnumero
+358 400 585 857
Croisette Vuokraus
Näytä puhelinnumero
+358400585857
