Myydään toimistotilat, tuotantotilat, varastotilat - Lahti
Tyynentie 12, 15230 Lahti #10763848
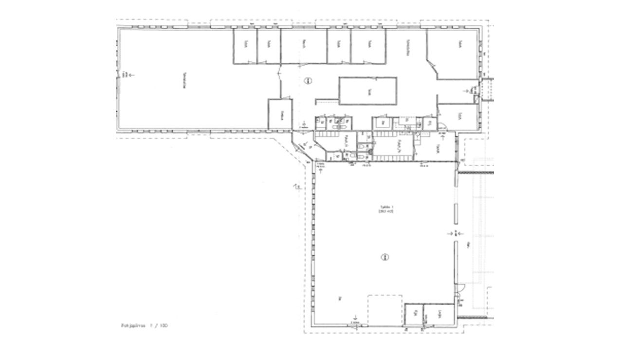
Myydään vuoden 2024 alusta täyteen vuokrattu Lahden Kytölän alueella oleva tuotanto/varasto/näyttelytilaksi soveltuva osuus kiinteistöstä. Kiinteistö on jaettu kahden omistajan kanssa hallinjako sopimuksella, josta myytävä osa on 40 %(832m2) kokonaispinta-alasta (2080m2). Myytävä kiinteistö on oma erillinen rakennus. Rakennusten välissä on tälle kiinteistöön kuuluva katos.
Kiinteistöllä on oma 8919 m2 tontti, joka jakaantuu kahden omistajan kesken.
Kiinteistö on puurunkoinen tiiliverhoiltu, perustus on teräsbetoni. Kiinteistö on rakennettu 1991, tiilikatto uusittu 2018, jäähdytys uusittu 2019. Putkisto uudistettu 2024
Varastohallin korkeus 3,5 m2 ja toimistotilojen korkeus 2,5m
Suuri piha-alue mahdollistaa hyvät pysäköintitilat. Piha-alue on kokonaisuudessaan aidattu
Lisätiedot ja esittely kohteesta 0400891057/020 7290710Kerros: 1
Liitetiedostot
CRE PREMISES
Puh. Näytä puhelinnumero 020 7290 710
Vantaankoskentie 14
01670 VANTAA
