Vuokrataan toimistotilat - Helsinki
Kaisaniemenkatu 6, Keskusta, 00100 Helsinki #10763780
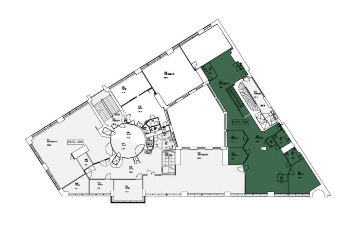
Vuokrattavana toimistotilaa Helsingin Kaisaniemessä.
Tämä 188m2 toimistotila sijaitsee kiinteistön 5. kerroksessa. Toimistossa on avotilaa, neuvotteluhuoneita, omat wc-tilat ja keittiöpiste.
Kaisaniemenkatu 6 sijaitsee helposti saavutettavissa olevalla paikalla Kaisaniemenkadun ja Vuorimiehenkadun kulmassa. Rakennus on valmistunut vuona 1930 ja sen on suunnittelut Oiva Kallio. Kaikki keskustan ja Kaisaniemen alueen palvelut lähellä.
Kysy lisää numerosta 044 723 4700 tai info@bref.fi. Palvelumme on tilanhakijoille ilmainen.
Hissi
Bureau Real Estate Finland Oy
Lars Sonckin kaari 16, 02600 Espoo
Näytä puhelinnumero
0447234700
Bureau Real Estate Finland Oy
https://www.bref.fi