Vuokrataan toimistotilat - Helsinki
Lapinlahdenkatu 1, Kamppi, 00180 Helsinki #10763729
Toimistotilaa arvokiinteistöstä Kampista
Osoite
Lapinlahdenkatu 1, 00180 Helsinki
Tilatyyppi
Toimistotilaa
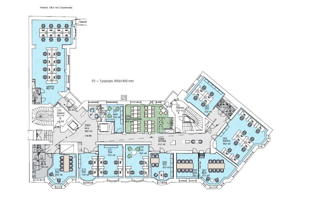
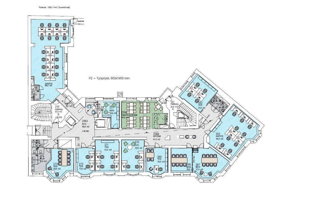
539 m2
Muuta
Vuokrataan 539m2 toimistotila tyylikkäästä pääkonttoritasoisesta kiinteistöstä. Jugendrakennuksessa on korkeat huoneet, avotoimistotilaa ja moderni jäähdytys. Kuvat ovat esimerkkikuvia kiinteistön asiakkaille toteutetuista ratkaisuista.
Kiinteistö sijaitsee hyvien liikenneyhteyksien päässä. Kävelymatkan päässä ovat Kauppakeskus Kampin palvelut sekä linja-auto- ja raitiovaunupysäkit. Rakennuksessa on myös hyvät palvelut, kiinteistössä toimii kuntosali sekä sauna.
Tervetuloa tutustumaan! Mikäli tämä kohde ei vastaa toiveitanne, ota yhteyttä, etsimme juuri teille sopivan tai räätälöidyn toimitilan. Palvelumme on vuokralaisille veloitukseton.
Kiinteistö sijaitsee hyvien liikenneyhteyksien päässä. Kävelymatkan päässä ovat Kauppakeskus Kampin palvelut sekä linja-auto- ja raitiovaunupysäkit. Rakennuksessa on myös hyvät palvelut, kiinteistössä toimii kuntosali sekä sauna.
Tervetuloa tutustumaan! Mikäli tämä kohde ei vastaa toiveitanne, ota yhteyttä, etsimme juuri teille sopivan tai räätälöidyn toimitilan. Palvelumme on vuokralaisille veloitukseton.
Vapautuu
Kysy
Kerros
2
Ota yhteyttä
Tuloskiinteistöt Oy
Rikhardinkatu 2 B 5, 00130 Helsinki
Näytä puhelinnumero
(09) 6841 620
Jorma Ryynänen
Commercial Real Estate Advisor LKV, LVV
Näytä puhelinnumero
+358 40 708 4064
Nina Meyke
Commercial Real Estate Advisor
Näytä puhelinnumero
+358 50 466 1519
Pyydä lisätietoa
