Vuokrataan tuotantotilat, varastotilat - Orimattila
Kaitilantie 30, 16300 Orimattila #10763675
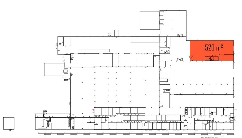
Vuokrataan tuotanto- tai varastotila 520 m2. Tilaan johtaa 3.6 m korkea ja 4.17 m leveä nosto-ovi. Tilan korkeus on 5.6 metriä kattopalkkiin. Laajassa hallissa on erillinen 50 m2 kokoinen varastotila ja lisäksi pieni toimisto, keittiö ja wc-tila.
Kaitilan vaatetehtaana tunnettu kiinteistö on rakennettu useassa vaiheessa 1960- ja 1970-luvuilla. Teollisuuskiinteistön kokonaispinta-ala on 10 000 m2 ja siinä on sprinklerijärjestelmä. Piha-alue on asfaltoitu.
Lisätiedot 020 7290 710. Lisää kohteita www.premises.fi
Kohteella ei ole lain edellyttämää energiatodistusta tai energialuokka ei tiedossa.Kerros: katutaso
CRE PREMISES
Puh. Näytä puhelinnumero 020 7290 710
Vantaankoskentie 14
01670 VANTAA
