Vuokrataan toimistotilat - Vantaa
Vantaankoskentie 14, Vantaankoski, 01670 Vantaa #10763594
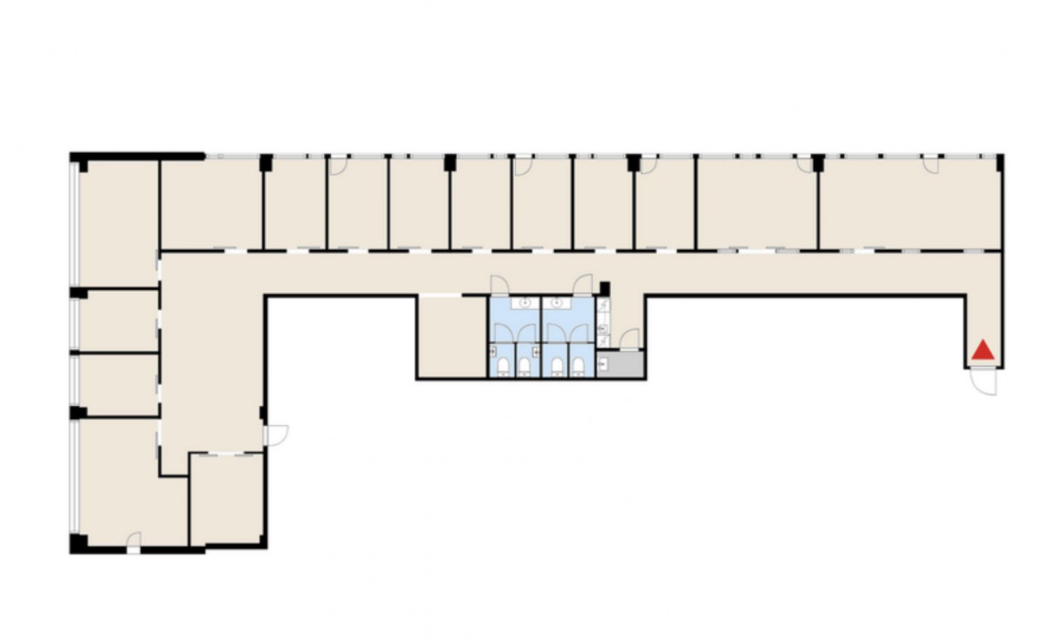
Vuokrattavana toisen kerroksen iso huonetoimisto. Tilassa on runsaasti erikokoisia huoneita, omat wc-tilat, sekä keittiö.
Business Park Kehämyllyssä hyvää, toimivaa toimisto- ja liiketilaa Kehä III:n näkyvyydellä. Tilasuunnitteluun voi vielä vaikuttaa tarpeittesi mukaan. Joka kokonaisuudessa oma keittiö ja WC:t. Hyvät liikkenneyhteydet ja pysäköintimahdollisuudet. Kiinteistössä aulapalvelut ja ruokaravintola.
Tule tutustumaan laadukkaisiin ja toimiviin toimitiloihin, lisätietoja: Mika Loppi p. 045 261 6555 tai 020 7290 710. asiakaspalvelu@premises.fi
Lisää toimitiloja: www. premises.fi
Kohteella ei ole lain edellyttämää energiatodistusta.Kerros: 2
Etäisyys Helsingin keskustaan alle 20 km.
Etäisyys Helsinki-Vantaan lentoasemalle 8 km.
Etäisyys lähimmälle rautatieasemalle n. 2km.
Etäisyys lähimmälle bussipysäkille noin 200 m.
Liitetiedostot
CRE PREMISES
Puh. Näytä puhelinnumero 020 7290 710
Vantaankoskentie 14
01670 VANTAA
