Vuokrataan toimistotilat - Helsinki
Simonkatu 6, Keskusta, 00100 Helsinki #10763153
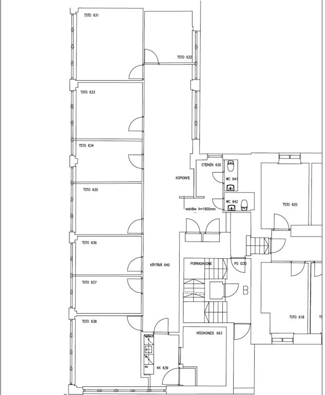
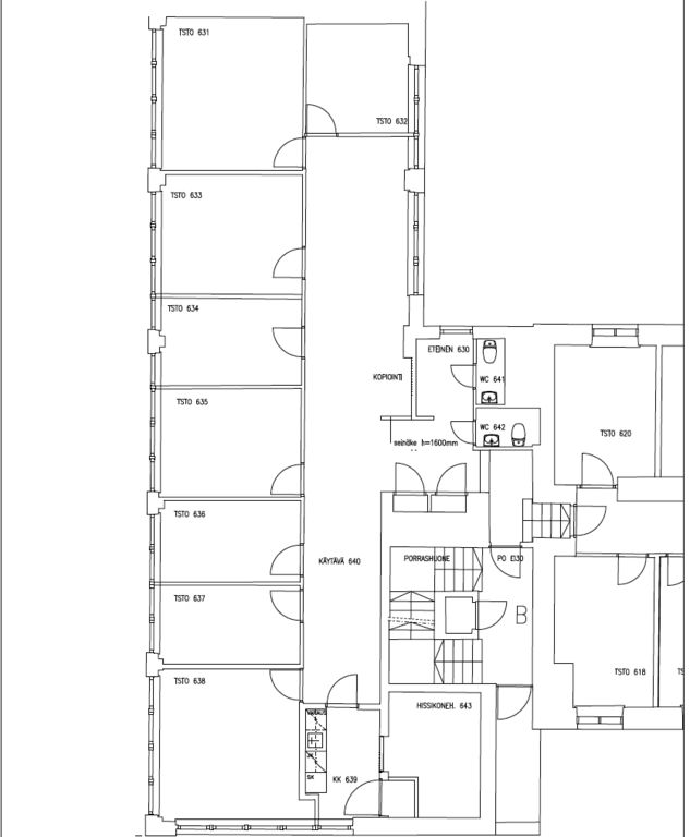
Vuokrattavana toimistotilaa Helsingin keskustassa.
Tämä tila on kooltaan 174m2 ja se sijaitsee kiinteistön 6. kerroksessa. Tila on pääosin huoneellista ja siihen kuuluu omat keittiö- ja wc-tilat. Tila on mahdollista vuokrata myös kalustettuna.
Simonkatu 6 eli Maalaisten talo on toimitilakiinteistö Helsingin ydinkeskustassa, loistavien liikenneyhteyksien varrella. Keskustan monipuoliset palvelut ovat kävelyetäisyydellä.
Kysy lisää numerosta 044 723 4700 tai info@bref.fi. Palvelumme on tilanhakijoille ilmainen.
Bureau Real Estate Finland Oy
Lars Sonckin kaari 16, 02600 Espoo
Näytä puhelinnumero
0447234700
Bureau Real Estate Finland Oy
https://www.bref.fi