Vuokrataan toimistotilat - Espoo
Tarvonsalmenkatu 17, Perkkaa, 02600 Espoo #10763131
Vuokrattavana hyväkuntoista, tehokasta toimistotilaa.
Osoite
Tarvonsalmenkatu 17, 02600 Espoo
Tilatyyppi
Toimistotilaa
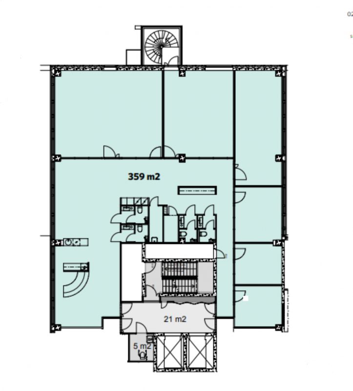
359 m2
Tilajako
Jaettavissa
Laajennettavissa
Kiinteistö
Vuokrattavana hyväkuntoista, tehokasta toimistotilaa. Tilassa on erikokoisia 10-40 m² työtiloja, oleskelutila, oma keittiö sekä wc:t. Tila voidaan laajentaa kokonaiseksi kerrokseksi.
Sijainti
Perkkaa, Espoo
Pysäköinti
Derbyn oma pysäköintihalli, jossa runsaasti pysäköintioikeuksia ja sähkölatauspisteitä.
Palvelut
-Aulapalvelu
-Lounasravintola ja kahvila
-Vuokrattavia neuvottelu- ja kokoustiloja
-Saunatilat
-Kuntosali
-Lounasravintola ja kahvila
-Vuokrattavia neuvottelu- ja kokoustiloja
-Saunatilat
-Kuntosali
Kulkuyhteydet
-Bussi
-Oma auto
-Oma auto
Vapautuu
Heti
Kerros
4
Energiatehokkuusluokka
Ei lain edellyttämää energiatodistusta
Näkyvällä paikalla
Jaettavissa
Hissi
Ota yhteyttä
REALIUM OY LKV
Tammasaarenkatu 1, 00180 Helsinki
Vaihde:
Näytä puhelinnumero
010 326 346
Tuomo Mäkelä
tuomo.makela@realium.fi
p.
Näytä puhelinnumero
044 050 1158
Joel Keto
joel.keto@realium.fi
p.
Näytä puhelinnumero
045 317 0330
KAIKKI TILAVAIHTOEHDOT KERRALLA!
SOITA - MEILAA JA TILAA NÄYTTÖ!
Ilmainen palvelu tilanhakijoille.
Kartoitamme parhaat tilavaihtoehdot.
Kaikki kohteet eivät ole netissä.
Pyydä lisätietoa
