Vuokrataan liiketilat, varastotilat - Helsinki
Linnankoskenkatu 4, Taka-Töölö, 00250 Helsinki #10763001
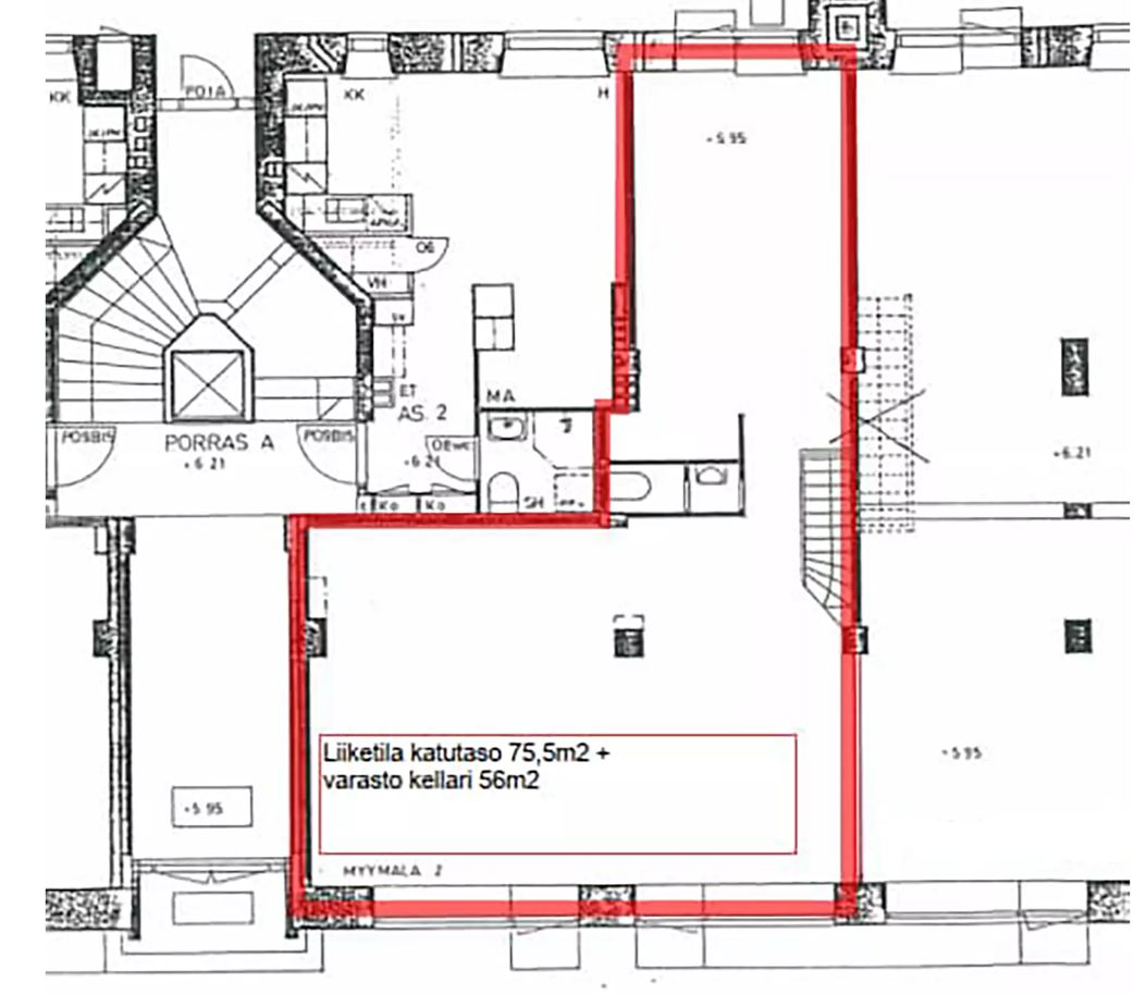
Vuokrattavana asuintalon kivijalassa sijaitseva liiketilaa.
Osoite
Linnankoskenkatu 4, 00250 Helsinki
Tilatyyppi
Liiketilaa
75,5 m2
Varastotilaa
56 m2
Yhteensä
131,5 m2
Tila soveltuu
Studio/ateljé, parturi- ja kampaamo
Kiinteistö
Vuokrattavana asuintalon kivijalassa sijaitseva liiketilaa, jossa isot ikkunat vehreälle kadulle. Katutason liiketilan koko on n. 75,5 m2 ja alakerran varastotila on n. 56 m2.
Sijainti
Taka-Töölö, Helsinki
Palvelut
Lähistöltä löytyy niin ravintoloita kuin päivittäistavarakauppojakin.
Kulkuyhteydet
-Raitiovaunupysäkki - 90 m
-Bussipysäkki - 230 m
-Juna-asema - 2,0 km
-Bussipysäkki - 230 m
-Juna-asema - 2,0 km
Vapautuu
Heti
Kerros
1
Energiatehokkuusluokka
Ei lain edellyttämää energiatodistusta
Katutasossa
Näkyvällä paikalla
Ota yhteyttä
REALIUM OY LKV
Tammasaarenkatu 1, 00180 Helsinki
Vaihde:
Näytä puhelinnumero
010 326 346
Tuomo Mäkelä
tuomo.makela@realium.fi
p.
Näytä puhelinnumero
044 050 1158
Joel Keto
joel.keto@realium.fi
p.
Näytä puhelinnumero
045 317 0330
KAIKKI TILAVAIHTOEHDOT KERRALLA!
SOITA - MEILAA JA TILAA NÄYTTÖ!
Ilmainen palvelu tilanhakijoille.
Kartoitamme parhaat tilavaihtoehdot.
Kaikki kohteet eivät ole netissä.
Pyydä lisätietoa
