Vuokrataan tuotantotilat, varastotilat, työtilat, autotalli/-hallitilat - Porvoo
Veckjärventie 5, 06150 Porvoo #10762622
Vuokrattavana näkyvältä paikalta hallitilaa autokorjaamoksi, työtilaksi tai varastoksi! Vuokra 1290 €/kk/kpl + alv
Osoite
Veckjärventie 5, 06150 Porvoo
Tilatyyppi
Tuotantotilaa
110 m2
Varastotilaa
110 m2
Työtilaa
110 m2
Autotalli/-hallitilaa
110 m2
Yhteensä
110 m2
Tila soveltuu
Autokorjaamo
Vuokra
1290 €/kk/kpl + alv
Vuokraan sisältyy lämpö
Muuta
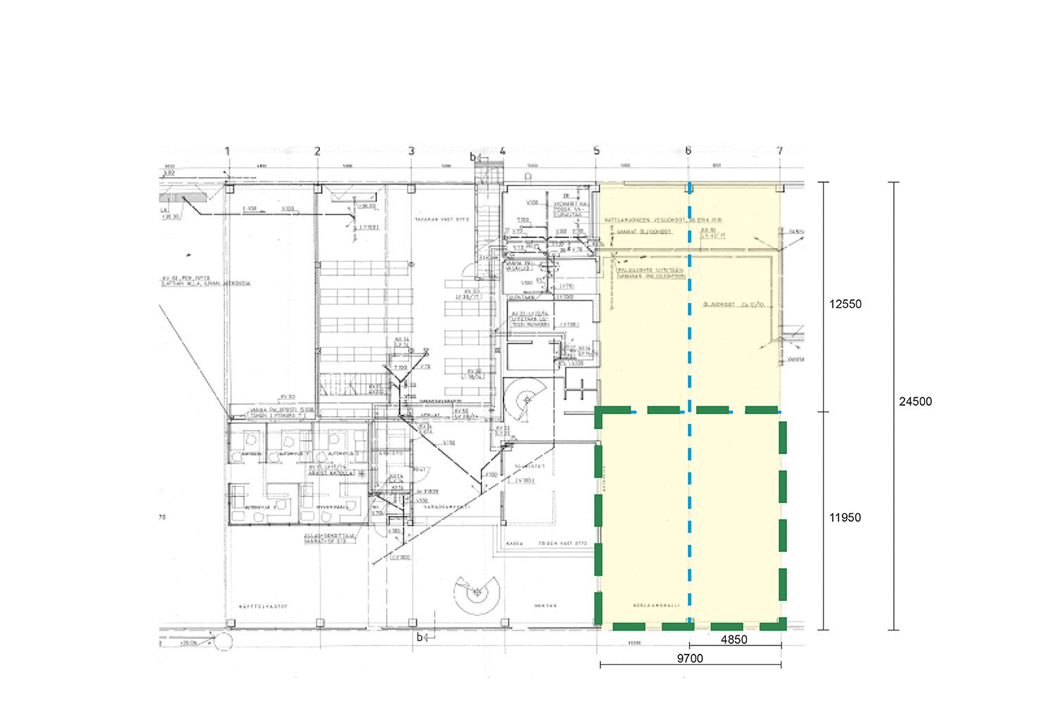
Porvoon Tarmolassa on nyt vuokrattavana henkilöautokorjaamo tai työtila näkyvällä liikepaikalla. Sopii myös varastointiin. Tilan sijainti merkittynä vihreällä katkoviivalla pohjakuvaan ja vuokrattava alue piirretty kuvaan punaisella katkoviivalla.
Kuusi metriä korkeassa korjaamohallissa on kaksi paljeovea. Hallitilassa on lisäksi pieni, erillinen käsienpesunurkkaus sekä käyttöoikeus wc-tilaan.
Tilat vuokrataan vain yrityskäyttöön. Halli ei sovi autopesulakäyttöön, koska siellä ei ole lattiakaivoja. Rakennuksesta vapautuu lisää tilaa alkuvuodesta 2026, kysy tästä lisää!
Piha-alue on iso ja asfaltoidussa pihassa on paljon pysäköintipaikkoja, mikä tekee autolla asioimisen helpoksi asiakkaille.
Rakennus sijaitsee hyvien yhteyksien varrella alueella, jossa on paljon kaupallista ja teollista toimintaa sekä päivittäistavarakaupan toimijoita.
Soita ja sovi näyttö!
Kohdetiedot
Sijainti
Katuosoite: Veckjärventie 5, 06150 Porvoo
Kaupunginosa: Tarmola
Ympäristö: Yritys- ja teollisuusalue
Rakennus/huoneisto
Pinta-alat: noin 110 m²
Tilan sisäkorkeus: 6 metriä
Rakennusvuosi: 1972–1974
Kiinteistötyyppi: Liikekiinteistö
Tilatyyppi: Hallitila
Kunto, varusteet ja palvelut: Hyvä peruskunto, 2kpl korkeaa paljeovea, wc käytössä
Pysäköinti: Pihassa
Vapautuu: 1.1.2026
Vuokrahinta ja kulut
Kuukausivuokra: 1'290 €/kk + alv
Sähkö- ja vesimaksu: 100 €/kk
Lämmitys: Sisältyy vuokraan
Muuta: Minimisopimuskausi 12 kk, vakuus 3 kk:n vuokraa vastaava summa, luottotietojen oltava kunnossa
Kuusi metriä korkeassa korjaamohallissa on kaksi paljeovea. Hallitilassa on lisäksi pieni, erillinen käsienpesunurkkaus sekä käyttöoikeus wc-tilaan.
Tilat vuokrataan vain yrityskäyttöön. Halli ei sovi autopesulakäyttöön, koska siellä ei ole lattiakaivoja. Rakennuksesta vapautuu lisää tilaa alkuvuodesta 2026, kysy tästä lisää!
Piha-alue on iso ja asfaltoidussa pihassa on paljon pysäköintipaikkoja, mikä tekee autolla asioimisen helpoksi asiakkaille.
Rakennus sijaitsee hyvien yhteyksien varrella alueella, jossa on paljon kaupallista ja teollista toimintaa sekä päivittäistavarakaupan toimijoita.
Soita ja sovi näyttö!
Kohdetiedot
Sijainti
Katuosoite: Veckjärventie 5, 06150 Porvoo
Kaupunginosa: Tarmola
Ympäristö: Yritys- ja teollisuusalue
Rakennus/huoneisto
Pinta-alat: noin 110 m²
Tilan sisäkorkeus: 6 metriä
Rakennusvuosi: 1972–1974
Kiinteistötyyppi: Liikekiinteistö
Tilatyyppi: Hallitila
Kunto, varusteet ja palvelut: Hyvä peruskunto, 2kpl korkeaa paljeovea, wc käytössä
Pysäköinti: Pihassa
Vapautuu: 1.1.2026
Vuokrahinta ja kulut
Kuukausivuokra: 1'290 €/kk + alv
Sähkö- ja vesimaksu: 100 €/kk
Lämmitys: Sisältyy vuokraan
Muuta: Minimisopimuskausi 12 kk, vakuus 3 kk:n vuokraa vastaava summa, luottotietojen oltava kunnossa
Vapautuu
01.01.2026
Katutasossa
Näkyvällä paikalla
Ota yhteyttä
Tilat.fi
KTM, LKV Antti Soivio
Näytä puhelinnumero
0400 446 553
OTM, LKV Riikka Tuominen
Näytä puhelinnumero
0400 551 790
KTM, LKV Maria-Sofia Puhakka
Näytä puhelinnumero
0400-150330
Yrityksen virallinen nimi: LKV Toimitilaa.fi Oy. Toimitilojen välitykseen erikoistunut yritys.
http://www.tilat.fiPyydä lisätietoa
