Vuokrataan toimistotilat - Helsinki
Ruosilantie 14, Konala, 00390 Helsinki #10762591
Siistiä toimistotilaa Konalasta
Osoite
Ruosilantie 14, 00390 Helsinki
Tilatyyppi
Toimistotilaa
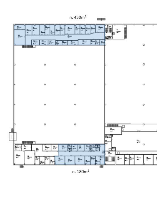
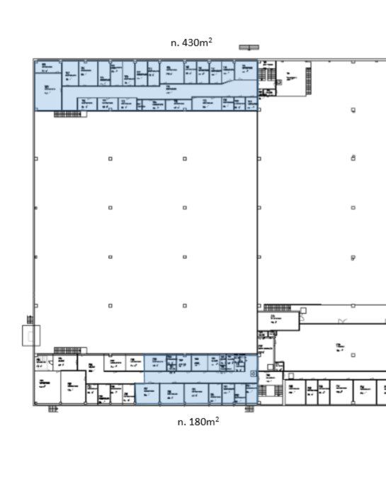
430 m2
Pysäköinti
Kyllä
Muuta
Vuokrataan siistiä ja erinomaisella sijainnilla toimitilaa, vuokrattava tila on 2. kerroksen 430m2 toimistotila.
Ruosilantie 14 varasto- ja toimistokiinteistö on rakennettu 1971 ja peruskorjattu vuosina 2000-2001.
Kiinteistön sijainti on erinomainen välittömästi Vihdintien varrella, josta on hyvät julkiset liikenneyhteydet Helsingin keskustaan ja vastaavasti kohteesta löytyy vuokrattavat autopaikat oman auton käyttäjille.
Kauppakeskus Ristikon palvelut ovat vain 900m/12min. kävelymatkan päässä.
Tervetuloa tutustumaan! Kysy myös muita tilavaihtoehtoja.
Ruosilantie 14 varasto- ja toimistokiinteistö on rakennettu 1971 ja peruskorjattu vuosina 2000-2001.
Kiinteistön sijainti on erinomainen välittömästi Vihdintien varrella, josta on hyvät julkiset liikenneyhteydet Helsingin keskustaan ja vastaavasti kohteesta löytyy vuokrattavat autopaikat oman auton käyttäjille.
Kauppakeskus Ristikon palvelut ovat vain 900m/12min. kävelymatkan päässä.
Tervetuloa tutustumaan! Kysy myös muita tilavaihtoehtoja.
Vapautuu
Kysy
Rakennusvuosi
1971
Kerros
2
Ota yhteyttä
Tuloskiinteistöt Oy
Rikhardinkatu 2 B 5, 00130 Helsinki
Näytä puhelinnumero
(09) 6841 620
Nina Meyke
Commercial Real Estate Advisor
Näytä puhelinnumero
+358 50 466 1519
Jorma Ryynänen
Commercial Real Estate Advisor LKV, LVV
Näytä puhelinnumero
+358 40 708 4064
Pyydä lisätietoa
