Vuokrataan toimistotilat - Helsinki
Ruosilantie 14, Konala, 00390 Helsinki #10762590
Siistiä toimistotilaa Konalasta
Osoite
Ruosilantie 14, 00390 Helsinki
Tilatyyppi
Toimistotilaa
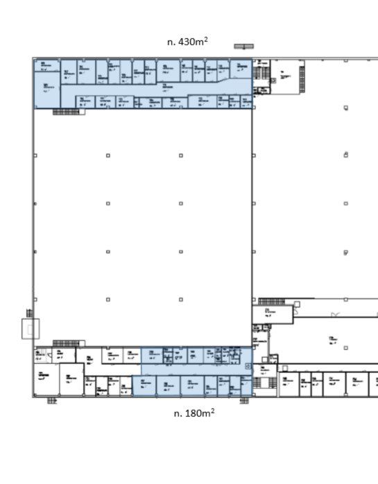
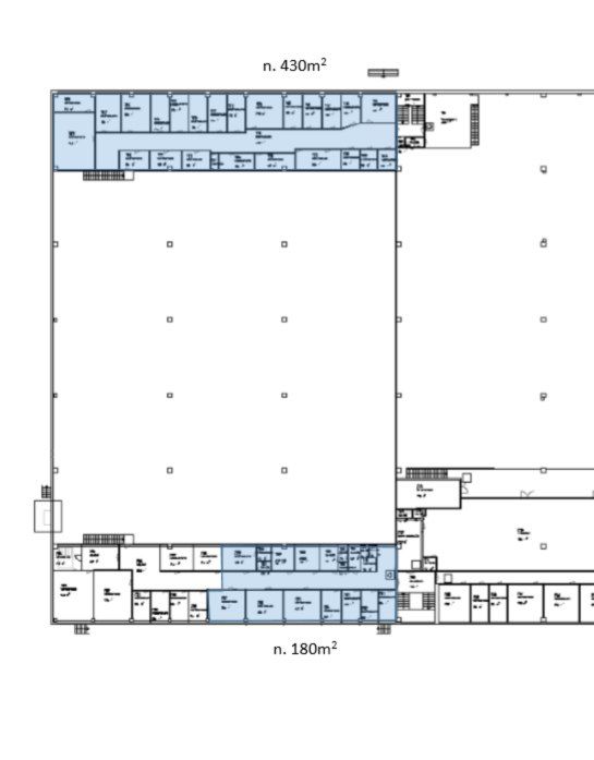
180 m2
Pysäköinti
Kyllä
Muuta
Vuokrattavana 180 m² toimistotilaa Helsingin Konalasta, osoitteesta Ruosilantie 14. Tila sijaitsee kiinteistön toisessa kerroksessa ja tarjoaa siistit puitteet toimistokäyttöön erinomaisella sijainnilla.
Ruosilantie 14 on varasto- ja toimistokiinteistö, joka on rakennettu vuonna 1971 ja peruskorjattu vuosina 2000â2001. Kiinteistö sijaitsee välittömästi Vihdintien varrella, mikä takaa hyvät kulkuyhteydet Helsingin keskustaan. Julkisen liikenteen lisäksi kiinteistöllä on vuokrattavia autopaikkoja oman auton käyttäjille.
Kauppakeskus Ristikko sijaitsee noin 900 metrin eli 12 minuutin kävelymatkan päässä, ja tarjoaa kattavat arjen palvelut työntekijöiden ja asiakkaiden tarpeisiin.
Tervetuloa tutustumaan, varaathan välittäjältä oman esittelyaikasi. Voit kysyä meiltä myös muita sopivia vaihtoehtoja, kauttamme löydät juuri Teidän tarpeisiinne sopivat tilat. Palvelumme on tilanhakijalle veloitukseton
Ruosilantie 14 on varasto- ja toimistokiinteistö, joka on rakennettu vuonna 1971 ja peruskorjattu vuosina 2000â2001. Kiinteistö sijaitsee välittömästi Vihdintien varrella, mikä takaa hyvät kulkuyhteydet Helsingin keskustaan. Julkisen liikenteen lisäksi kiinteistöllä on vuokrattavia autopaikkoja oman auton käyttäjille.
Kauppakeskus Ristikko sijaitsee noin 900 metrin eli 12 minuutin kävelymatkan päässä, ja tarjoaa kattavat arjen palvelut työntekijöiden ja asiakkaiden tarpeisiin.
Tervetuloa tutustumaan, varaathan välittäjältä oman esittelyaikasi. Voit kysyä meiltä myös muita sopivia vaihtoehtoja, kauttamme löydät juuri Teidän tarpeisiinne sopivat tilat. Palvelumme on tilanhakijalle veloitukseton
Vapautuu
Kysy
Rakennusvuosi
1971
Kerros
2
Ota yhteyttä
Tuloskiinteistöt Oy
Rikhardinkatu 2 B 5, 00130 Helsinki
Näytä puhelinnumero
(09) 6841 620
Nina Meyke
Commercial Real Estate Advisor
Näytä puhelinnumero
+358 50 466 1519
Otto Ahtola
Commercial Real Estate Advisor
Näytä puhelinnumero
+358 40 042 2830
Pyydä lisätietoa
