Vuokrataan liiketilat - Tampere
Halkoniemenkatu 5, Lentävänniemi, 33410 Tampere #10762581
Lentävänniemestä uudehko 63 m2 liiketila
Osoite
Halkoniemenkatu 5, 33410 Tampere
Tilatyyppi
Liiketilaa
63 m2
Kiinteistö
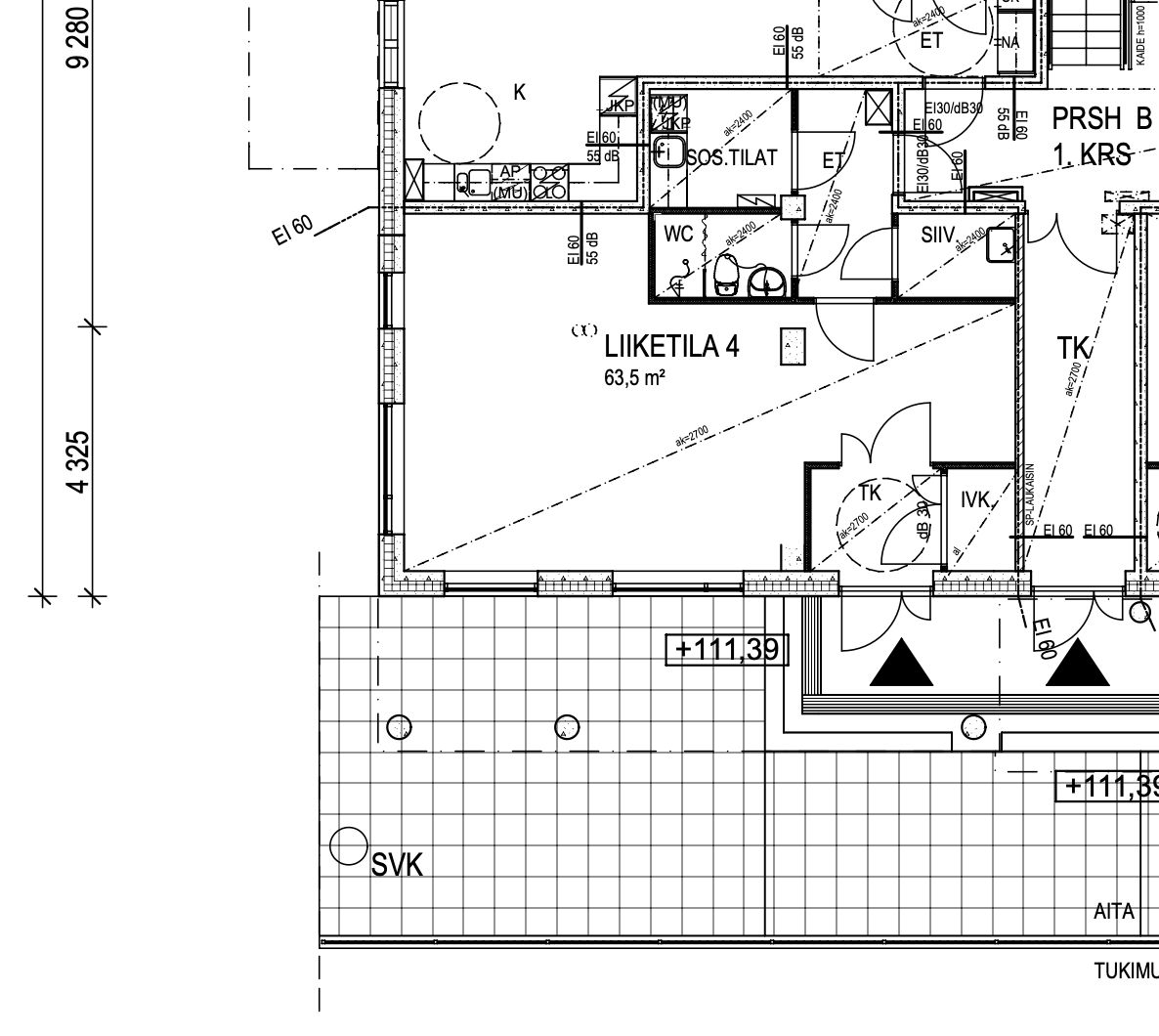
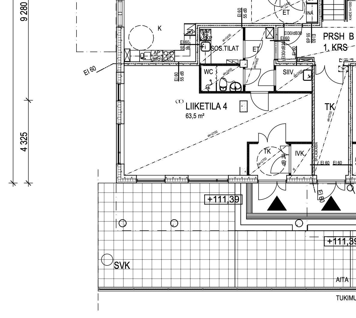
Vuokrataan 63,5 m2 liiketila Tampereen Lentävänniemestä
Lentävänniemi-Halkoniemen ranta-Niemenrannan alue on voimakkaasti kasvavaa aluetta, johon kaavailtu tuhansia uusia asuntoja. Lielahden kaupallinen keskus on parin kilometrin päässä. Lentävänniemeen kulkee lukuisia paikallisbusseja ratikan päätepysäkki valmistuu ihan viereen.
Vapaana vuokrattavaksi on nyt kulmatila, jossa itse myymälätilan lisäksi on keittiö/taukotila, wc/suihkutila sekä varastohuone vesipisteellä. Kiinteistön saneeraustyöt ovat loppusuoralla.
Autopaikkoja saatavilla sekä pihalla, että parkkihallissa.
Vuokran määrään vaikuttaa mm. vuokrasopimuksen pituus, mahdolliset muutostyöt sekä millaista toimintaa tilassa tulee olemaan. Vuokra on noin. 850 e/kk +alv.
Lentävänniemi-Halkoniemen ranta-Niemenrannan alue on voimakkaasti kasvavaa aluetta, johon kaavailtu tuhansia uusia asuntoja. Lielahden kaupallinen keskus on parin kilometrin päässä. Lentävänniemeen kulkee lukuisia paikallisbusseja ratikan päätepysäkki valmistuu ihan viereen.
Vapaana vuokrattavaksi on nyt kulmatila, jossa itse myymälätilan lisäksi on keittiö/taukotila, wc/suihkutila sekä varastohuone vesipisteellä. Kiinteistön saneeraustyöt ovat loppusuoralla.
Autopaikkoja saatavilla sekä pihalla, että parkkihallissa.
Vuokran määrään vaikuttaa mm. vuokrasopimuksen pituus, mahdolliset muutostyöt sekä millaista toimintaa tilassa tulee olemaan. Vuokra on noin. 850 e/kk +alv.
Vapautuu
Kysy
Kerros
1
Ota yhteyttä
LogisTila Oy
Kauppakatu 14, 33210 TAMPERE
Tuomas Lehtinen
Näytä puhelinnumero
044 491 5961
Pyydä lisätietoa
