Vuokrataan toimistotilat - Helsinki
Valimotie 16, Pitäjänmäki, 00380 Helsinki #10762470
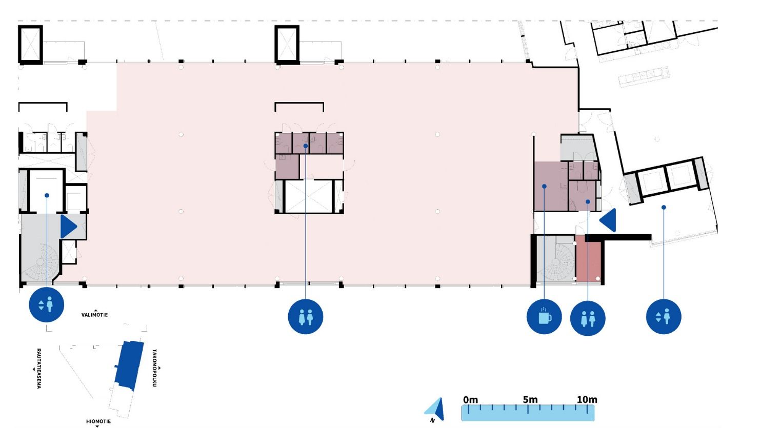
Tässä kattavan kokoisessa toimistossa onnistuu monenlainen työskentely. Avokonttori mahdollistaa tehokkaan kommunikoinnin kollegoiden kanssa, ja mahdollistaa runsaan märän työpisteitä. Tilaan voidaan tarpeidenne mukaan sisällyttää työhuoneita sekä neuvottelutiloja, jotta myös keskittyneempi työskentely tapahtuu sujuvasti. Tilassa on oma parveke, ja toimistokokonaisuus voidaan jakaa myös kahteen pienempään osaan.
Valimo Park on monipuolinen toimistotalo, jossa vuokralaisiaan palvelee muun muassa lounasravintola ja aulapalvelu. Kiinteistössä on vuokrattavia kokoustiloja erilaisiin kokoustarpeisiin, auditorio, edustustilat sekä saunaosasto. Valimo Parkin tiloja on uusittu, ja yleiset tilat ovat modernit ja siistit. Alueelle on hyvät julkiset liikenneyhteydet myös busseilla ja omalla autolla.
Croisette on uusi ja innovatiivinen toimitilojen välitysyritys Suomessa. Meillä on vahva halu auttaa teitä löytämään paras toimitilaratkaisu mahdollisimman vaivattomasti.
Huomaathan, että kaikki vapaat ja vapautuvat tilat ovat kauttamme saatavilla. Osa tiloista on hiljaisessa markkinoinnissa, mutta ottamalla meihin yhteyttä saat nekin tietoosi.
Palvelumme on tilanhakijoille täysin maksutonta.
Hissi
Croisette Real Estate Partner
Erottajankatu 5 A 6, 00130 Helsinki
Näytä puhelinnumero
+358 400 585 857
Croisette Vuokraus
Näytä puhelinnumero
+358400585857
