Vuokrataan toimistotilat - Helsinki
Mannerheimintie 113, Ruskeasuo, 00280 Helsinki #10762399
Muuttovalmista toimistotilaa Helsingin Ruskeasuolla
Osoite
Mannerheimintie 113, 00280 Helsinki
Tilatyyppi
Toimistotilaa
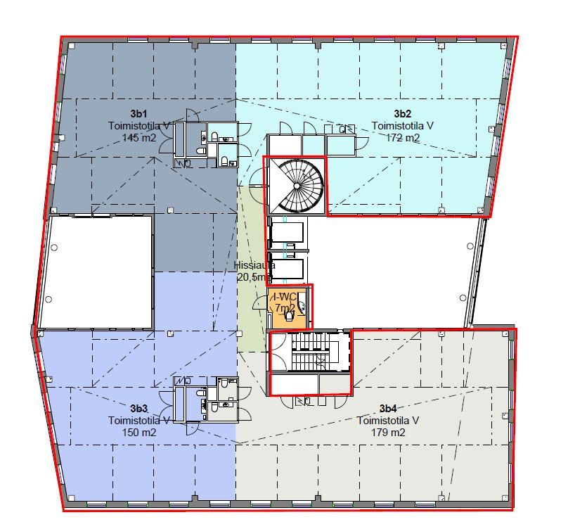
150 m2
Pysäköinti
Hallissa
Muuta
Vuokrataan uudenveroista toimistotilaa Aitio Business Park Verdistä, vuokrattava tila on 3. kerroksen 150m2 toimistotila. Tämä koko kerroksen 666,50m2 tila on jaettavissa 145m2, 172m2, 150m2 ja 179m2 toimistotiloihin.
Kiinteistö sijaitsee Hämeenlinnan väylän ja Hakamäentien risteyksessä. Bussipysäkki on talon vieressä ja Pasilan asema on vain 7min ajomatkan päässä. Oman auton käyttäjiä palvelee autopaikat hallissa. Kiinteistössä kattavat palvelut, kuten aulapalvelu, lounasravintola ja neuvottelutiloja.
Tervetuloa tutustumaan tähän kohteeseen. Kysy myös muita juuri teille sopivia toimitiloja, meidän kautta saat räätälöidyt tilavaihtoehdot. Palvelumme on vuokralaiselle veloitukseton!
Kiinteistö sijaitsee Hämeenlinnan väylän ja Hakamäentien risteyksessä. Bussipysäkki on talon vieressä ja Pasilan asema on vain 7min ajomatkan päässä. Oman auton käyttäjiä palvelee autopaikat hallissa. Kiinteistössä kattavat palvelut, kuten aulapalvelu, lounasravintola ja neuvottelutiloja.
Tervetuloa tutustumaan tähän kohteeseen. Kysy myös muita juuri teille sopivia toimitiloja, meidän kautta saat räätälöidyt tilavaihtoehdot. Palvelumme on vuokralaiselle veloitukseton!
Vapautuu
Kysy
Rakennusvuosi
2016
Kerros
3
Ota yhteyttä
Tuloskiinteistöt Oy
Rikhardinkatu 2 B 5, 00130 Helsinki
Näytä puhelinnumero
(09) 6841 620
Jorma Ryynänen
Commercial Real Estate Advisor LKV, LVV
Näytä puhelinnumero
+358 40 708 4064
Otto Ahtola
Commercial Real Estate Advisor
Näytä puhelinnumero
+358 40 042 2830
Pyydä lisätietoa
