Vuokrataan toimistotilat, muut tilat - Tampere
Erkkilänkatu 11, Tammela, 33100 Tampere #10762276
Upea loft-henkinen korkea toimitila vapaana Tammelassa
Osoite
Erkkilänkatu 11, 33100 Tampere
Tilatyyppi
Toimistotilaa
128 m2
Muuta tilaa
128 m2
Yhteensä
128 m2
Kiinteistö
Puuvillatehtaiden myyntikonttori, PMK-talo, valmistui Jarl Eklundin piirustuksin 1938 suomalaisten puuvillatehtaiden yhteiseksi keskusvarastoksi. Historiallinen rakennus sijaitsee Tammelan kehittyvällä alueella, ihan keskustan kupeessa. Rautatieasemalle on 10 minuutin kävelymatka, bussit ja raitiotie kulkevat lähellä. Alueella paljon ravintoloita ja muita palveluita. Pihassa asfaltoitu pysäköintialue ja pyöräparkki. Kiinteistössä on monipuolista toimintaa erilaisten toimistojen lisäksi mm. eläinsairaala ja liikuntakeskus sekä pienpanimo ravintoloineen.
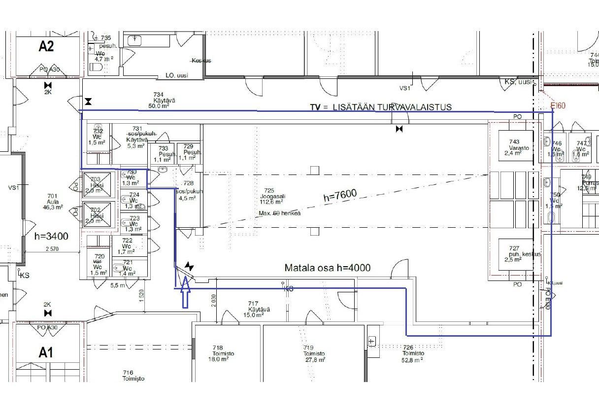
Nyt vapaana upea, hyvin korkea tila rakennuksen 7. kerroksessa.
Tila on kooltaan 128m2. Matalamman osan korkeus on 4 metriä ja korkeimman yli 7,5 metriä. Se käsittää ison avaran tilan ja lisäksi 2xwc ja 2xsuihku sekä pukeutumistilaa. Tilassa ei tällä hetkellä ole keittiötä, mutta omistaja voi rakentaa keittiön sisäänkäynnin luona olevalle, pesutiloja vasten olevalle seinälle.
Tässä tilassa on ollut aiemmin joogastudio ja se soveltuu hyvin liikunta-ja hyvinvointialan toimintaan, mutta myös toimistoksi, showroomiksi yms. Korkean kohdan palkkien päälle on mahdollista rakentaa esim. toimistoparvi, jolloin aukeaa huikeat näköalat Tuomiokirkon suuntaan.
Tämä tila pitää itse nähdä, ota yhteyttä niin sovitaan käyntiaikaa: kai.toivonen@logistila.fi
Nyt vapaana upea, hyvin korkea tila rakennuksen 7. kerroksessa.
Tila on kooltaan 128m2. Matalamman osan korkeus on 4 metriä ja korkeimman yli 7,5 metriä. Se käsittää ison avaran tilan ja lisäksi 2xwc ja 2xsuihku sekä pukeutumistilaa. Tilassa ei tällä hetkellä ole keittiötä, mutta omistaja voi rakentaa keittiön sisäänkäynnin luona olevalle, pesutiloja vasten olevalle seinälle.
Tässä tilassa on ollut aiemmin joogastudio ja se soveltuu hyvin liikunta-ja hyvinvointialan toimintaan, mutta myös toimistoksi, showroomiksi yms. Korkean kohdan palkkien päälle on mahdollista rakentaa esim. toimistoparvi, jolloin aukeaa huikeat näköalat Tuomiokirkon suuntaan.
Tämä tila pitää itse nähdä, ota yhteyttä niin sovitaan käyntiaikaa: kai.toivonen@logistila.fi
Vapautuu
Kysy
Kerros
7.
Ota yhteyttä
LogisTila Oy
Kauppakatu 14, 33210 TAMPERE
Tuomas Lehtinen
Näytä puhelinnumero
044 491 5961
Pyydä lisätietoa
