Vuokrataan toimistotilat - Helsinki
Aku Korhosen Tie 6, Haaga, 00440 Helsinki #10762222
Valoisaa toimistotilaa Kehä I:n juurella Helsingissä.
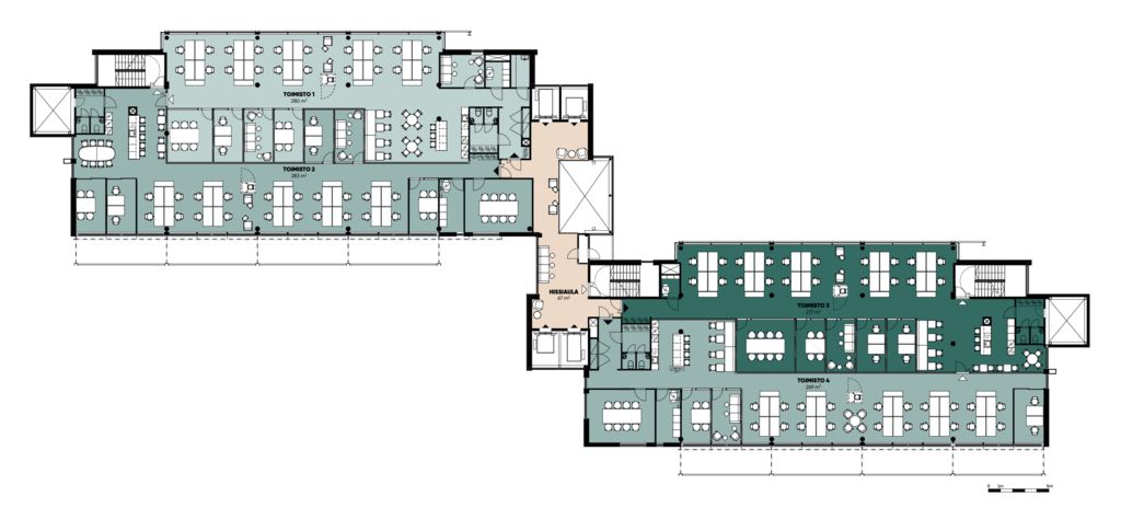
AKU 6:ssa on vapaana reilu 5000 m² pääkonttoritasoista toimistotilaa. Kiinteistön kerroskoko on noin 1178 m², ja se on mahdollista jakaa kahteen noin 600 m² kokoiseen osaan. Tarvittaessa myös pienemmät, n. 250-300 m² tilajaot ovat toteutettavissa, esimerkkejä mahdollisista tilasovituksista pohjakuvissa. Kerroksia rakennuksessa on 7. Tilat ovat muokattavissa vuokralaisen tarpeiden mukaan. Kiinteistössä on korkean turvatason tiloja, huoneissa kulunvalvonta.
AKU on kolmen kiinteistön kokonaisuus, joka tarjoaa tasokkaat puitteet monipuoliseen työskentelyyn. Kiinteistöt sijaitsevat keskeisellä paikalla Kehä I:n välittömässä läheisyydessä. Pohjois-Haagan juna-asema sijaitsee kävelyetäisyydellä. Kiinteistö sijaitsee kauppakeskus Kaaren lähellä, joten monipuoliset palvelut ovat aivan kivenheiton päässä. Kiinteistössä on lounasravintola, varattavia neuvottelutiloja, kuntosali, liikuntahalli, sauna- ja edustustilat pukuhuoneineen sekä runsaasti pysäköintitilaa. Pysäköintihallissa on sähköautojen latausmahdollisuus.
Kysy lisää numerosta 044 723 4700 tai info@bref.fi. Palvelumme on tilanhakijoille ilmainen.
Hissi
Bureau Real Estate Finland Oy
Lars Sonckin kaari 16, 02600 Espoo
Näytä puhelinnumero
0447234700
Bureau Real Estate Finland Oy
https://www.bref.fi