Vuokrataan tuotantotilat, varastotilat - Lahti
Valimonkatu 2, 15520 Lahti #10761901
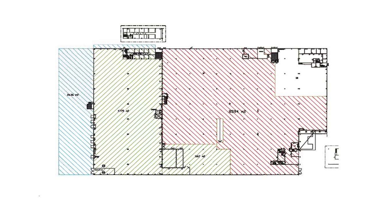
Kekeisellä sijainnilla oleva suuri tuotanto/varastohalli on vapautumassa uudelle käyttäjälle alkuvuodesta 2024. Tila koostuu kolmesta osasta, tuotantohalli 8594m2, korkea varastohalli 4775 m2 ja kellarivarasto n 9000 m2. Tila voidaan jakaa useamman käyttäjän kesken. Lastaustaskuja on kiinteistön itäpäässä 5 (yhteiskäyttö) ja Länsipäässä 7 lastaustaskua. Länsipäässä on myös mahdollisuus rekan sivupurkamiseen hallin sisällä.
Varastohallissa on myös vuokrattavissa toimistotiloja
Lisätietoja ja esittelyt kohteesta 0400891057
Lisää kohteita www.premises.fiKerros: 2
CRE PREMISES
Puh. Näytä puhelinnumero 020 7290 710
Vantaankoskentie 14
01670 VANTAA
